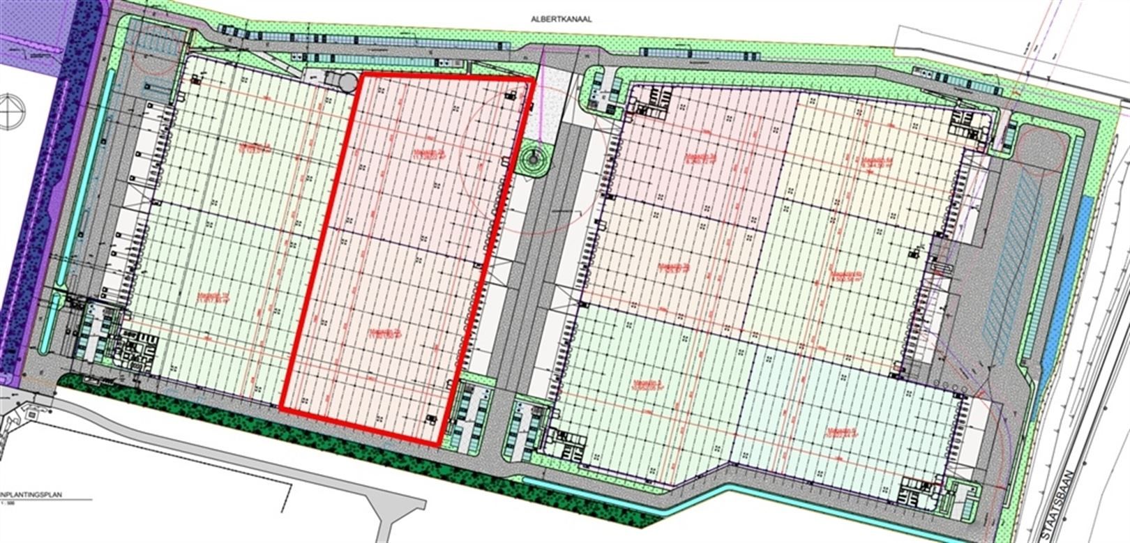
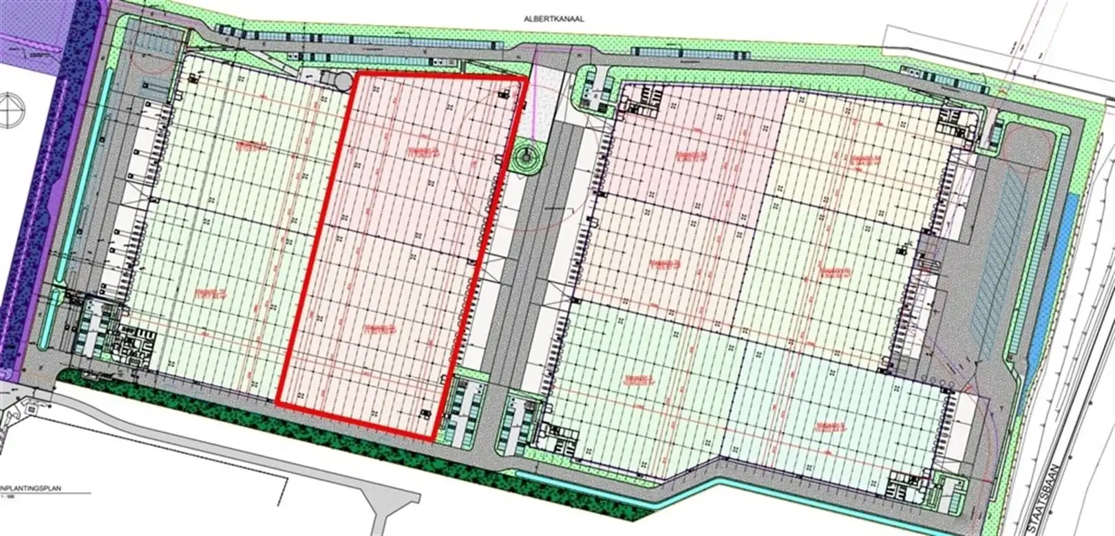
Europe Inland Logistic Campus 21
€ 38.308,83
Een pand van CEUSTERS
Jouw zoektocht
Overzicht
- 8856 m² bewoonbaar
Beschrijving
MAGAZIJN
- Vrije hoogte: 13,7 m (waardoor 15-20% meer palletruimte ontstaat)
- Span & kolom rooster geschikt voor zowel kleine als brede gangen
- 1 dockdeur per 1.000 m²
- Dock uitgerust met dockleveller (60kN dynamische belasting), shelter en bumpers
- 1 gelijkvloerse toegangsdeur (4 m x 6 m) per eenheid
- Vloerbelasting: 50kN/m2
- Maximale puntbelasting palletstellingen: 90kN / poot
- Tolerantie op vlakheid volgens DIN18202 Tabel 3, Zeile 4
- Geïsoleerde betonnen sokkel met een hoogte van 2,5 m
- Gecertificeerde automatische sprinkler installatie (ESFR daksprinklers)
- Brandslang en brandkranen in overeenstemming met lokale regelgeving en bouwbesluit
- Brandalarm- en evacuatiesysteem in overeenstemming met de voorschriften en code
- Verwarming (12°) en ventilatiesysteem
- Verlichting: energie-efficiënte LED, 250 Lux
MEZZANINE
- Mezzanine met een diepte van 24 m boven de expeditieruimte.
- Vloerbelasting: van 10kN / m²
- Ramen voor natuurlijk licht
KANTOOR
- Kantoren op de begane grond en mezzanine niveau met een open plan
- Hoogwaardig VRF-systeem voor koeling en verwarming
- LED-verlichting, 500 Lux op werktafelniveau
- Hoogwaardige afwerking
SITE
- Omheining met automatische toegangspoort
- Laadplaats 40 m diep, ontworpen voor zware ladingen
- Buitenverlichting voor de laadzone, circulatieweg en parkeerterreinen
- Parkeerplaatsen
Oplevering: Q2-3 2025
Energie
- E-peil: E0
- Beglazing: Onbekend
Op de kaart

Financieel
| Prijs | |
|---|---|
| Maandelijkse kosten | € 0 |
| Kadastraal inkomen (niet geïndexeerd) | € 0 |
| Kadastraal inkomen (geïndexeerd) | € 0 |
Bijkomende info
Gebouw
| Bouwcertificaat | Nee |
|---|---|
| Bewoonbaar (m²) | 8856 |
| Verdieping | 0 |
| Badkamers | 0 |
| Slaapkamers | 0 |
| Verdiepingen | 0 |
| Garages | 0 |
| Parkeerplaatsen | 0 |
| Doucheruimtes | 0 |
| Toiletten | 0 |
Faciliteiten
| Elektrisch keuringsattest | Nee |
|---|
Perceel
| Overstromingsgevoelig | Geen |
|---|---|
| Voorkeurrecht | Ja |
| Bebouwde oppervlakte (m²) | 0 |
| Tuin oppervlakte (m²) | 0 |
| Oppervlakte terras (m²) | 0 |
Vergunning
| Vergunning | Vergunning beschikbaar |
|---|---|
| Verkavelingsvergunning | Geen beschikbaar |
Uitrusting
| Investeringspand | Nee |
|---|---|
| Geschikt voor praktijk | Nee |
| Parking | Nee |
| Garage | Nee |
| Thuiskantoor | Nee |
| Kelder | Nee |
| Zolder | Nee |
| Tuin | Nee |
| Terras | Nee |
| Lift | Nee |
| Rioolaansluiting | Ja |
| Gasaansluiting | Ja |
| Wateraansluiting | Ja |
| Elektriciteitsaansluiting | Ja |
| TV aansluiting | Ja |
| Internetaansluiting | Ja |
| Telefoonaansluiting | Ja |
Appartementsblok
| Naam residentie | Europe Inland Logistic Campus 21 |
|---|---|
| Lift | Nee |