Nieuw
Appartementen te huur via budgethuren te Houthulst
€ 617,59
Een pand van Bordes Izegem
Overzicht
Beschrijving
ENKEL MOGELIJK VIA BUDGETHUREN
Komt u in aanmerking voor budgethuren?
(https://www.vlaanderen.be/bouwen-wonen-en-energie/huren-en-verhuren/geconventioneerde-verhuur-en-huur-budgethuren/budgethuren-geconventioneerd-huren/stap-1-check-de-voorwaarden-voor-budgethuren)
Laat het ons weten en wij informeren u graag over de verdere stappen.
Deze nieuwbouw residentie in de Kerkstraat te Houthulst bestaat uit 7 nieuwbouw appartementen en zijn beschikbaar vanaf 1 december 2025.
Indeling
Gelijkvloers
- 1 appartement (bruto oppervlakte van 107,84 m² volgens grondplan) met twee slaapkamers
- 1 appartement (bruto oppervlakte van 70,90 m² volgens grondplan) met één slaapkamer
Eerste verdieping
- 1 appartement (bruto oppervlakte van 90,24 m² volgens grondplan) met twee slaapkamers
- 1 appartement (bruto oppervlakte van 95,09 m² volgens grondplan) met twee slaapkamers
Tweede verdieping
- 1 appartement (bruto oppervlakte van 90,24 m² volgens grondplan) met twee slaapkamers
- 1 appartement (bruto oppervlakte van 95,09 m² volgens grondplan) met twee slaapkamers
Derde verdieping
- 1 appartement (bruto oppervlakte van 117,38 m² volgens grondplan) met drie slaapkamers
Huurprijzen
- De huurprijs voor een appartement met twee slaapkamers varieert tussen 719,04 EUR à 743,70 EUR per maand
- De huurprijs voor het gelijkvloers appartement met één slaapkamer bedraagt 617,59 EUR per maand
- De huurprijs voor het appartement op de derde verdieping met drie slaapkamers bedraagt 822,78 EUR per maand
Algemeen
- Beschikbaar vanaf 1 december 2025
- Centrale verwarming op aardgas
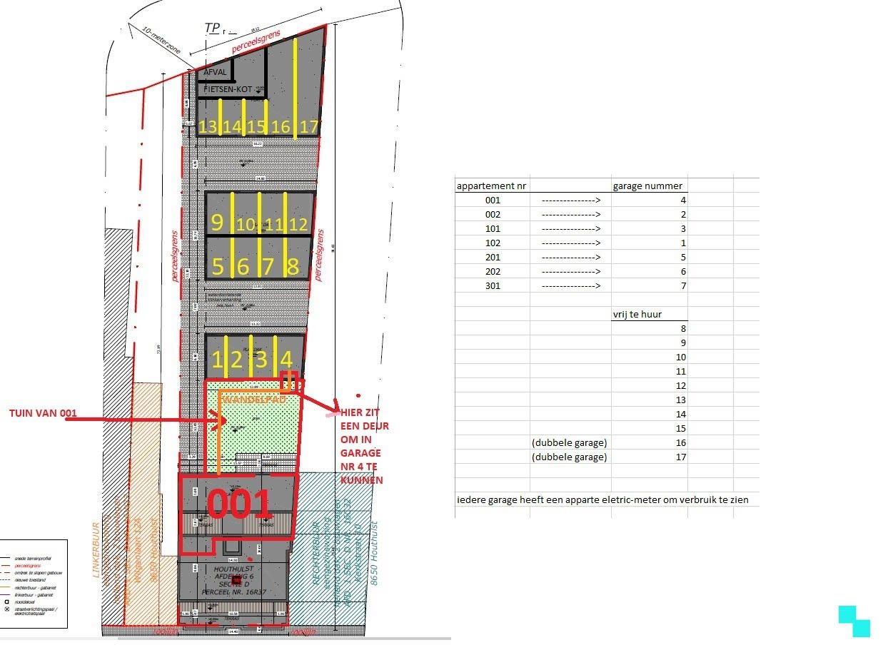
- Elk appartement beschikt ook over een eigen garagebox (reeds inbegrepen in de huurprijs)
- Gemeenschappelijke lasten bedragen per appartement 35 EUR per maand
Troeven
- Gunstige locatie met verschillende voorzieningen op wandelafstand
- Energiezuinig
- Nieuwbouw residentie
Benieuwd?
Laat het ons weten en wij informeren u graag over de verdere stappen.
Verhuur via Bordes, met Justine, al jaren één van de marktleiders in vastgoed in Hooglede/Roeselare en de omliggende gemeenten. Met de glimlach, met de sleutel en met veel goesting.
ENKEL MOGELIJK VIA BUDGETHUREN. Komt u in aanmerking voor budgethuren? (https://www.vlaanderen.be/bouwen-wonen-en-energie/huren-en-verhuren/geconventioneerde-verhuur-en-huur-budgethuren/budgethuren-geconventioneerd-huren/stap-1-check-de-voorwaarden-voor-budgethuren). Laat het ons weten en wij informeren u graag over de verdere stappen. Deze nieuwbouw residentie in de Kerkstraat te Houthulst bestaat uit 7 nieuwbouw appartementen en zijn beschikbaar vanaf 1 december 2025. De huurprijs voor een appartement met twee slaapkamers varieert tussen 719,04 EUR à 743,70 EUR per maand. De huurprijs voor het gelijkvloers appartement met één slaapkamer bedraagt 617,59 EUR per maand. De huurprijs voor het appartement op de derde verdieping met drie slaapkamers bedraagt 822,78 EUR per maand. Elk appartement beschikt ook over een eigen garagebox (reeds inbegrepen in de huurprijs). Gemeenschappelijke lasten bedragen per appartement 35 EUR per maand. www.bordes.be
Energie
![]() |
- E-peil: E0
- Beglazing: Onbekend
Zelfcheck
Op de kaart

Financieel
Prijs | |
---|---|
Maandelijkse kosten | € 0 |
Bijkomende info
Gebouw
Bouwjaar | 2025 |
---|---|
Staat | Nieuw |
Badkamers | 0 |
Slaapkamers | 0 |
Verdiepingen | 3 |
Garages | 0 |
Parkeerplaatsen | 0 |
Toiletten | 0 |
Faciliteiten
Septische tank | Nee |
---|
Perceel
Bebouwde oppervlakte (m²) | 0 |
---|
Vergunning
Verkavelingsvergunning | Geen beschikbaar |
---|
Uitrusting
Investeringspand | Nee |
---|---|
Parking | Nee |
Garage | Nee |
Lift | Ja |
Rioolaansluiting | Nee |
Gasaansluiting | Ja |
Wateraansluiting | Ja |
Elektriciteitsaansluiting | Ja |
Internetaansluiting | Nee |
Telefoonaansluiting | Nee |
Zonnepanelen | Nee |
Zonneboiler | Nee |
Alarm | Nee |
Videofoon | Nee |
Grondwaterput | Nee |
Appartementsblok
Aantal verdiepingen | 3 |
---|---|
Lift | Ja |
Intercom | Nee |
Een pand van
Bordes Izegem
Bordes vastgoed opent deuren
Bel ons. We komen graag. Met de glimlach. Met de de sleutel. En met heel veel goesting. In Izegem, Merelbeke, Waregem en Hooglede. We gaan allemaal dat stapje verder. Voor elke klant. Elke dag. Altijd opnieuw. Van vroeg tot laat. Omdat we weten dat we zo resultaten halen. Omdat we zo de klant echt helpen. En omdat we zo zijn. We zijn Bordes. We verkopen en verhuren vastgoed. En weet je hoe we dat doen? Eerst luisteren we. Om te weten en te begrijpen. Vervolgens denken we. In oplossingen. Daarna beloven we. En dan doen we meer. Keer op keer.
🩵 Bordes Izegem is een vaste waarde in de vastgoedmarkt van Izegem en de ruime regio. Als ervaren vastgoedmakelaar begeleiden we klanten bij de verkoop en aankoop van woningen, appartementen, bouwgronden en nieuwbouwprojecten.
⭐️ Met een uitstekende klantentevredenheid (HouseMatch-score 4,9/5) en meer dan 2000 succesvolle vastgoedtransacties bouwen we vanuit Bordes Izegem actief mee aan de vastgoedtoekomst in onze regio.
✨ Onze aanpak garandeert betrokkenheid, lokale kennis en professionele begeleiding — met de glimlach, de sleutel en veel goesting.
📍 Vanuit Bordes Izegem zijn we actief in Izegem (centrum, Kachtem, Emelgem), Ingelmunster, Lendelede, Ledegem, Roeselare, Rumbeke, Heule, Kuurne, Harelbeke, Hulste, Zwevegem, Kortrijk, Tielt, Meulebeke, Oostrozebeke, Dentergem, Ardooie, Pittem, Wielsbeke, Waregem, Deerlijk, Anzegem, Zulte, Zedelgem en Wingene.
VH25015JB
Leer meer over vastgoed
06 July 2025
Wie betaalt herstellingen aan de huurwoning?
01 July 2025
Ik wil mijn huurcontract opzeggen. Hoe doe ik dit?
20 April 2025
Huren in de stad: Nika vond haar eerste appartement met de reistijdplanner
06 December 2024