Nieuwbouw garageboxen te huur in Houthulst
Een pand van Bordes Izegem
Overzicht
Beschrijving
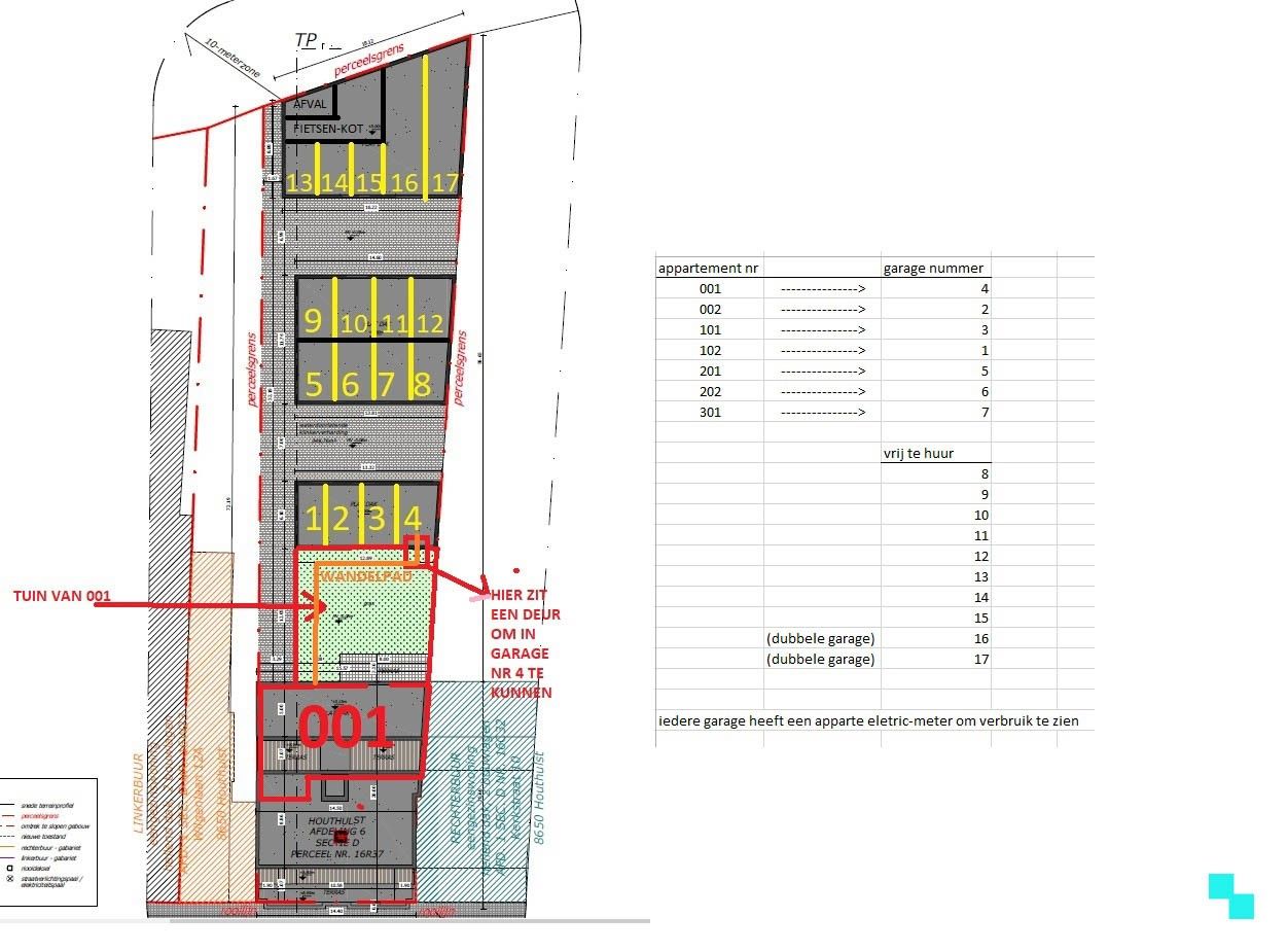
Deze 10 nieuwbouw garageboxen (waarvan twee dubbele garageboxen) bevinden zich achteraan een nieuwe residentie in de Kerkstraat te Houthulst. Onmiddellijk vrij.
Justine organiseert voor deze garageboxen de bezoeken, mits het maken van een afspraak.
Verhuur via Bordes, met Justine, al jaren één van de marktleiders in vastgoed in Hooglede/Roeselare en de omliggende gemeenten. Met de glimlach, met de sleutel en met veel goesting.
Algemeen
- De huurprijs voor een garage (nog beschikbaar: nummer 8,9,10,11,12 en 15) bedraagt 65 EUR per maand
- De huurprijs voor een dubbele garage (nog beschikbaar: nummer 16) bedraagt 100 EUR per maand
- Onmiddellijk vrij
Troeven
- Gunstige locatie
Benieuwd?
Justine organiseert voor deze garageboxen de bezoeken, mits het maken van een afspraak.
Verhuur via Bordes, met Justine, al jaren één van de marktleiders in vastgoed in Hooglede/Roeselare en de omliggende gemeenten. Met de glimlach, met de sleutel en met veel goesting.
Deze 10 nieuwbouw garageboxen (waarvan twee dubbele garageboxen) bevinden zich achteraan een nieuwe residentie in de Kerkstraat te Houthulst. Onmiddellijk vrij. De huurprijs voor een garage (nog beschikbaar: nummer 8,9,10,11,12 en 15) bedraagt 65 EUR per maand. De huurprijs voor een dubbele garage (nog beschikbaar: nummer 16) bedraagt 100 EUR per maand. Justine organiseert voor deze garageboxen de bezoeken, mits het maken van een afspraak. www.bordes.be
Energie
- E-peil: E0
- Beglazing: Onbekend
Op de kaart

Financieel
| Prijs | |
|---|---|
| Maandelijkse kosten | € 0 |
Bijkomende info
Gebouw
| Bouwjaar | 2025 |
|---|---|
| Staat | Goed onderhouden |
Faciliteiten
| Septische tank | Nee |
|---|
Perceel
| Bebouwde oppervlakte (m²) | 0 |
|---|
Vergunning
| Verkavelingsvergunning | Geen beschikbaar |
|---|
Uitrusting
| Investeringspand | Nee |
|---|---|
| Parking | Nee |
| Garage | Nee |
| Lift | Nee |
| Rioolaansluiting | Nee |
| Gasaansluiting | Nee |
| Wateraansluiting | Nee |
| Elektriciteitsaansluiting | Nee |
| Internetaansluiting | Nee |
| Telefoonaansluiting | Nee |
| Zonnepanelen | Nee |
| Zonneboiler | Nee |
| Alarm | Nee |
| Videofoon | Nee |
| Grondwaterput | Nee |
Een pand van
Bordes Izegem
Bordes vastgoed opent deuren
Bel ons. We komen graag. Met de glimlach. Met de de sleutel. En met heel veel goesting. In Izegem, Merelbeke, Waregem en Hooglede. We gaan allemaal dat stapje verder. Voor elke klant. Elke dag. Altijd opnieuw. Van vroeg tot laat. Omdat we weten dat we zo resultaten halen. Omdat we zo de klant echt helpen. En omdat we zo zijn. We zijn Bordes. We verkopen en verhuren vastgoed. En weet je hoe we dat doen? Eerst luisteren we. Om te weten en te begrijpen. Vervolgens denken we. In oplossingen. Daarna beloven we. En dan doen we meer. Keer op keer.
🩵 Bordes Izegem is een vaste waarde in de vastgoedmarkt van Izegem en de ruime regio. Als ervaren vastgoedmakelaar begeleiden we klanten bij de verkoop en aankoop van woningen, appartementen, bouwgronden en nieuwbouwprojecten.
⭐️ Met een uitstekende klantentevredenheid (HouseMatch-score 4,9/5) en meer dan 2000 succesvolle vastgoedtransacties bouwen we vanuit Bordes Izegem actief mee aan de vastgoedtoekomst in onze regio.
✨ Onze aanpak garandeert betrokkenheid, lokale kennis en professionele begeleiding — met de glimlach, de sleutel en veel goesting.
📍 Vanuit Bordes Izegem zijn we actief in Izegem (centrum, Kachtem, Emelgem), Ingelmunster, Lendelede, Ledegem, Roeselare, Rumbeke, Heule, Kuurne, Harelbeke, Hulste, Zwevegem, Kortrijk, Tielt, Meulebeke, Oostrozebeke, Dentergem, Ardooie, Pittem, Wielsbeke, Waregem, Deerlijk, Anzegem, Zulte, Zedelgem en Wingene.
VH25015
Leer meer over vastgoed
26 October 2025
Fake huuradvertenties op Facebook
06 July 2025
Wie betaalt herstellingen aan de huurwoning?
01 July 2025
Ik wil mijn huurcontract opzeggen. Hoe doe ik dit?
20 April 2025