Beschikbaar vanaf 1 jun. 2026
Nieuw Virtual tour
Nieuwbouwwoning met 3 ruime slaapkamers en tuin.
Een pand van Vastgoed Vanoverschelde
Overzicht
- 279 m² grond
- 3 Slaapkamer(s)
- 1 Badkamer(s)
- 2 Toilet(ten)
- 1 Living(s)
- 1 Tuin
Beschrijving
Deze nieuwbouwwoning is rustig gelegen in het centrum van Klerken, deelgemeente van Houthulst.
Deze woonst heeft volgende indeling.
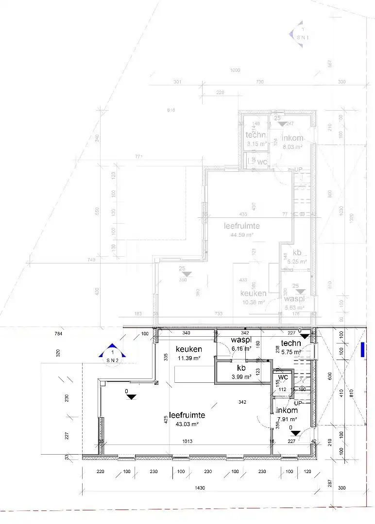
GELIJKVLOERS:
Inkom - apart toilet - leefruimte met open ingerichte keuken – ruime berging en wasplaats.
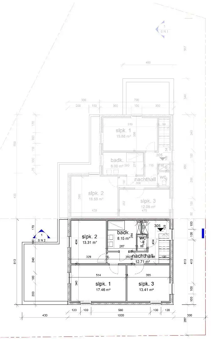
VERDIEP 1:
Nachthal - apart toilet – ingerichte badkamer – 3 ruime slaapkamers.
TUIN:
Oprit - aangelegde en omheinde tuin.
ALGEMEEN:
- CV op aardgas, vloerverwarming.
- Schrijnwerk: PVC - hoogrendementsbeglazing.
- Zonnepanelen aanwezig.
- EPB van toepassing.
- Alle comfort aanwezig!
- Vrij vanaf 01/06/2026.
Meer info op www.vastgoedvanoverschelde.be
Deze woonst heeft volgende indeling.
GELIJKVLOERS:
Inkom - apart toilet - leefruimte met open ingerichte keuken – ruime berging en wasplaats.
VERDIEP 1:
Nachthal - apart toilet – ingerichte badkamer – 3 ruime slaapkamers.
TUIN:
Oprit - aangelegde en omheinde tuin.
ALGEMEEN:
- CV op aardgas, vloerverwarming.
- Schrijnwerk: PVC - hoogrendementsbeglazing.
- Zonnepanelen aanwezig.
- EPB van toepassing.
- Alle comfort aanwezig!
- Vrij vanaf 01/06/2026.
Meer info op www.vastgoedvanoverschelde.be
Energie
![]() |
- Beglazing: Hoog efficient dubbel
Zelfcheck
Op de kaart

Financieel
| Prijs | |
|---|---|
| Kadastraal inkomen (niet geïndexeerd) | € 0 |
| Kadastraal inkomen (geïndexeerd) | € 0 |
Bijkomende info
Gebouw
| Bouwjaar | 2024 |
|---|---|
| Staat | Goed onderhouden |
| Is beschermd | Nee |
| Badkamers | 1 |
| Slaapkamers | 3 |
| Keukens | 1 |
| Leefruimtes | 1 |
| Parkeerplaatsen | 1 |
| Toiletten | 2 |
Ruimtes
| Slaapkamer | 17.46 m² |
|---|---|
| Slaapkamer | 13.41 m² |
| Slaapkamer | 13.31 m² |
| Keuken | 11.39 m² |
| Leefruimte | 43.03 m² |
Faciliteiten
| Keuken | Open keuken |
|---|---|
| Keuken uitrusting | Goed uitgerust |
| Materiaal ramenomlijstingen | PVC |
| Beglazing | Hoog efficient dubbel |
| Luiken | Nee |
| Primair verwarmingstype | Centrale verwarming |
| Primaire verwarmingsbron | Condensatieketel |
| Primaire verwarming | Vloerverwarming |
Perceel
| Totale oppervlakte (m²) | 279 |
|---|---|
| Oriëntatie tuin | Zuid |
Uitrusting
| Meerdere eigenaars | Nee |
|---|---|
| Geschikt als kangoeroewoning | Nee |
| Geschikt voor rolstoelgebruikers | Nee |
| Geschikt voor praktijk | Nee |
| Volledig onderkelderd | Nee |
| Parking | Ja |
| Garage | Nee |
| Thuiskantoor | Nee |
| Kelder | Nee |
| Zolder | Nee |
| Opslagruimte | Nee |
| Tuin | Ja |
| Terras | Nee |
| Lift | Nee |
| Rioolaansluiting | Ja |
| Gasaansluiting | Ja |
| Wateraansluiting | Ja |
| Elektriciteitsaansluiting | Ja |
| TV aansluiting | Ja |
| Internetaansluiting | Ja |
| Zonnepanelen | Ja |
| Zonneboiler | Nee |
| Alarm | Nee |
| Zwembad | Nee |
| Jacuzzi | Nee |
| Toonzaal | Nee |
| Ventilatie | Ja |
Een pand van
Vastgoed Vanoverschelde
Vastgoed op mensenmaat
U wilt een eigendom kopen, verkopen, huren, verhuren?
Bij Vastgoed Vanoverschelde maken wij tijd voor een goed gesprek waarin u uitlegt wat uw wensen zijn...
De basis van een goede samenwerking.
VV2026-012H
Leer meer over vastgoed
26 October 2025
Fake huuradvertenties op Facebook
06 July 2025
Wie betaalt herstellingen aan de huurwoning?
01 July 2025
Ik wil mijn huurcontract opzeggen. Hoe doe ik dit?
20 April 2025
