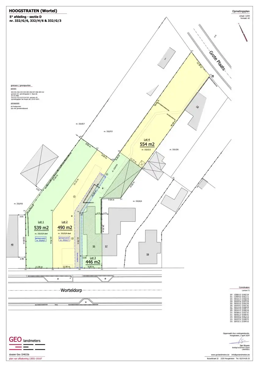
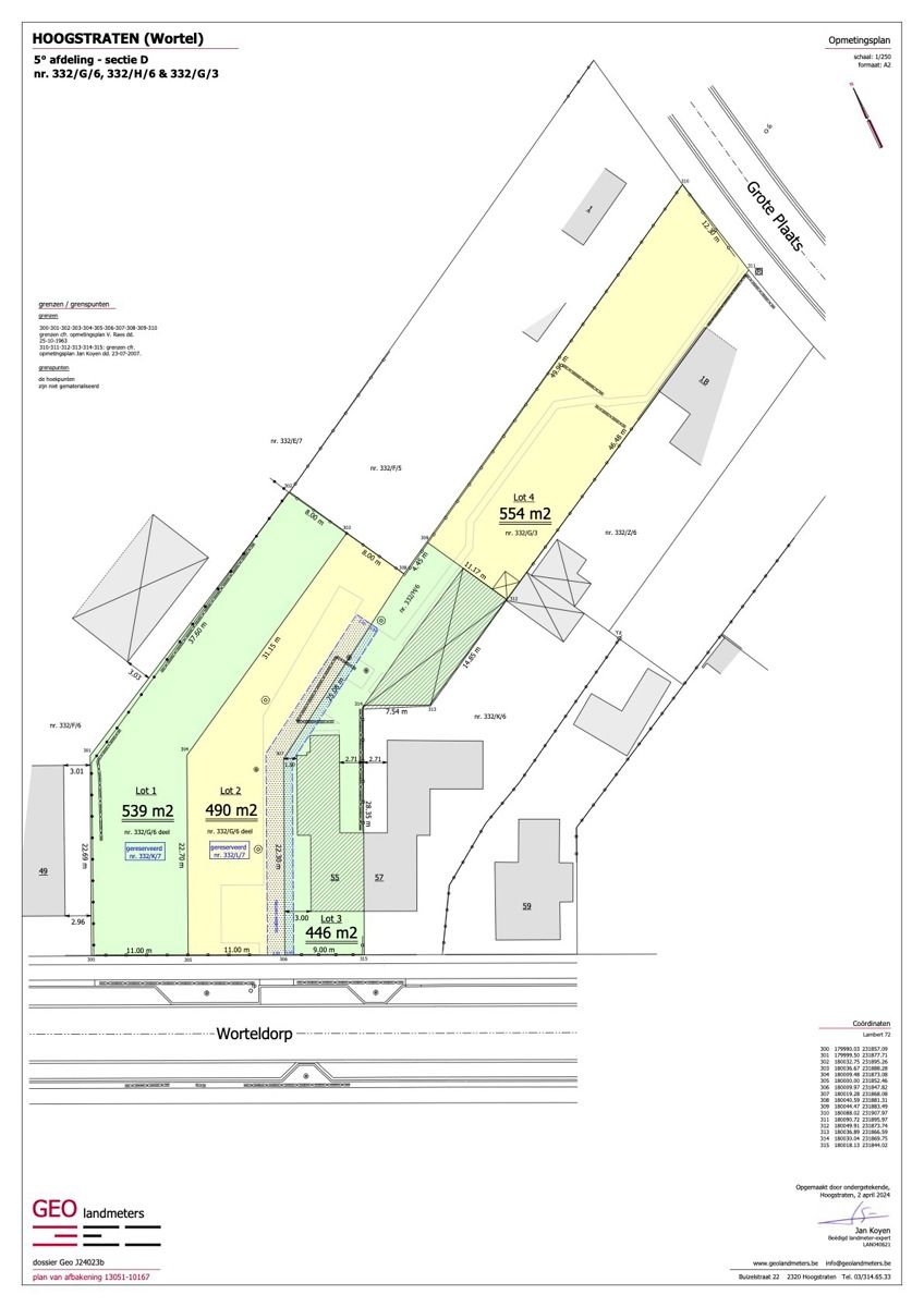
Bouwgrond voor halfopen bebouwing te koop 554m2 Wortel
Een pand van Albert Rijkevorsel
Favoriet
Jouw zoektocht
Jouw scoretabel voor dit pand
Aan het laden...
Jouw geplande bezichtigingen
Aan het laden...
Overzicht
- 554 m² grond
Beschrijving
Bent u op zoek naar een bouwgrond voor een halfopen bebouwing op een gunstige locatie? Dit perceel, gelegen in Wortel (Hoogstraten), biedt uitstekende bouwmogelijkheden binnen de geldende stedenbouwkundige voorschriften.
MOGELIJKHEID MET 4 LOTEN
Kenmerken:
Bestemd voor een eengezinswoning (halfopen bebouwing)
Maximale nokhoogte: 11,5 m
Kroonlijsthoogte voorgevel: tussen 6,5 m en 7 m
Toegelaten dakvorm: zadeldak (45° helling) tot een diepte van 9 m, daarna plat dak
Bouwdiepte: maximaal 13 m
Vrijstaande zijgevel op minimaal 3 m van de perceelgrens
Mogelijkheid tot kantoorfunctie, vrij beroep of dienstverlening, mits de woonfunctie behouden blijft
Gevelmaterialen: baksteen (eventueel geschilderd), sierpleister in lichte kleuren, natuursteen, hout of zink (max. 25% van de gevel)
Parkeervoorzieningen en opritten conform gemeentelijke richtlijnen
Dit perceel biedt veel architecturale vrijheid en is ideaal voor wie een moderne, energiezuinige woning wil bouwen in een aangename omgeving.
Mis deze kans niet! Plan snel je bezoek en ontdek deze ruime woning zelf.
0474 34 43 00
bart.gerardi@albert.immo
www.albert.immo
Bij Albert kom je thuis!
MOGELIJKHEID MET 4 LOTEN
Kenmerken:
Bestemd voor een eengezinswoning (halfopen bebouwing)
Maximale nokhoogte: 11,5 m
Kroonlijsthoogte voorgevel: tussen 6,5 m en 7 m
Toegelaten dakvorm: zadeldak (45° helling) tot een diepte van 9 m, daarna plat dak
Bouwdiepte: maximaal 13 m
Vrijstaande zijgevel op minimaal 3 m van de perceelgrens
Mogelijkheid tot kantoorfunctie, vrij beroep of dienstverlening, mits de woonfunctie behouden blijft
Gevelmaterialen: baksteen (eventueel geschilderd), sierpleister in lichte kleuren, natuursteen, hout of zink (max. 25% van de gevel)
Parkeervoorzieningen en opritten conform gemeentelijke richtlijnen
Dit perceel biedt veel architecturale vrijheid en is ideaal voor wie een moderne, energiezuinige woning wil bouwen in een aangename omgeving.
Mis deze kans niet! Plan snel je bezoek en ontdek deze ruime woning zelf.
0474 34 43 00
bart.gerardi@albert.immo
www.albert.immo
Bij Albert kom je thuis!
Bent u op zoek naar een bouwgrond voor een halfopen bebouwing op een gunstige locatie? Dit perceel, gelegen in Wortel (Hoogstraten), biedt uitstekende bouwmogelijkheden binnen de geldende stedenbouwkundige voorschriften.
Kenmerken:
Bestemd voor een eengezinswoning (halfopen bebouwing)
Maximale nokhoogte: 11,5 m
Kroonlijsthoogte voorgevel: tussen 6,5 m en 7 m
Toegelaten dakvorm: zadeldak (45° helling) tot een diepte van 9 m, daarna plat dak
Bouwdiepte: maximaal 13 m
Vrijstaande zijgevel op minimaal 3 m van de perceelgrens
Mogelijkheid tot kantoorfunctie, vrij beroep of dienstverlening, mits de woonfunctie behouden blijft
Gevelmaterialen: baksteen (eventueel geschilderd), sierpleister in lichte kleuren, natuursteen, hout of zink (max. 25% van de gevel)
Parkeervoorzieningen en opritten conform gemeentelijke richtlijnen
Dit perceel biedt veel architecturale vrijheid en is ideaal voor wie een moderne, energiezuinige woning wil bouwen in een aangename omgeving.
Mis deze kans niet! Plan snel je bezoek en ontdek deze ruime woning zelf.
0474 34 43 00
bart.gerardi@albert.immo
www.albert.immo
Bij Albert kom je thuis!
Kenmerken:
Bestemd voor een eengezinswoning (halfopen bebouwing)
Maximale nokhoogte: 11,5 m
Kroonlijsthoogte voorgevel: tussen 6,5 m en 7 m
Toegelaten dakvorm: zadeldak (45° helling) tot een diepte van 9 m, daarna plat dak
Bouwdiepte: maximaal 13 m
Vrijstaande zijgevel op minimaal 3 m van de perceelgrens
Mogelijkheid tot kantoorfunctie, vrij beroep of dienstverlening, mits de woonfunctie behouden blijft
Gevelmaterialen: baksteen (eventueel geschilderd), sierpleister in lichte kleuren, natuursteen, hout of zink (max. 25% van de gevel)
Parkeervoorzieningen en opritten conform gemeentelijke richtlijnen
Dit perceel biedt veel architecturale vrijheid en is ideaal voor wie een moderne, energiezuinige woning wil bouwen in een aangename omgeving.
Mis deze kans niet! Plan snel je bezoek en ontdek deze ruime woning zelf.
0474 34 43 00
bart.gerardi@albert.immo
www.albert.immo
Bij Albert kom je thuis!
Energie
Op de kaart

Financieel
| Prijs |
|---|
Berekening kosten
Je aankoopkosten? Die heb je snel berekend via de knop hieronder.
Bijkomende info
Perceel
| Diepte (m) | 48 |
|---|---|
| P-score | B |
| Voorkeurrecht | Nee |
| Totale oppervlakte (m²) | 554 |
Vergunning
| Vergunning | Geen beschikbaar |
|---|---|
| Verkavelingsvergunning | Geen beschikbaar |
| Bouwovertreding | Geen |
| Bouwovertreding dagvaardiging | Geen |
Een pand van
Albert Rijkevorsel
Albert is jouw no-nonsense partner in residentieel vastgoed en dit vanuit onze 10 lokaal verankerde kantoren in Vlaanderen!
Bij ons kom je thuis!
Albert is jouw no-nonsense partner in residentieel vastgoed en dit vanuit onze 10 lokaal verankerde kantoren in Vlaanderen!
Of het nu aankoop, verkoop, huur, verhuur of andere vastgoed gerelateerde vragen betreft, ons ervaren en gepassioneerd team van experten staat voor je klaar!
Bij Albert geen overhaaste aanpak maar een oprechte investering in elke klant, elk dossier, elke keer opnieuw. We always go the extra mile zodat we een kwalitatief resultaat en persoonlijke service kunnen bieden en garanderen.
Benieuwd wat jouw eigendom waard is? Bij Albert kan je terecht voor een gratis en vrijblijvende schatting in één van onze kantoren.
Aarzel niet en contacteer ons vandaag nog geheel vrijblijvend via familie@albert.immo of 0800 252 37. Wij ondersteunen en ontzorgen jou graag op een transparante, authentieke en persoonlijke wijze!
Leer meer over vastgoed
23 March 2026
Op Spotto zoeken als een pro: 10 slimme tips
21 March 2026
Hoeveel kan ik lenen om een huis te kopen?
01 March 2026
Wanneer heb ik een bouwvergunning of omgevingsvergunning nodig?
17 February 2026