In optie
IN OPTIE. Bouwgrond voor halfopen bebouwing op 490m2 grond
€ 179.000
2323 Hoogstraten Wortel
Een pand van Albert Rijkevorsel
Overzicht
- 490 m² grond
Beschrijving
Bent u op zoek naar een bouwgrond voor een halfopen bebouwing op een gunstige locatie? Dit perceel, gelegen in Wortel (Hoogstraten), biedt uitstekende bouwmogelijkheden binnen de geldende stedenbouwkundige voorschriften.
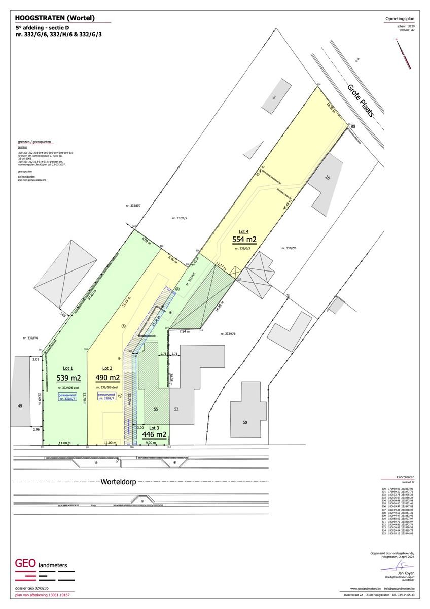
MOGELIJKHEID MET 4 LOTEN
Kenmerken:
Bestemd voor een eengezinswoning (halfopen bebouwing)
Kroonlijsthoogte voorgevel: tussen 6,5 m en 7 m
Toegelaten dakvorm: zadeldak (45° helling) tot een diepte van 9 m, daarna plat dak
Bouwdiepte: maximaal 13 m
Vrijstaande zijgevel op minimaal 3 m van de perceelgrens
Gevelmaterialen: baksteen (eventueel geschilderd), sierpleister in lichte kleuren, natuursteen, hout of zink (max. 25% van de gevel)
Parkeervoorzieningen en opritten conform gemeentelijke richtlijnen
Dit perceel biedt veel architecturale vrijheid en is ideaal voor wie een moderne, energiezuinige woning wil bouwen in een aangename omgeving.
Mis deze kans niet! Plan snel je bezoek en ontdek deze ruime woning zelf.
0474 34 43 00
bart.gerardi@albert.immo
www.albert.immo
Bij Albert kom je thuis!
MOGELIJKHEID MET 4 LOTEN
Kenmerken:
Bestemd voor een eengezinswoning (halfopen bebouwing)
Kroonlijsthoogte voorgevel: tussen 6,5 m en 7 m
Toegelaten dakvorm: zadeldak (45° helling) tot een diepte van 9 m, daarna plat dak
Bouwdiepte: maximaal 13 m
Vrijstaande zijgevel op minimaal 3 m van de perceelgrens
Gevelmaterialen: baksteen (eventueel geschilderd), sierpleister in lichte kleuren, natuursteen, hout of zink (max. 25% van de gevel)
Parkeervoorzieningen en opritten conform gemeentelijke richtlijnen
Dit perceel biedt veel architecturale vrijheid en is ideaal voor wie een moderne, energiezuinige woning wil bouwen in een aangename omgeving.
Mis deze kans niet! Plan snel je bezoek en ontdek deze ruime woning zelf.
0474 34 43 00
bart.gerardi@albert.immo
www.albert.immo
Bij Albert kom je thuis!
Bent u op zoek naar een bouwgrond voor een halfopen bebouwing op een gunstige locatie? Dit perceel, gelegen in Wortel (Hoogstraten), biedt uitstekende bouwmogelijkheden binnen de geldende stedenbouwkundige voorschriften.
Kenmerken:
Bestemd voor een eengezinswoning (halfopen bebouwing)
Kroonlijsthoogte voorgevel: tussen 6,5 m en 7 m
Toegelaten dakvorm: zadeldak (45° helling) tot een diepte van 9 m, daarna plat dak
Bouwdiepte: maximaal 13 m
Vrijstaande zijgevel op minimaal 3 m van de perceelgrens
Gevelmaterialen: baksteen (eventueel geschilderd), sierpleister in lichte kleuren, natuursteen, hout of zink (max. 25% van de gevel)
Parkeervoorzieningen en opritten conform gemeentelijke richtlijnen
Dit perceel biedt veel architecturale vrijheid en is ideaal voor wie een moderne, energiezuinige woning wil bouwen in een aangename omgeving.
Mis deze kans niet! Plan snel je bezoek en ontdek deze ruime woning zelf.
0474 34 43 00
bart.gerardi@albert.immo
www.albert.immo
Bij Albert kom je thuis!
Kenmerken:
Bestemd voor een eengezinswoning (halfopen bebouwing)
Kroonlijsthoogte voorgevel: tussen 6,5 m en 7 m
Toegelaten dakvorm: zadeldak (45° helling) tot een diepte van 9 m, daarna plat dak
Bouwdiepte: maximaal 13 m
Vrijstaande zijgevel op minimaal 3 m van de perceelgrens
Gevelmaterialen: baksteen (eventueel geschilderd), sierpleister in lichte kleuren, natuursteen, hout of zink (max. 25% van de gevel)
Parkeervoorzieningen en opritten conform gemeentelijke richtlijnen
Dit perceel biedt veel architecturale vrijheid en is ideaal voor wie een moderne, energiezuinige woning wil bouwen in een aangename omgeving.
Mis deze kans niet! Plan snel je bezoek en ontdek deze ruime woning zelf.
0474 34 43 00
bart.gerardi@albert.immo
www.albert.immo
Bij Albert kom je thuis!
Energie
Financieel
| Prijs |
|---|
Berekening kosten
Je aankoopkosten? Die heb je snel berekent via de knop hieronder.
Bijkomende info
Perceel
| P-score | A |
|---|---|
| Voorkeurrecht | Nee |
| Totale oppervlakte (m²) | 490 |
Vergunning
| Vergunning | Geen beschikbaar |
|---|---|
| Verkavelingsvergunning | Vergunning beschikbaar |
| Bouwovertreding | Geen |
| Bouwovertreding dagvaardiging | Geen |
Een pand van
Albert Rijkevorsel
Albert is jouw no-nonsense partner in residentieel vastgoed en dit vanuit onze 10 lokaal verankerde kantoren in Vlaanderen!
Bij ons kom je thuis!
Albert is jouw no-nonsense partner in residentieel vastgoed en dit vanuit onze 10 lokaal verankerde kantoren in Vlaanderen!
Of het nu aankoop, verkoop, huur, verhuur of andere vastgoed gerelateerde vragen betreft, ons ervaren en gepassioneerd team van experten staat voor je klaar!
Bij Albert geen overhaaste aanpak maar een oprechte investering in elke klant, elk dossier, elke keer opnieuw. We always go the extra mile zodat we een kwalitatief resultaat en persoonlijke service kunnen bieden en garanderen.
Benieuwd wat jouw eigendom waard is? Bij Albert kan je terecht voor een gratis en vrijblijvende schatting in één van onze kantoren.
Aarzel niet en contacteer ons vandaag nog geheel vrijblijvend via familie@albert.immo of 0800 252 37. Wij ondersteunen en ontzorgen jou graag op een transparante, authentieke en persoonlijke wijze!
Leer meer over vastgoed
24 November 2025
Uitgezocht voor jouw gemeente: Hoeveel stijgt de waarde van je woning door een renovatie?
22 October 2025
Hoeveel kan ik lenen om een huis te kopen?
11 June 2025
Huis kopen met bouwovertreding? Dit moet je weten
11 May 2025