Nieuw Virtual tour
Energiezuinige woning in Wortel
Een pand van Albert Rijkevorsel
Favoriet
Jouw zoektocht
Jouw scoretabel voor dit pand
Aan het laden...
Jouw geplande bezichtigingen
Aan het laden...
Overzicht
- 155 m² bewoonbaar
- 300 m² grond
- 3 Slaapkamer(s)
- 1 Badkamer(s)
- 2 Toilet(ten)
- 1 Tuin
Beschrijving
Ontdek deze moderne en energiezuinige woning gelegen in een rustige wijk in Wortel. Deze recente woning combineert comfort met duurzaamheid en beschikt over een uitstekende EPC-score van A+. De woning geniet van vloerverwarming en ventilatiesysteem C.
De woning biedt drie volwaardige slaapkamers en is ideaal voor gezinnen of wie op zoek is naar extra ruimte. De rustige ligging maakt het geheel compleet en zorgt voor een aangename woonomgeving.Bovendien beschikt de woning over een gezellige tuin met terras, waar u in alle rust kan genieten van het buitenleven.
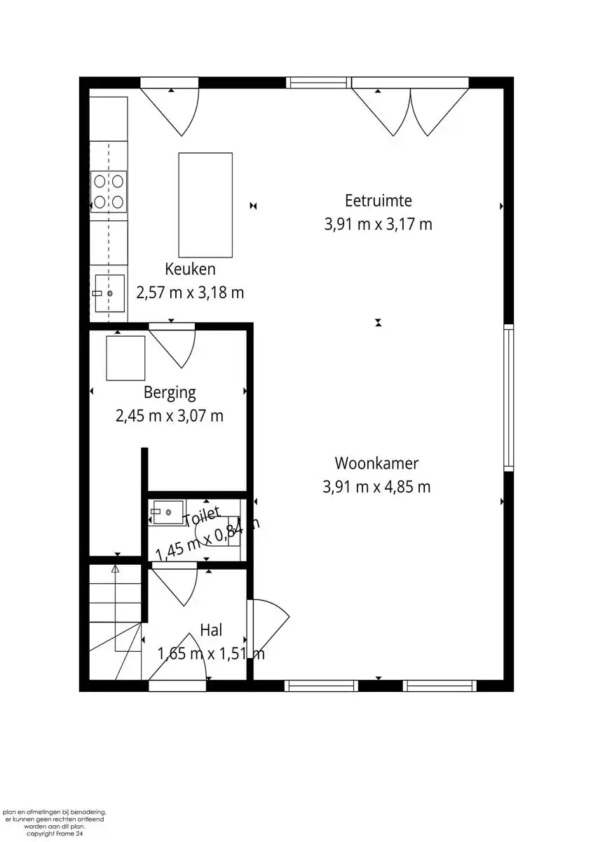
Indeling:
Gelijkvloers:
-Inkomhal met apart toilet
-Woonkamer
-Open keuken
-Berging
Eerste verdieping:
-Nachthal
-Slaapkamer 1
-Slaapkamer 2
-Slaapkamer 3
-Badkamer
Tweede verdieping:
-Zolderruimte
Mis deze kans niet en plan een bezoek in!
04 86 905 950
toon.vermeiren@albert.immo
www.albert.immo
Bij Albert komt je thuis!
De woning biedt drie volwaardige slaapkamers en is ideaal voor gezinnen of wie op zoek is naar extra ruimte. De rustige ligging maakt het geheel compleet en zorgt voor een aangename woonomgeving.Bovendien beschikt de woning over een gezellige tuin met terras, waar u in alle rust kan genieten van het buitenleven.
Indeling:
Gelijkvloers:
-Inkomhal met apart toilet
-Woonkamer
-Open keuken
-Berging
Eerste verdieping:
-Nachthal
-Slaapkamer 1
-Slaapkamer 2
-Slaapkamer 3
-Badkamer
Tweede verdieping:
-Zolderruimte
Mis deze kans niet en plan een bezoek in!
04 86 905 950
toon.vermeiren@albert.immo
www.albert.immo
Bij Albert komt je thuis!
Energie
![]() |
- EPC Certificaat: 13014-G-OMV_2022159858/EP11928/A001/D02/SD001
Op de kaart

Downloads
- EPB.pdf (pdf)
Financieel
| Prijs |
|---|
Berekening kosten
Je aankoopkosten? Die heb je snel berekend via de knop hieronder.
Bijkomende info
Gebouw
| Bouwjaar | 2024 |
|---|---|
| Staat | Goed onderhouden |
| Bewoonbaar (m²) | 155 |
| Gevels | 3 |
| Badkamers | 1 |
| Slaapkamers | 3 |
| Parkeerplaatsen | 1 |
| Doucheruimtes | 1 |
| Toiletten | 2 |
Faciliteiten
| Type vloer | |
|---|---|
| Keuken uitrusting | Goed uitgerust |
| Elektrisch keuringsattest | Ja |
Perceel
| Voorkeurrecht | Nee |
|---|---|
| Totale oppervlakte (m²) | 300 |
| Bebouwde oppervlakte (m²) | 70 |
| Tuin oppervlakte (m²) | 0 |
| Oriëntatie voorgevel | Zuidwest |
| Oriëntatie terras | Noordwest |
Vergunning
| Vergunning | Vergunning beschikbaar |
|---|---|
| Verkavelingsvergunning | Vergunning beschikbaar |
| Bouwovertreding | Geen |
| Bouwovertreding dagvaardiging | Geen |
Uitrusting
| Parking | Ja |
|---|---|
| Garage | Nee |
| Kelder | Nee |
| Zolder | Ja |
| Tuin | Ja |
| Terras | Ja |
| Lift | Nee |
| Gasaansluiting | Ja |
| Wateraansluiting | Ja |
| Elektriciteitsaansluiting | Ja |
| TV aansluiting | Ja |
| Telefoonaansluiting | Ja |
| Regenwaterput | Ja |
Een pand van
Albert Rijkevorsel
Albert is jouw no-nonsense partner in residentieel vastgoed en dit vanuit onze 10 lokaal verankerde kantoren in Vlaanderen!
Bij ons kom je thuis!
Albert is jouw no-nonsense partner in residentieel vastgoed en dit vanuit onze 10 lokaal verankerde kantoren in Vlaanderen!
Of het nu aankoop, verkoop, huur, verhuur of andere vastgoed gerelateerde vragen betreft, ons ervaren en gepassioneerd team van experten staat voor je klaar!
Bij Albert geen overhaaste aanpak maar een oprechte investering in elke klant, elk dossier, elke keer opnieuw. We always go the extra mile zodat we een kwalitatief resultaat en persoonlijke service kunnen bieden en garanderen.
Benieuwd wat jouw eigendom waard is? Bij Albert kan je terecht voor een gratis en vrijblijvende schatting in één van onze kantoren.
Aarzel niet en contacteer ons vandaag nog geheel vrijblijvend via familie@albert.immo of 0800 252 37. Wij ondersteunen en ontzorgen jou graag op een transparante, authentieke en persoonlijke wijze!
Leer meer over vastgoed
Nieuw
23 March 2026
Op Spotto zoeken als een pro: 10 slimme tips
Nieuw
21 March 2026
Hoeveel kan ik lenen om een huis te kopen?
01 March 2026
Wanneer heb ik een bouwvergunning of omgevingsvergunning nodig?
17 February 2026
