Beleef ZORGELOOS wonen in SCHILDE
€ 362.500
Een pand van BUYTAERT Immo Consulting
Overzicht
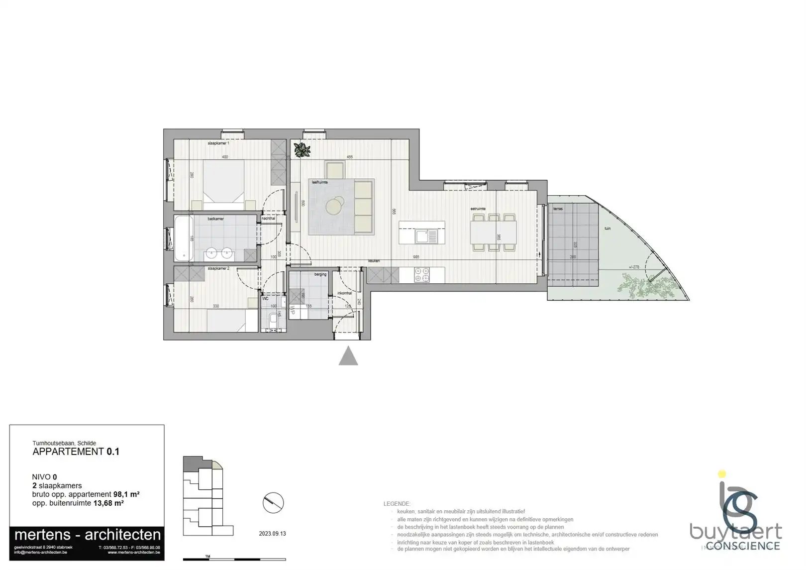
- 98.1 m² bewoonbaar
- 112 m² grond
- 2 Slaapkamer(s)
- 1 Badkamer(s)
- 1 Toilet(ten)
- 1 Tuin
- 1 Garage(s)
Beschrijving
GELIJKVLOERS twee slaapkamer appartement in het centrum van Schilde, de werken zijn gestart van deze prachtige NIEUWBOUW Residentie CONSCIENCE.
Kopen aan 6% btw op de constructies is hier mogelijk zowel voor enige/eigen woonst als voor investeerders (15j verhuur). Wij informeren u er graag over.
In een modern gebouw met lift bevindt zich dit appartement op de gelijkvloerse verdieping, omvat inkomhal, gastentoilet, leefruimte met toegang tot het terras, privatieve tuin, ingerichte open keuken met alle nodige toestellen, berging/wasplaats met aansluiting voor wasmachine en droogkast, 2 slaapkamers en een ingerichte badkamer met een lavabomeubel en inloopdouche of bad.
De indeling en afwerking wordt met u persoonlijk besproken. Hiervoor zijn budgetten voorzien in het lastenboek.
Residentie Conscience is een project van 'Westhoek', bestaande uit 16 appartementen met één, twee of drie slaapkamers, warvan 4 duplex appartementen/penthouses.
De residentie biedt een ideale thuisbasis aan mensen die willen genieten van de gezellige levenssfeer die Schilde te bieden heeft.
De appartementen zijn ontworpen met een groot oog voor detail, met veel lichtinval.
Dankzij het design en de grote raampartijen ervaart u er het ultieme ruimtegevoel.
Het gebouw is zo ingedeeld dat elk appartement over een terras of tuin beschikt.
Gezellig ingerichte tuintjes zodat u optimaal kan genieten van de avondzon.
De ondergrondse parking zorgt ervoor dat thuiskomen in alle comfort kan gebeuren, voorzien van ondergrondse autostaanplaatsen (+28.900€) of buiten autostaanplaatsen (+15.000€), privatieve bergingen (+ ca 6.000€) - inclusief fietsenberging.
Afwerking volgens budgetten in het lastenboek: hoogwaardige materialen, zoals parket, vloerverwarming warmtepomp, gebouwd volgens BEN-principes, E-peil max 30,...
Centrale ligging, gelegen nabij het dorp, omgeven door een aangelegde tuin. Vlakbij winkels, openbaar vervoer, gemakkelijke bereikbaarheid, vlakbij fiets- en wandelroutes om de natuur op te zoeken.
Prijzen zijn vermeld excl kosten registratie op de grondwaarde en btw op de constructiewaarde, notaris ereloon, aansluitingskosten nutsvoorziening.
U bent van harte welkom om de plannen en mogelijkheden samen te bespreken. Plan alvast uw afspraak bij ons op kantoor!
Energie
![]() |
- EPC Certificaat: nieuwbouw
- E-peil: E30
- Beglazing: Standaard dubbel
Op de kaart

Financieel
| Prijs | |
|---|---|
| Kadastraal inkomen (niet geïndexeerd) | € 0 |
| Kadastraal inkomen (geïndexeerd) | € 0 |
Bijkomende info
Gebouw
| Bouwjaar | 2025 |
|---|---|
| Staat | Nieuw |
| Bouwcertificaat | Ja |
| Bewoonbaar (m²) | 98.1 |
| Verdieping | 0 |
| Badkamers | 1 |
| Slaapkamers | 2 |
| Verdiepingen | 0 |
| Garages | 1 |
| Parkeerplaatsen | 0 |
| Doucheruimtes | 0 |
| Toiletten | 1 |
Faciliteiten
| Keuken uitrusting | Luxueus uitgerust |
|---|---|
| Materiaal ramenomlijstingen | Aluminium |
| Beglazing | Standaard dubbel |
| Elektrisch keuringsattest | Ja |
Perceel
| Overstromingsgevoelig | Geen |
|---|---|
| Voorkeurrecht | Nee |
| Totale oppervlakte (m²) | 112 |
| Bebouwde oppervlakte (m²) | 0 |
| Tuin oppervlakte (m²) | 13 |
| Oppervlakte terras (m²) | 0 |
| Oriëntatie tuin | Zuid |
Vergunning
| Vergunning | Vergunning beschikbaar |
|---|---|
| Verkavelingsvergunning | Geen beschikbaar |
Uitrusting
| Investeringspand | Nee |
|---|---|
| Geschikt voor praktijk | Nee |
| Parking | Nee |
| Garage | Ja |
| Thuiskantoor | Nee |
| Kelder | Ja |
| Zolder | Nee |
| Tuin | Ja |
| Terras | Nee |
| Lift | Ja |
| Rioolaansluiting | Nee |
| Gasaansluiting | Nee |
| Wateraansluiting | Nee |
| Elektriciteitsaansluiting | Nee |
| TV aansluiting | Nee |
| Internetaansluiting | Nee |
| Telefoonaansluiting | Nee |
Appartementsblok
| Naam residentie | Beleef ZORGELOOS wonen in SCHILDE |
|---|---|
| Lift | Ja |
