Nieuw
Residentie 's GRAEVENHOF - Nieuwbouwwoning met autostaanplaats
€ 690.000
Een pand van ' t Waterhuys Vastgoed
Favoriet
Jouw zoektocht
Jouw scoretabel voor dit pand
Aan het laden...
Jouw geplande bezichtigingen
Aan het laden...
Overzicht
- 230 m² bewoonbaar
- 208 m² grond
- 4 Slaapkamer(s)
- 2 Badkamer(s)
- 1 Tuin
Beschrijving
Woning 6: 4/6 slpk. + 2 bdk. + bureau
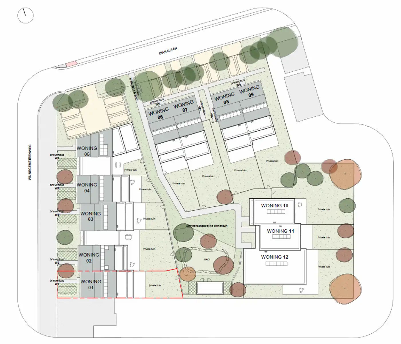
Residentie 's GRAEVENHOF biedt 12 nieuwbouwwoningen aan:
- 5 woningen langs de zijde Wijnegemsteenweg
- 4 woningen langs de zijde Dianalaan
- 3 woningen achteraan op het binnengebied
De woningen hebben bewoonbare oppervlakten tussen 142m² en 252m² + privatieve tuin en terras.
Verder zijn ze opgebouwd uit duurzame materialen en uitgerust met een verscheidenheid aan moderne, ecologische technieken, waaronder een lucht-water warmtepomp, zonnepanelen, vloerverwarming en een ventilatiesysteem.
De architectuur is modern en stijlvol, gekenmerkt door een combinatie van een lichte gevelsteen met houten gevelbekleding en donkere, kwalitatieve aluminium ramen.
's GRAEVENHOF omvat zowel woningen met platte daken als woningen met hellende daken, waarbij de laatste extra inrichtbare ruimte onder het dak bieden voor bijvoorbeeld een hobbyruimte of extra kamer.
De ligging van ’s GRAEVENHOF is ideaal: groen en rustig aan de rand van Hertenbos, nabij natuurgebieden zoals het Gravinnenbos en toch centraal.
Op enkele van de woningen is er een mogelijkheid om aan te kopen aan 6% BTW i.p.v. 21% BTW (vraag naar de voorwaarden).
Verkoop onder Wet Breyne.
Lanceringsvoorwaarde: volledig afgewerkte zolder GRATIS voor de snelle beslisser.
Prijs excl. BTW/registratie.
Voor meer info kan u terecht op www.waterhuys.be/sgraevenhof of gelieve contact op te nemen met ons kantoor - info@waterhuys.be - www.waterhuys.be/nieuwbouwprojecten - Vg-Wp-Gvv-Gvkr-Gmo-Gworg.
Residentie 's GRAEVENHOF biedt 12 nieuwbouwwoningen aan:
- 5 woningen langs de zijde Wijnegemsteenweg
- 4 woningen langs de zijde Dianalaan
- 3 woningen achteraan op het binnengebied
De woningen hebben bewoonbare oppervlakten tussen 142m² en 252m² + privatieve tuin en terras.
Verder zijn ze opgebouwd uit duurzame materialen en uitgerust met een verscheidenheid aan moderne, ecologische technieken, waaronder een lucht-water warmtepomp, zonnepanelen, vloerverwarming en een ventilatiesysteem.
De architectuur is modern en stijlvol, gekenmerkt door een combinatie van een lichte gevelsteen met houten gevelbekleding en donkere, kwalitatieve aluminium ramen.
's GRAEVENHOF omvat zowel woningen met platte daken als woningen met hellende daken, waarbij de laatste extra inrichtbare ruimte onder het dak bieden voor bijvoorbeeld een hobbyruimte of extra kamer.
De ligging van ’s GRAEVENHOF is ideaal: groen en rustig aan de rand van Hertenbos, nabij natuurgebieden zoals het Gravinnenbos en toch centraal.
Op enkele van de woningen is er een mogelijkheid om aan te kopen aan 6% BTW i.p.v. 21% BTW (vraag naar de voorwaarden).
Verkoop onder Wet Breyne.
Lanceringsvoorwaarde: volledig afgewerkte zolder GRATIS voor de snelle beslisser.
Prijs excl. BTW/registratie.
Voor meer info kan u terecht op www.waterhuys.be/sgraevenhof of gelieve contact op te nemen met ons kantoor - info@waterhuys.be - www.waterhuys.be/nieuwbouwprojecten - Vg-Wp-Gvv-Gvkr-Gmo-Gworg.
Woning 6: 4 slpk. + 2 bdk. + bureau
Residentie 's GRAEVENHOF biedt 12 nieuwbouwwoningen aan:
- 5 woningen langs de zijde Wijnegemsteenweg
- 4 woningen langs de zijde Dianalaan
- 3 woningen achteraan op het binnengebied
De woningen hebben bewoonbare oppervlakten tussen 142m² en 252m² + privatieve tuin en terras.
Verder zijn ze opgebouwd uit duurzame materialen en uitgerust met een verscheidenheid aan moderne, ecologische technieken, waaronder een lucht-water warmtepomp, zonnepanelen, vloerverwarming en een ventilatiesysteem.
De architectuur is modern en stijlvol, gekenmerkt door een combinatie van een lichte gevelsteen met houten gevelbekleding en donkere, kwalitatieve aluminium ramen.
's GRAEVENHOF omvat zowel woningen met platte daken als woningen met hellende daken, waarbij de laatste extra inrichtbare ruimte onder het dak bieden voor bijvoorbeeld een hobbyruimte of extra kamer.
De ligging van ’s GRAEVENHOF is ideaal: groen en rustig aan de rand van Hertenbos, nabij natuurgebieden zoals het Gravinnenbos en toch centraal.
Op enkele van de woningen is er een mogelijkheid om aan te kopen aan 6% BTW i.p.v. 21% BTW (vraag naar de voorwaarden).
Verkoop onder Wet Breyne.
Lanceringsvoorwaarde: volledig afgewerkte zolder GRATIS voor de snelle beslisser.
Prijs excl. BTW/registratie.
Voor meer info kan u terecht op www.waterhuys.be/sgraevenhof of gelieve contact op te nemen met ons kantoor - info@waterhuys.be - www.waterhuys.be/nieuwbouwprojecten - Vg-Wp-Gvv-Gvkr-Gmo-Gworg.
Residentie 's GRAEVENHOF biedt 12 nieuwbouwwoningen aan:
- 5 woningen langs de zijde Wijnegemsteenweg
- 4 woningen langs de zijde Dianalaan
- 3 woningen achteraan op het binnengebied
De woningen hebben bewoonbare oppervlakten tussen 142m² en 252m² + privatieve tuin en terras.
Verder zijn ze opgebouwd uit duurzame materialen en uitgerust met een verscheidenheid aan moderne, ecologische technieken, waaronder een lucht-water warmtepomp, zonnepanelen, vloerverwarming en een ventilatiesysteem.
De architectuur is modern en stijlvol, gekenmerkt door een combinatie van een lichte gevelsteen met houten gevelbekleding en donkere, kwalitatieve aluminium ramen.
's GRAEVENHOF omvat zowel woningen met platte daken als woningen met hellende daken, waarbij de laatste extra inrichtbare ruimte onder het dak bieden voor bijvoorbeeld een hobbyruimte of extra kamer.
De ligging van ’s GRAEVENHOF is ideaal: groen en rustig aan de rand van Hertenbos, nabij natuurgebieden zoals het Gravinnenbos en toch centraal.
Op enkele van de woningen is er een mogelijkheid om aan te kopen aan 6% BTW i.p.v. 21% BTW (vraag naar de voorwaarden).
Verkoop onder Wet Breyne.
Lanceringsvoorwaarde: volledig afgewerkte zolder GRATIS voor de snelle beslisser.
Prijs excl. BTW/registratie.
Voor meer info kan u terecht op www.waterhuys.be/sgraevenhof of gelieve contact op te nemen met ons kantoor - info@waterhuys.be - www.waterhuys.be/nieuwbouwprojecten - Vg-Wp-Gvv-Gvkr-Gmo-Gworg.
Energie
![]() |
Op de kaart

Financieel
| Prijs |
|---|
Berekening kosten
Je aankoopkosten? Die heb je snel berekend via de knop hieronder.
Bijkomende info
Gebouw
| Bouwjaar | 2026 |
|---|---|
| Staat | Nieuw |
| Bewoonbaar (m²) | 230 |
| Gevels | 3 |
| Badkamers | 2 |
| Slaapkamers | 4 |
| Verdiepingen | 3 |
| Parkeerplaatsen | 1 |
Faciliteiten
| Type vloer |
|---|
Perceel
| Overstromingsgevoelig | Geen |
|---|---|
| Voorkeurrecht | Nee |
| Totale oppervlakte (m²) | 208 |
| Tuin oppervlakte (m²) | 56 |
Vergunning
| Vergunning | Vergunning beschikbaar |
|---|---|
| Verkavelingsvergunning | Vergunning beschikbaar |
| Bouwovertreding | Geen |
| Bouwovertreding dagvaardiging | Geen |
Uitrusting
| Parking | Ja |
|---|---|
| Garage | Nee |
| Zolder | Ja |
| Tuin | Ja |
| Terras | Ja |
| Gasaansluiting | Nee |
| Wateraansluiting | Ja |
| Elektriciteitsaansluiting | Ja |
| TV aansluiting | Ja |
| Telefoonaansluiting | Ja |
| Regenwaterput | Ja |
Een pand van
' t Waterhuys Vastgoed
t Waterhuys Vastgoed Schilde
Wij handelen niet in huizen maar in thuizen.
7573868
Leer meer over vastgoed
23 March 2026
Op Spotto zoeken als een pro: 10 slimme tips
21 March 2026
Hoeveel kan ik lenen om een huis te kopen?
01 March 2026
Wanneer heb ik een bouwvergunning of omgevingsvergunning nodig?
17 February 2026
