Duplex-appartement
€ 149.000
Een pand van Groep Aathos
Overzicht
- 91 m² bewoonbaar
- 2 Slaapkamer(s)
- 1 Badkamer(s)
- 2 Toilet(ten)
- 1 Tuin
Beschrijving
Dit ruime en gunstig gelegen duplex-appartement bevindt zich nabij het ziekenhuis, het Sint-Franciscuscollege en het centrum van Heusden. Het maakt deel uit van een kleinschalig appartementsgebouw met slechts vier wooneenheden. Er zijn geen gemeenschappelijke kosten van toepassing.
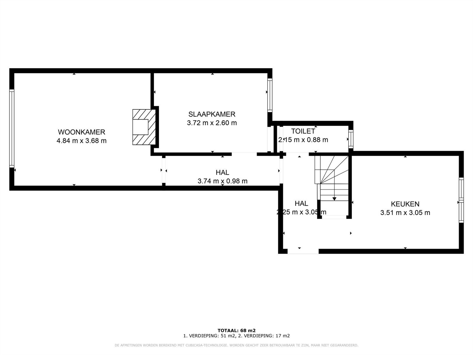
Bij het betreden van het appartement komen we terecht in de inkomhal, die toegang biedt tot de keuken, de woonkamer en een slaapkamer op het gelijkvloers.
De keuken is uitgerust met een elektrisch fornuis, een dampkap, een spoelbak en diverse opbergkasten. De aangrenzende woonkamer is ruim en heeft een oppervlakte van ongeveer 20 m². De slaapkamer op het gelijkvloers is circa 10 m² groot. Daarnaast is er op deze verdieping ook een apart toilet aanwezig.
Op de eerste verdieping bevindt zich een overloop die toegang geeft tot een tweede slaapkamer van ongeveer 11 m² en een badkamer.
De badkamer is ingericht met een douche, een lavabo en een toilet.
Voor het gebouw zijn er meerdere parkeerplaatsen beschikbaar.
Extra troeven:
- Gunstige ligging vlakbij Heusden centrum
- Kleinschalig appartementsgebouw (4)
- EPC-score van 298 kWh/m² = geen renovatieverplichting!
- Vernieuwde PVC ramen met dubbele beglazing
- Centrale verwarming op aardgas
- Geen gemeenschappelijke kosten
Wenst u meer informatie omtrent dit onroerend goed? Aarzel niet en contacteer ons gerust op het nummer: 011/57.23.16. of per mail op info@groepaathos.be
Energie
![]() |
- EPC Certificaat: 20230928-0002997866-RES-1
- Energieverbruik: 298 kWh/m²/jaar
- E-peil: E0
- Verwarming: Gas
- Beglazing: Standaard dubbel
Op de kaart

Financieel
| Prijs | |
|---|---|
| Kadastraal inkomen (niet geïndexeerd) | € 541 |
| Kadastraal inkomen (geïndexeerd) | € 0 |
Berekening kosten
Je aankoopkosten? Die heb je snel berekent via de knop hieronder.
Bijkomende info
Gebouw
| Bouwjaar | 1954 |
|---|---|
| Staat | Op te frissen |
| Bouwcertificaat | Nee |
| Bewoonbaar (m²) | 91 |
| Verdieping | 0 |
| Badkamers | 1 |
| Slaapkamers | 2 |
| Verdiepingen | 0 |
| Garages | 0 |
| Parkeerplaatsen | 1 |
| Doucheruimtes | 0 |
| Toiletten | 2 |
Faciliteiten
| Keuken uitrusting | Standaard |
|---|---|
| Materiaal ramenomlijstingen | PVC |
| Beglazing | Standaard dubbel |
| Brandstof primaire verwarming | Gas |
| Elektrisch keuringsattest | Nee |
Perceel
| Overstromingsgevoelig | Geen |
|---|---|
| P-score | A |
| G-score | A |
| Voorkeurrecht | Nee |
| Bebouwde oppervlakte (m²) | 0 |
| Tuin oppervlakte (m²) | 0 |
| Oppervlakte terras (m²) | 0 |
| Oriëntatie tuin | Oost |
Vergunning
| Vergunning | Vergunning beschikbaar |
|---|---|
| Verkavelingsvergunning | Geen beschikbaar |
Uitrusting
| Investeringspand | Nee |
|---|---|
| Geschikt voor praktijk | Nee |
| Parking | Ja |
| Garage | Nee |
| Thuiskantoor | Nee |
| Kelder | Nee |
| Zolder | Nee |
| Tuin | Ja |
| Terras | Nee |
| Lift | Nee |
| Rioolaansluiting | Ja |
| Gasaansluiting | Ja |
| Wateraansluiting | Ja |
| Elektriciteitsaansluiting | Ja |
| TV aansluiting | Ja |
| Internetaansluiting | Ja |
| Telefoonaansluiting | Ja |
Appartementsblok
| Lift | Nee |
|---|
Een pand van
Groep Aathos
Leer meer over vastgoed

