Nieuw 
Modern en ruim penthouse met 2 terrassen en 2 parkings
 € 299.000  
Een pand van Orange Immo
Overzicht
- 107 m² bewoonbaar
- 2 Slaapkamer(s)
 Overstromingsgevaar gebouw Overstromingsgevaar gebouw
 Overstromingsgevaar perceel Overstromingsgevaar perceel
Beschrijving
Rustig gelegen met een vlotte verbinding naar commercieel centrum van Maasmechelen, de autostrades richting Nl. en Brussel/A’pen alsook het winkelcentrum M2, de Pauwengraaf en Maasmechelen Village.
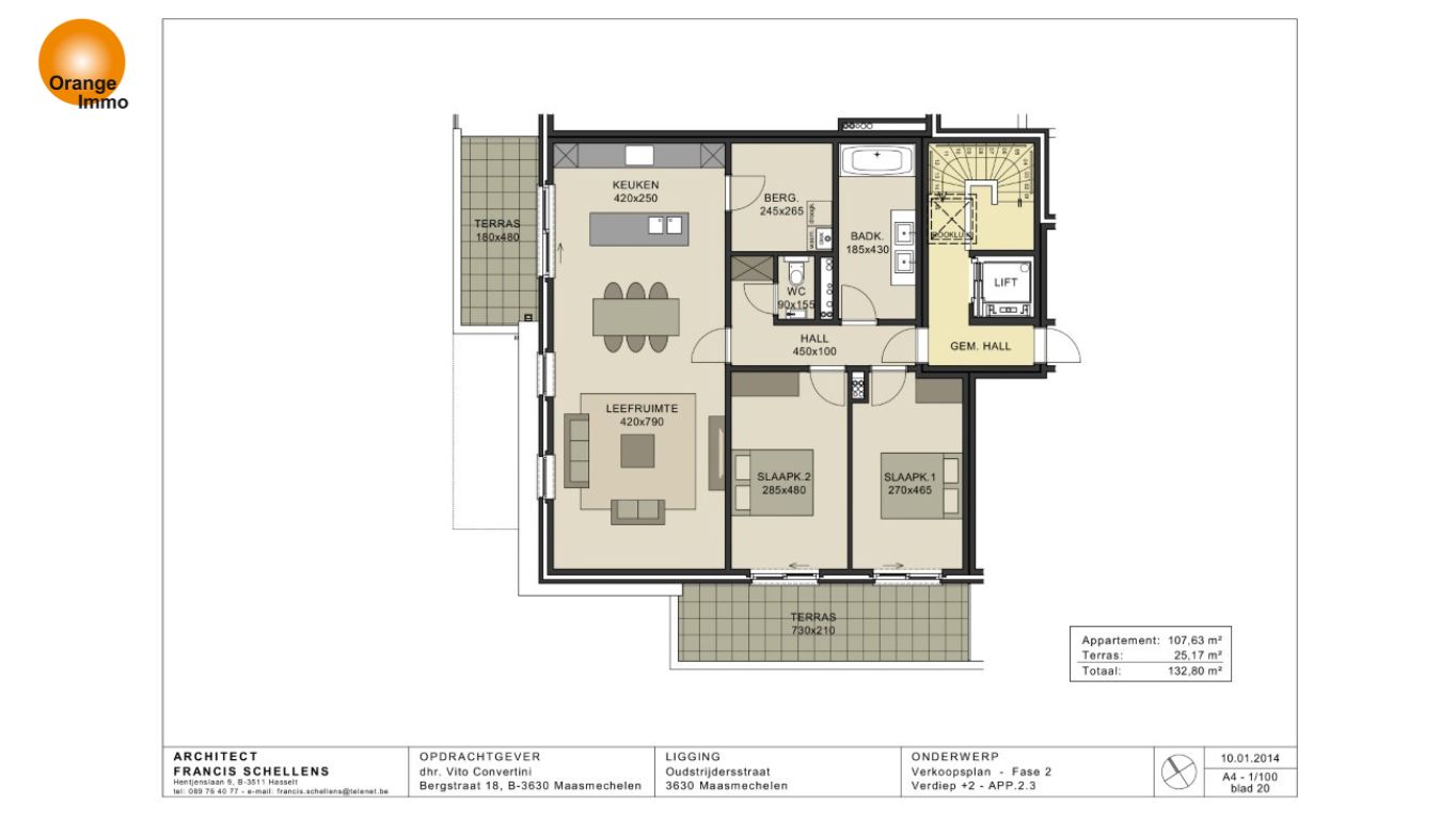
Het penthouse omvat een inkomhal, gastentoilet en berging voorzien van aansluiting voor een wasmachine. Verder bevindt er zich een ruime leefruimte, met een eet-en zithoek en een open, volledig uitgeruste keuken. Er zijn 2 slaapkamers, alsook een badkamer met een douche en een dubbele wastafel. Via de living en slaapkamer toegang tot 2 zonnige terrassen.
Er zijn 2 ondergrondse autostaanplaatsen en een kelderberging.
Het appartement wordt verwarmd met aardgas. Goedgekeurd stroomattest. Lift aanwezig.
Vergunning uitgereikt/Woongebied/Geen rechterlijke herstelmaatregel of bestuurlijke maatregel opgelegd/Geen voorkooprecht/Geen verkavelingsvergunning/P-score D/G-score D.
Het penthouse omvat een inkomhal, gastentoilet en berging voorzien van aansluiting voor een wasmachine. Verder bevindt er zich een ruime leefruimte, met een eet-en zithoek en een open, volledig uitgeruste keuken. Er zijn 2 slaapkamers, alsook een badkamer met een douche en een dubbele wastafel. Via de living en slaapkamer toegang tot 2 zonnige terrassen.
Er zijn 2 ondergrondse autostaanplaatsen en een kelderberging.
Het appartement wordt verwarmd met aardgas. Goedgekeurd stroomattest. Lift aanwezig.
Vergunning uitgereikt/Woongebied/Geen rechterlijke herstelmaatregel of bestuurlijke maatregel opgelegd/Geen voorkooprecht/Geen verkavelingsvergunning/P-score D/G-score D.
Energie
|  | 
- EPC Certificaat: 99
Op de kaart

Financieel
| Prijs | |
|---|---|
| Kadastraal inkomen (niet geïndexeerd) | € 903 | 
Berekening kosten
Je aankoopkosten? Die heb je snel berekent via de knop hieronder.
Bijkomende info
Gebouw
| Bouwjaar | 2014 | 
|---|---|
| Staat | Goed onderhouden | 
| Bewoonbaar (m²) | 107 | 
| Slaapkamers | 2 | 
Faciliteiten
| Primair verwarmingstype | Centrale verwarming | 
|---|
Perceel
| P-score | D | 
|---|---|
| G-score | D | 
Vergunning
| Vergunning | Vergunning beschikbaar | 
|---|---|
| Verkavelingsvergunning | Vergunning beschikbaar | 
Uitrusting
| Tuin | Nee | 
|---|---|
| Terras | Ja | 
| Lift | Ja | 
Een pand van
Orange Immo
 Orange Immo bv 
 ORANGE IMMO is een erkend vastgoedmakelaar, rentmeester en syndicus (beheerder van appartementsgebouwen) sinds 2000.
Ons team van gespecialiseerde medewerkers staat dagdagelijks in voor verkopen, verhuren en beheren van vastgoed (huizen, appartementen, gronden, handelspanden en projecten) met hoofdactiviteit in het Maasland (van Maaseik tot Lanaken en van Maasmechelen tot Genk).
De ORANGE IMMO filosofie is – zoals de kleur het aangeeft – gebaseerd op snel en efficiënt handelen zonder praatjes en omwegen. Geen onzin! Wij zijn daarom ook 7/7 bereikbaar en we gaan er prat op dat we altijd snel op de bal spelen.
Als professionele partner verdienen we het respect en de waardering van onze klanten door precies te doen wat we afgesproken hebben, op een zo kort mogelijke termijn.
Het feit dat we meer dan 20 jaar een toonaangevend kantoor zijn in onze regio, maakt dat we niet alleen veel ervaring hebben opgebouwd, maar ook dat we permanent vragen krijgen van mensen die willen kopen, huren, investeren, … zodat we meteen onze nieuwe opdrachten kunnen aankaarten bij deze contacten.
Onze ervaring als bouwheer maakt bovendien dat we ook als rentmeester en syndicus zeer snel kunnen inschatten waar en wat het bouwkundig probleem is, om onmiddellijk de nodige interventies te doen en de schade te beperken.
Wij zijn niet van veel woorden. Contacteer ons liever voor een kennismaking aan de hand van een concrete vraag. Dat zal meteen aangeven hoe we zijn en wat we voor jou kunnen doen. 
Leer meer over vastgoed
 Nieuw 
 22 October 2025 
Hoeveel kan ik lenen om een huis te kopen?
 11 June 2025 
Huis kopen met bouwovertreding? Dit moet je weten
 11 May 2025 
Renoveren? Vraag je Mijn VerbouwPremie aan
 22 April 2025