Bouwgrond voor open bebouwing op 8a 38ca
€ 139.000
Een pand van Bosman Vastgoed
Jouw zoektocht
Overzicht
- 838 m² grond
Beschrijving
De bouwgrond bevindt zich op wandel- en fietsafstand van het centrum met haar scholen, winkels, horeca en openbaar vervoer. Op 1 minuut wandelen ligt de Kepkensberg, ideaal voor natuurliefhebbers. Er is een goede verbinding met de omliggende gemeenten en de E313.
De stedenbouwkundige voorschriften voor het perceel zijn als volgt:
Zowel een zadeldak alsook een plat dak zijn toegelaten op deze locatie, met een kroonlijsthoogte van maximum 7m en een maximum van 2 bouwlagen.
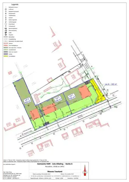
De maximale bouwzone is weergegeven op het verkavelingsplan (lot 2). Zo dient de voorgevelbreedte maximaal 15 meter te bedragen en de diepte van het gebouw 9 meter. De 3 m brede zijtuinstrook is een bouwvrije strook, een carport is hier wel toegelaten mits dat het een 3-zijdig open concept heeft.
Zonnepanelen of zonneboilers die geïntegreerd zijn in het hellend dakvlak worden hier ook toegelaten.
Vrijstaande bijgebouwen kunnen op het perceel geplaatst worden met een maximale oppervlakte van 40 m².
Spreekt dit mooi bouwperceel jullie aan? Contacteer ons via info@bosmanvastgoed.be voor meer info. Wij helpen jullie graag verder! Meer details omtrent de stedenbouwkundige voorschriften zijn beschikbaar op kantoor.
Bevindt zich niet in een afgebakende oeverzone, signaalgebied of afgebakend overstromingsgebied (P-score B).
Centraal gelegen perceel voor open bebouwing op 8a 38ca, te Staatsbaan in Ham.
De bouwgrond bevindt zich op wandel- en fietsafstand van het centrum met haar scholen, winkels, horeca en openbaar vervoer. Op 1 minuut wandelen ligt de Kepkensberg, ideaal voor natuurliefhebbers. Er is een goede verbinding met de omliggende gemeenten en de E313.
De stedenbouwkundige voorschriften voor het perceel zijn als volgt:
Zowel een zadeldak alsook een plat dak zijn toegelaten op deze locatie, met een kroonlijsthoogte van maximum 7m en een maximum van 2 bouwlagen.
De maximale bouwzone is weergegeven op het verkavelingsplan (lot 2). Zo dient de voorgevelbreedte maximaal 15 meter te bedragen en de diepte van het gebouw 9 meter. De 3 m brede zijtuinstrook is een bouwvrije strook, een carport is hier wel toegelaten mits dat het een 3-zijdig open concept heeft.
Zonnepanelen of zonneboilers die geïntegreerd zijn in het hellend dakvlak worden hier ook toegelaten.
Vrijstaande bijgebouwen kunnen op het perceel geplaatst worden met een maximale oppervlakte van 40 m².
Spreekt dit mooi bouwperceel jullie aan? Contacteer ons via info@bosmanvastgoed.be voor meer info. Wij helpen jullie graag verder! Meer details omtrent de stedenbouwkundige voorschriften zijn beschikbaar op kantoor.
Bevindt zich niet in een afgebakende oeverzone, signaalgebied of afgebakend overstromingsgebied (P-score B).
Energie
- E-peil: E0
- Beglazing: Onbekend
Op de kaart

Financieel
| Prijs |
|---|
Berekening kosten
Je aankoopkosten? Die heb je snel berekend via de knop hieronder.
Bijkomende info
Gebouw
| Bouwcertificaat | Nee |
|---|
Perceel
| Diepte (m) | 25 |
|---|---|
| Overstromingsgevoelig | Geen |
| P-score | B |
| Totale oppervlakte (m²) | 838 |
| Oriëntatie tuin | Noordwest |
Vergunning
| Verkavelingsvergunning | Vergunning beschikbaar |
|---|
Uitrusting
| Investeringspand | Nee |
|---|---|
| Rioolaansluiting | Nee |
| Gasaansluiting | Ja |
| Wateraansluiting | Ja |
| Elektriciteitsaansluiting | Ja |
| Internetaansluiting | Ja |
| Telefoonaansluiting | Ja |