Nieuw
TESSENDERLO - Hoeve (HOB) op 84a
€ 445.000
3980 Tessenderlo
Een pand van Immo De Ras
Overzicht
- 254 m² bewoonbaar
- 8430 m² grond
- 3 Slaapkamer(s)
- 1 Badkamer(s)
- 2 Toilet(ten)
- 1 Tuin
- 1 Garage(s)
Overstromingsgevaar perceel
Beschrijving
BEZOEKMOMENT ZONDAG 29/03 (enkel op afspraak!)
TESSENDERLO-HAM - Deze instapklare halfopen bebouwing is achterin gelegen op een totale oppervlakte van 84a30ca.
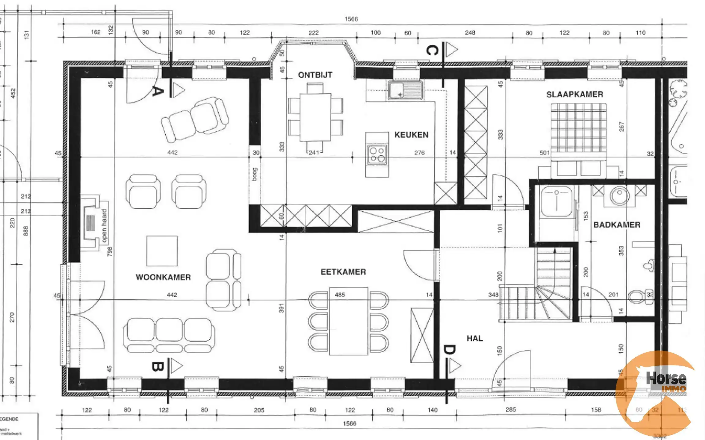
Er werden heel wat authentieke elementen in deze hoeve bewaard en ze omvat op het gelijkvloers een ruime inkomhall, zeer grote leefruimte met achterin een ingerichte keuken met eetplaats. Verder is er nog een bureau (in te richten als 3e slaapkamer) alsook een badkamer op het gelijkvloers.
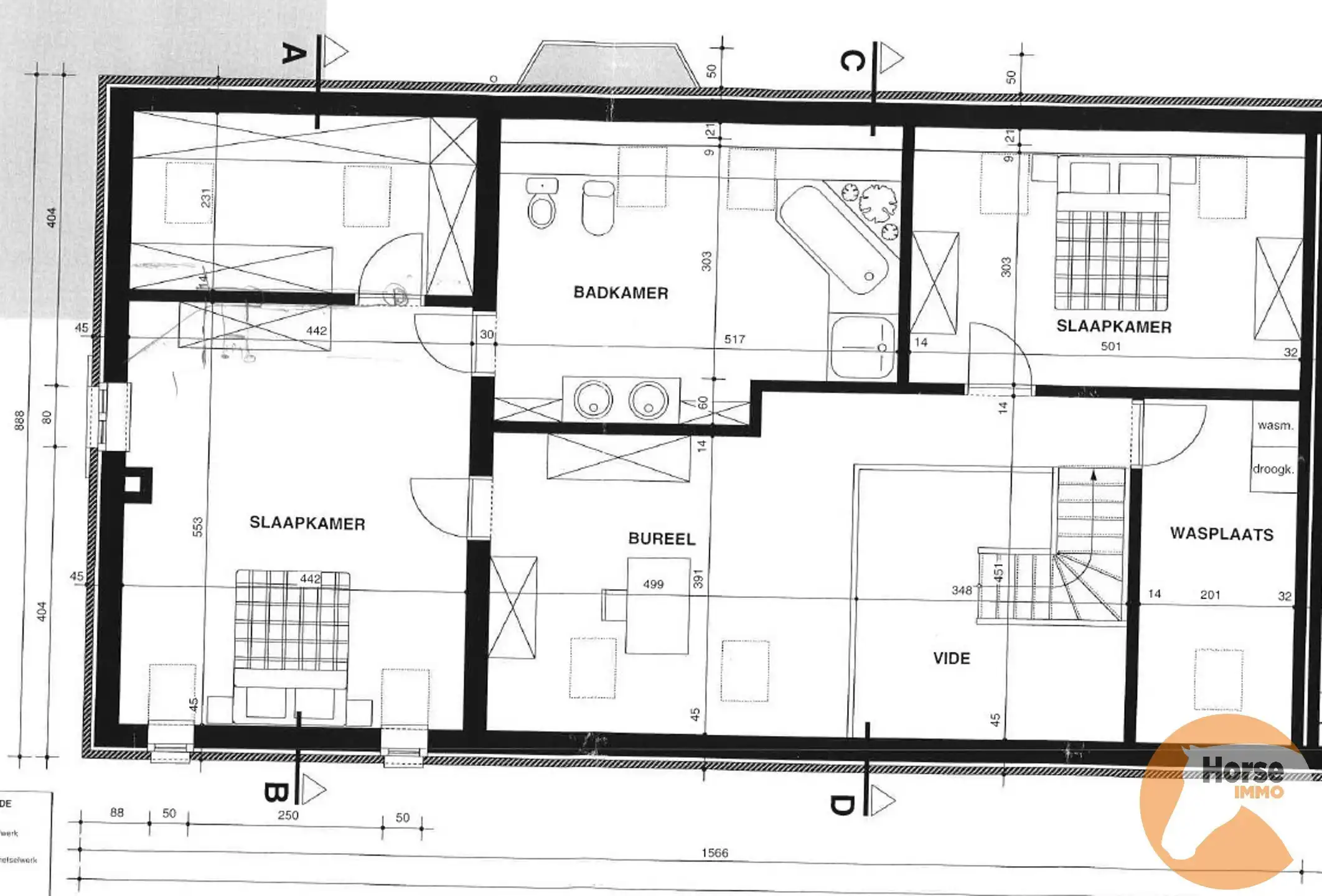
Op de eerste verdieping treffen we een mooie ruime overloop, een kinderkamer en een zeer ruime master met dressing en toegang tot een nog in te richten 2e badkamer.
De woning heeft vloerverwarming, en een gascondensatieketel. Ze kan hierdoor alsook door de goede isolatie een EPC B attest voorleggen.
Het schrijnwerk dient op termijn vervangen te worden (zie visualisatie).
Buiten treffen we een ruime tuin met zonnig terras en aanpalend een weiland met schuilstallen.
Er is ook een bijgebouw met voldoende bergplaats en garage.
Wenst u deze woning te bezoeken ? Neem contact voor een afspraak op 053/60.65.66.
TESSENDERLO-HAM - Deze instapklare halfopen bebouwing is achterin gelegen op een totale oppervlakte van 84a30ca.
Er werden heel wat authentieke elementen in deze hoeve bewaard en ze omvat op het gelijkvloers een ruime inkomhall, zeer grote leefruimte met achterin een ingerichte keuken met eetplaats. Verder is er nog een bureau (in te richten als 3e slaapkamer) alsook een badkamer op het gelijkvloers.
Op de eerste verdieping treffen we een mooie ruime overloop, een kinderkamer en een zeer ruime master met dressing en toegang tot een nog in te richten 2e badkamer.
De woning heeft vloerverwarming, en een gascondensatieketel. Ze kan hierdoor alsook door de goede isolatie een EPC B attest voorleggen.
Het schrijnwerk dient op termijn vervangen te worden (zie visualisatie).
Buiten treffen we een ruime tuin met zonnig terras en aanpalend een weiland met schuilstallen.
Er is ook een bijgebouw met voldoende bergplaats en garage.
Wenst u deze woning te bezoeken ? Neem contact voor een afspraak op 053/60.65.66.
Energie
![]() |
- EPC Certificaat: 20260313-0003823653-RES-1
- Energieverbruik: 155 kWh/m²/jaar
Downloads
- Kadastraal plan.pdf (pdf)
- EK (conform).pdf (pdf)
- Gewestinfo.pdf (pdf)
- OnroerendErfgoed.pdf (pdf)
- Overstromingsgevaar.pdf (pdf)
- RechtVanVoorkoop.pdf (pdf)
Financieel
| Prijs |
|---|
Berekening kosten
Je aankoopkosten? Die heb je snel berekend via de knop hieronder.
Bijkomende info
Gebouw
| Bouwjaar | 1918 |
|---|---|
| Staat | Goed onderhouden |
| Bewoonbaar (m²) | 254 |
| Gevels | 3 |
| Gevelbreedte | 15 |
| Zolder | 2 |
| Badkamers | 1 |
| Slaapkamers | 3 |
| Verdiepingen | 1 |
| Garages | 1 |
| Parkeerplaatsen | 2 |
| Doucheruimtes | 1 |
| Toiletten | 2 |
Faciliteiten
| Type vloer | |
|---|---|
| Keuken uitrusting | Luxueus uitgerust |
| Elektrisch keuringsattest | Ja |
Perceel
| Overstromingsgevoelig | Geen |
|---|---|
| P-score | D |
| G-score | A |
| Voorkeurrecht | Ja |
| Totale oppervlakte (m²) | 8430 |
| Tuin oppervlakte (m²) | 0 |
Vergunning
| Vergunning | Vergunning beschikbaar |
|---|---|
| Verkavelingsvergunning | Geen beschikbaar |
| Bouwovertreding | Geen |
| Bouwovertreding dagvaardiging | Geen |
| Type gebied | Landelijk |
Uitrusting
| Geschikt voor rolstoelgebruikers | Nee |
|---|---|
| Parking | Ja |
| Garage | Ja |
| Thuiskantoor | Ja |
| Kelder | Nee |
| Tuin | Ja |
| Terras | Ja |
| Lift | Nee |
| Elektriciteitsaansluiting | Ja |
| Telefoonaansluiting | Ja |
| Zonnepanelen | Nee |
| Zwembad | Nee |
| Zwemvijver | Nee |
| Videofoon | Nee |
| Regenwaterput | Ja |
Een pand van
Immo De Ras
IMMO DE RAS
IMMO DE RAS, jouw vastgoedexpert bij het vinden van een nieuwe bestemming voor uw vastgoed. Verkoop en verhuur van huizen, appartementen en gronden. Wij helpen u graag verder met ons groot aanbod te koop in regio Lede, Erpe-Mere, Sint-Lievens-Houtem, Herzele, Zottegem, Wichelen, Wetteren, ... Services: gratis schatting, kopen en verkopen, projectontwikkeling, certificaten en keuringen.
# 7592518
Leer meer over vastgoed
01 March 2026
Wanneer heb ik een bouwvergunning of omgevingsvergunning nodig?
17 February 2026
Hoe breng ik een bod uit op een woning?
24 November 2025
Uitgezocht voor jouw gemeente: Hoeveel stijgt de waarde van je woning door een renovatie?
22 October 2025
