PRACHTIG GERENOVEERDE WONING MET 3 SLAAPKAMERS UITERST RUSTIG GELEGEN IN DE NABIJHEID VAN TESSENDERLO CENTRUM
€ 449.000
Een pand van Het Vastgoedkantoor
Overzicht
- 184 m² bewoonbaar
- 424 m² grond
- 3 Slaapkamer(s)
- 1 Badkamer(s)
- 1 Garage(s)
Beschrijving
Prachtig gerenoveerde HOB met 3 slaapkamers uiterst rustig gelegen op een zonnig perceel van 4a24ca in de nabijheid van Tessenderlo centrum.
Belangrijkste troeven:
- Rustige ligging in de nabijheid van scholen, winkels , eetgelegenheden en het centrum van Tessenderlo.
- Uiterst kwalitatief afgewerkt
- 3 slaapkamers
- Prachtig aangelegde tuin
- Verwarmd zwembad van 9 m x 3,6 m met bijhorende poolhouse
- Zonnepanelen 20 stuks (7500 kWh) + thuisbatterij 10 kWh
- Carport
- Inpandige garage
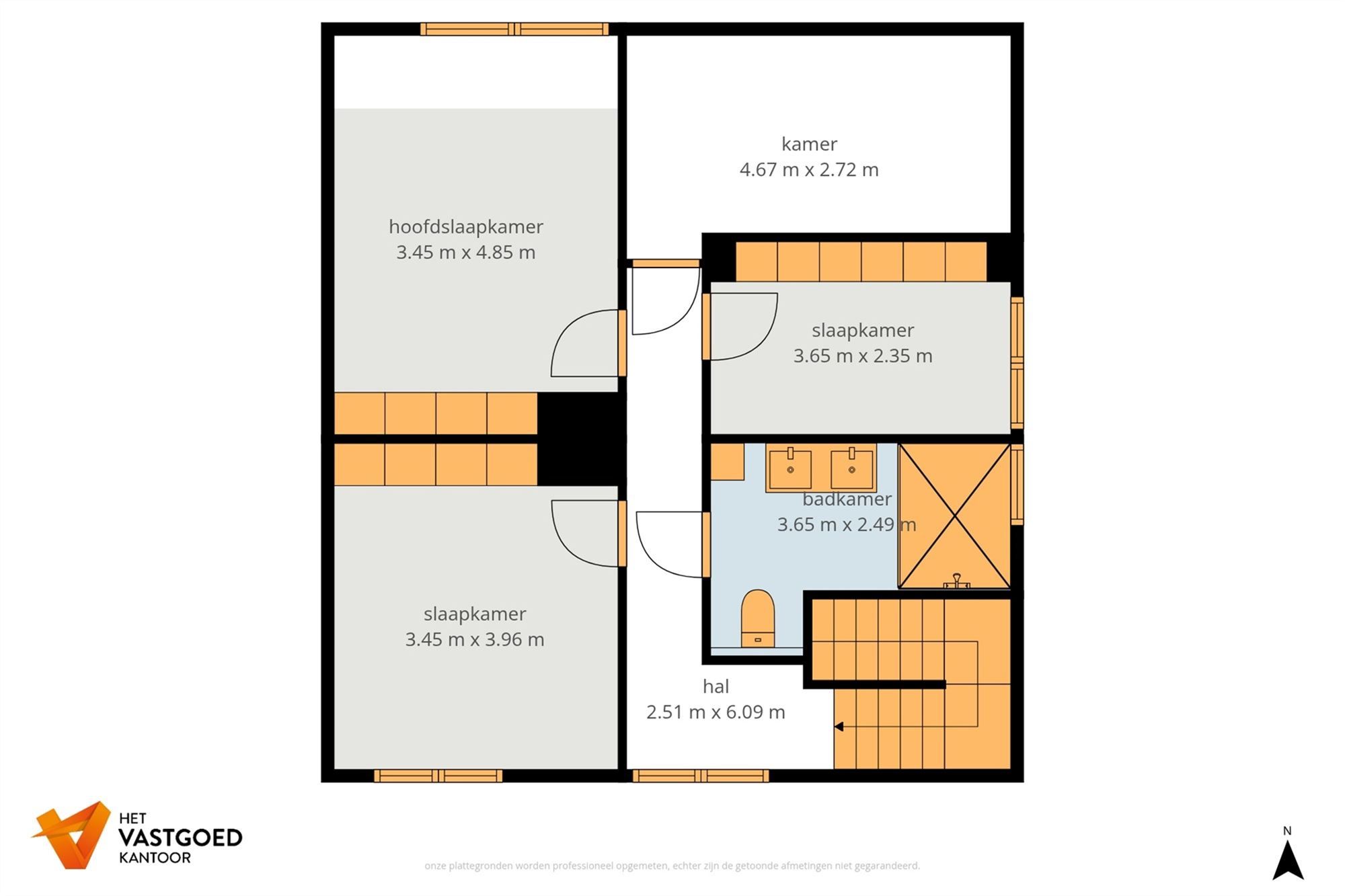
Bekijk zeker ook de foto's en de grondplannen met de afmetingen. Zo krijgt u van thuis uit al een perfect beeld van wat deze woning te bieden heeft!
Wenst u meer info of een vrijblijvende bezichtiging, contacteer dan ons kantoor op het nummer 011 85 15 15 en wij helpen u graag verder.
Energie
![]() |
- EPC Certificaat: 20250930-0003698278-RES-1
- Energieverbruik: 293 kWh/m²/jaar
- E-peil: E0
- Verwarming: Gas
- Beglazing: Standaard dubbel
Op de kaart

Financieel
Prijs | |
---|---|
Kadastraal inkomen (niet geïndexeerd) | € 738 |
Kadastraal inkomen (geïndexeerd) | € 0 |
Berekening kosten
Je aankoopkosten? Die heb je snel berekent via de knop hieronder.
Bijkomende info
Gebouw
Bouwjaar | 2006 |
---|---|
Staat | Goed onderhouden |
Bouwcertificaat | Nee |
Bewoonbaar (m²) | 184 |
Verdieping | 0 |
Badkamers | 1 |
Slaapkamers | 3 |
Verdiepingen | 0 |
Garages | 1 |
Parkeerplaatsen | 1 |
Doucheruimtes | 0 |
Toiletten | 0 |
Faciliteiten
Keuken uitrusting | Luxueus uitgerust |
---|---|
Materiaal ramenomlijstingen | PVC |
Beglazing | Standaard dubbel |
Brandstof primaire verwarming | Gas |
Elektrisch keuringsattest | Nee |
Perceel
Overstromingsgevoelig | Geen |
---|---|
P-score | B |
G-score | A |
Voorkeurrecht | Nee |
Totale oppervlakte (m²) | 424 |
Bebouwde oppervlakte (m²) | 0 |
Tuin oppervlakte (m²) | 0 |
Oppervlakte terras (m²) | 0 |
Vergunning
Vergunning | Vergunning beschikbaar |
---|
Uitrusting
Investeringspand | Nee |
---|---|
Geschikt voor praktijk | Nee |
Parking | Ja |
Garage | Ja |
Thuiskantoor | Nee |
Kelder | Nee |
Zolder | Ja |
Tuin | Nee |
Terras | Nee |
Lift | Nee |
Rioolaansluiting | Nee |
Gasaansluiting | Nee |
Wateraansluiting | Nee |
Elektriciteitsaansluiting | Nee |
TV aansluiting | Nee |
Internetaansluiting | Nee |
Telefoonaansluiting | Nee |