Prachtige nieuwbouwwoningen aan de 'Blauwe Sluis' te Bredene!
€ 392.500
Een pand van Agence Eeckhout
Favoriet
Jouw zoektocht
Jouw scoretabel voor dit pand
Aan het laden...
Jouw geplande bezichtigingen
Aan het laden...
Beschrijving
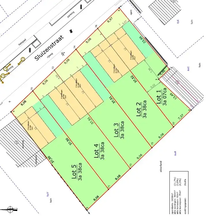
Dit project bestaat uit 5 halfopen woningen met diepe, zonnige tuinen met mooie verzichten.
Iedere woning beschikt over 3 slaapkamers en een ruime zolder, die mogelijks afgewerkt kan worden.
De ligging is werkelijk ideaal: het centrum van Bredene-Dorp ligt nog geen km verwijderd en bovendien is er een vlotte verbinding naar Oostende en naar Brugge.
De koper heeft nog volledige inspraak in de afwerking!
Iedere woning beschikt over 3 slaapkamers en een ruime zolder, die mogelijks afgewerkt kan worden.
De ligging is werkelijk ideaal: het centrum van Bredene-Dorp ligt nog geen km verwijderd en bovendien is er een vlotte verbinding naar Oostende en naar Brugge.
De koper heeft nog volledige inspraak in de afwerking!
Energie
- Verwarming: Geen
- Beglazing: Onbekend
Op de kaart

Financieel
| Prijs | |
|---|---|
| Kadastraal inkomen (niet geïndexeerd) | € 0 |
| Kadastraal inkomen (geïndexeerd) | € 0 |
Bijkomende info
Gebouw
| Is beschermd | Nee |
|---|---|
| Bewoonbaar (m²) | 338 |
Faciliteiten
| Luiken | Nee |
|---|---|
| Primair verwarmingstype | Geen verwarming |
| Brandstof primaire verwarming | Geen |
| Warm water type | Geen verwarming |
Perceel
| Overstromingsgevoelig | Geen |
|---|---|
| P-score | D |
| G-score | D |
| Voorkeurrecht | Nee |
Vergunning
| Verkavelingsvergunning | Vergunning beschikbaar |
|---|---|
| Bouwovertreding dagvaardiging | Geen |
| Type gebied | Stedelijk |
Uitrusting
| Meerdere eigenaars | Nee |
|---|---|
| Geschikt voor rolstoelgebruikers | Nee |
| Geschikt voor praktijk | Nee |
| Volledig onderkelderd | Nee |
| Parking | Nee |
| Garage | Nee |
| Thuiskantoor | Nee |
| Kelder | Nee |
| Zolder | Nee |
| Opslagruimte | Nee |
| Tuin | Nee |
| Terras | Nee |
| Lift | Nee |
| Rioolaansluiting | Nee |
| Gasaansluiting | Nee |
| Wateraansluiting | Nee |
| Elektriciteitsaansluiting | Nee |
| TV aansluiting | Nee |
| Internetaansluiting | Nee |
| Zonnepanelen | Nee |
| Zonneboiler | Nee |
| Alarm | Nee |
| Zwembad | Nee |
| Jacuzzi | Nee |
| Toonzaal | Nee |
| Ventilatie | Nee |
Appartementsblok
| Aantal wooneenheden | 5 |
|---|---|
| Lift | Nee |
| Intercom | Nee |
Een pand van
Agence Eeckhout
Een zee aan vastgoedkennis!
Vastgoed verkopen (of kopen) is een belangrijke en emotionele stap in het leven. Daar zijn wij ons als specialist elke dag van bewust. Dat is nog maar één van de redenen waarom we uw dossier op een heel persoonlijke manier behandelen, en dat al sinds 1993. In zee gaan met Agence Eeckhout om uw vastgoed te verkopen betekent professionele begeleiding, transparantie en afhandeling met voldoening. Eén aanspreekpunt begeleidt u op een gedegen manier doorheen alle fases van het project. Onze agence in Oostende ligt in het hart van de bruisende kuststad. Daarnaast openden we een nieuw kantoor in het rustiger gelegen Bredene. Onze kantoren vormen een uitstekende uitvalsbasis voor wie vastgoed wenst te kopen in Oostende, Bredene en zijn ruime omgeving. Onze uitgestrekte etalages vormen de ideale start voor de verkoop van uw eigendom.
SLUI
Leer meer over vastgoed
23 March 2026
Op Spotto zoeken als een pro: 10 slimme tips
21 March 2026
Hoeveel kan ik lenen om een huis te kopen?
01 March 2026
Wanneer heb ik een bouwvergunning of omgevingsvergunning nodig?
17 February 2026