Jouw zoektocht
Jouw scoretabel voor dit pand
Aan het laden...
Jouw geplande bezichtigingen
Aan het laden...
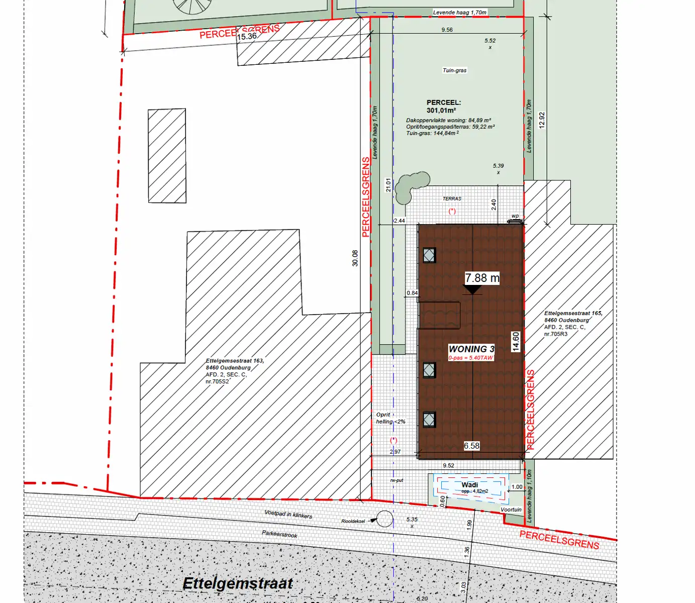
Overzicht
- 144.55 m² bewoonbaar
- 301 m² grond
- 3 Slaapkamer(s)
- 1 Badkamer(s)
- 2 Toilet(ten)
- 1 Tuin
Beschrijving
Nieuwbouwwoning met ruime leefruimte en open keuken in de Vrijboomstraat te Oudenburg
In een rustige en aangename woonomgeving in de Vrijboomstraat te Oudenburg bevindt zich deze energiezuinige nieuwbouwwoning die uitblinkt in ruimte, licht en een doordachte indeling. Met een bewoonbare oppervlakte van 145 m² is dit de ideale gezinswoning.
Op het gelijkvloers wordt u verwelkomd in een ruime inkomhal met gastentoilet. Aansluitend bevindt zich een praktische berging/wasruimte, met rechtstreekse toegang tot de keuken. De woning gaat verder naar de leefruimte van 39 m², waar zithoek en eetplaats naadloos in elkaar overvloeien. Grote raampartijen zorgen voor een aangename lichtinval en een open gevoel. De moderne keuken biedt voldoende werk- en opbergruimte. Deze is volledig aan te passen naar uw eigen smaak en wensen.
De eerste verdieping bestaat uit drie volwaardige slaapkamers, ideaal voor een gezin, thuiswerk of hobbyruimte. De badkamer is ruim en biedt plaats voor een bad, douche en dubbele wastafel Deze is ook volledig aan te passen aan uw smaak. Daarnaast is er een afzonderlijk toilet op de verdieping.
Deze woning wordt gebouwd met oog voor energiezuinigheid, duurzaamheid en woonkwaliteit, en voldoet aan de huidige normen op vlak van isolatie en comfort. Dankzij de logische indeling en rechte ruimtes is de woning bovendien eenvoudig en flexibel in te richten.
Troeven op een rij:
Nieuwbouwwoning
Ruime leefruimte met veel lichtinval
3 volwaardige slaapkamers
Praktische berging en aparte toiletten
Rustige ligging in Oudenburg
Bent u op zoek naar een hedendaagse woning met ruimte en comfort, op een vlot bereikbare locatie? Contacteer ons dan snel voor deze woning!
In een rustige en aangename woonomgeving in de Vrijboomstraat te Oudenburg bevindt zich deze energiezuinige nieuwbouwwoning die uitblinkt in ruimte, licht en een doordachte indeling. Met een bewoonbare oppervlakte van 145 m² is dit de ideale gezinswoning.
Op het gelijkvloers wordt u verwelkomd in een ruime inkomhal met gastentoilet. Aansluitend bevindt zich een praktische berging/wasruimte, met rechtstreekse toegang tot de keuken. De woning gaat verder naar de leefruimte van 39 m², waar zithoek en eetplaats naadloos in elkaar overvloeien. Grote raampartijen zorgen voor een aangename lichtinval en een open gevoel. De moderne keuken biedt voldoende werk- en opbergruimte. Deze is volledig aan te passen naar uw eigen smaak en wensen.
De eerste verdieping bestaat uit drie volwaardige slaapkamers, ideaal voor een gezin, thuiswerk of hobbyruimte. De badkamer is ruim en biedt plaats voor een bad, douche en dubbele wastafel Deze is ook volledig aan te passen aan uw smaak. Daarnaast is er een afzonderlijk toilet op de verdieping.
Deze woning wordt gebouwd met oog voor energiezuinigheid, duurzaamheid en woonkwaliteit, en voldoet aan de huidige normen op vlak van isolatie en comfort. Dankzij de logische indeling en rechte ruimtes is de woning bovendien eenvoudig en flexibel in te richten.
Troeven op een rij:
Nieuwbouwwoning
Ruime leefruimte met veel lichtinval
3 volwaardige slaapkamers
Praktische berging en aparte toiletten
Rustige ligging in Oudenburg
Bent u op zoek naar een hedendaagse woning met ruimte en comfort, op een vlot bereikbare locatie? Contacteer ons dan snel voor deze woning!
Energie
Downloads
Financieel
| Prijs |
|---|
Bijkomende info
Gebouw
| Bouwjaar | 2026 |
|---|---|
| Bewoonbaar (m²) | 144.55 |
| Gevels | 3 |
| Badkamers | 1 |
| Slaapkamers | 3 |
| Parkeerplaatsen | 0 |
| Doucheruimtes | 1 |
| Toiletten | 2 |
Faciliteiten
| Type vloer | |
|---|---|
| Keuken uitrusting | Luxueus uitgerust |
| Elektrisch keuringsattest | Ja |
Perceel
| Voorkeurrecht | Nee |
|---|---|
| Totale oppervlakte (m²) | 301 |
| Tuin oppervlakte (m²) | 144 |
Vergunning
| Vergunning | Vergunning beschikbaar |
|---|---|
| Verkavelingsvergunning | Geen beschikbaar |
| Bouwovertreding | Geen |
| Bouwovertreding dagvaardiging | Geen |
Uitrusting
| Geschikt voor rolstoelgebruikers | Ja |
|---|---|
| Parking | Nee |
| Garage | Nee |
| Tuin | Ja |
| Terras | Ja |
| Wateraansluiting | Ja |
| Elektriciteitsaansluiting | Ja |
| TV aansluiting | Ja |
| Telefoonaansluiting | Ja |
| Regenwaterput | Ja |
Een pand van
Immoseed
Immoseed - Waar 'Uw Vastgoed' start
Vastgoedkantoor waar 'Uw Vastgoed' centraal en vooral in de kijker wordt gezet.
Niet het zoveelste pand in een eindeloze rij.
Leer meer over vastgoed
24 April 2026
Duurzaam gelegen woning? Check je Mobiscore
23 March 2026
Op Spotto zoeken als een pro: 10 slimme tips
21 March 2026
Hoeveel kan ik lenen om een huis te kopen?
01 March 2026