> Te koop > Deerlijk > Huis > Nieuw te bouwen halfopen woning te Deerlijk.

Nieuw te bouwen halfopen woning te Deerlijk.

€ 489.023

8540 Deerlijk

Een pand van Your Home

Volledige aanbod

Overzicht


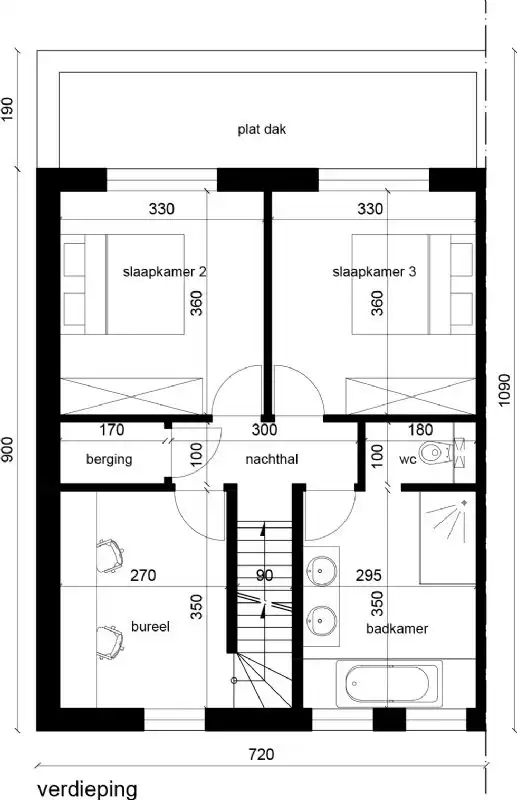
  • 3 Slaapkamer(s)
  • 1 Badkamer(s)
  • 2 Toilet(ten)
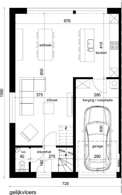
  • 1 Living(s)
  • 1 Garage(s)

Beschrijving


Een voorbeeldwoning dat volledig aan te passen is naar wens én budget? Dat is wat wij bij Your Home doen. Met onze kennis van de nieuwste, duurzame materialen leiden we jou naar optimaal wooncomfort. Zo bouwen wij samen aan jouw thuis.

Zie je jezelf al staan voor jouw nieuwe woning of wens je meer informatie? Neem dan contact met ons op. Wij helpen je graag verder.

Mail naar aanvraag@yourhome.be of bel 056 755 788

Tip: Bezoek onze Kijkwoning na afspraak (zie www.yourhome.be/kijkwoning)

Referentie: YH_LA_NTB_20250601

Energie


Financieel


Prijs € 489.023

Bijkomende info


Gebouw
Badkamers 1
Slaapkamers 3
Garages 1
Keukens 1
Leefruimtes 1
Toiletten 2

Een pand van


Your Home
Logo van makelaar: Your Home
Your Home - Samen bouwen
Your Home is een persoonlijke bouwpartner voor zij die dromen van een nieuwbouwwoning of totaalrenovatie. Wij vertalen jouw bouwdroom in een woning die perfect bij jou past. Van bouwen op maat tot totaalrenovatie, het kan allemaal!
Logo van makelaar: Your Home
1092684
Nieuw te bouwen halfopen woning te Deerlijk. foto {{pictureIndex}}

Nieuw te bouwen halfopen woning te Deerlijk.

€ 489.023

8540 Deerlijk

Bezoek het pand

Vul jouw contactgegevens hieronder in en de makelaar contacteert je.

Leer meer over vastgoed

11 June 2025
Huis kopen met bouwovertreding? Dit moet je weten
11 May 2025
Renoveren? Vraag je Mijn VerbouwPremie aan
22 April 2025
Je allereerste renovatieproject selecteren én budgetteren: met de praktische hulp van Spotto
17 February 2025
Levenslang wonen: slaapkamer inrichten voor nieuwe invulling