> Te koop > Deerlijk > Huis > Nieuw te bouwen alleenstaande woning te Deerlijk.

Nieuw te bouwen alleenstaande woning te Deerlijk.

€ 520.944

8540 Deerlijk

Een pand van Your Home

Volledige aanbod

Overzicht


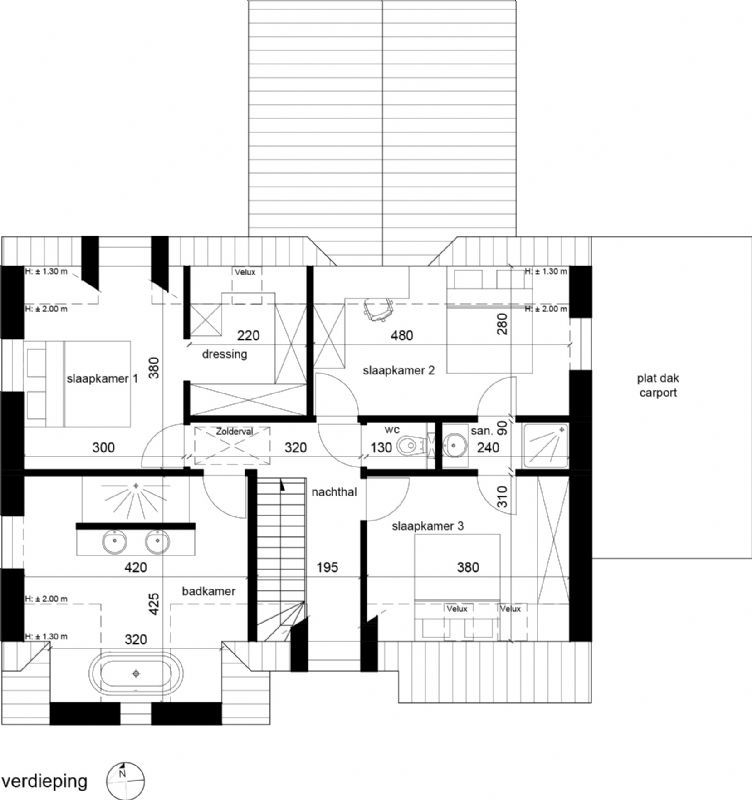
  • 3 Slaapkamer(s)
  • 1 Badkamer(s)
  • 2 Toilet(ten)
  • 1 Living(s)

Beschrijving


Wist je dat wij je richting geven met onze voorbeeldwoningen, maar dat je alles nog kan veranderen naargelang stijl en eigen wens? Naast de esthetische, architecturale kant geven wij je ook kennis mee van het hedendaagse wooncomfort. Want Your Home, dat is samen bouwen.

Wil je graag alles eens persoonlijk overlopen? Neem gerust eens contact op met ons. Wij helpen je graag verder.

Mail naar aanvraag@yourhome.be of bel 056 755 788

Tip: Bezoek onze Kijkwoning na afspraak (zie www.yourhome.be/kijkwoning).

Referentie: YH_JE_NTB_20241024

Energie


Financieel


Prijs € 520.944

Bijkomende info


Gebouw
Badkamers 1
Slaapkamers 3
Keukens 1
Leefruimtes 1
Toiletten 2

Een pand van


Your Home
Logo van makelaar: Your Home
Your Home - Samen bouwen
Your Home is een persoonlijke bouwpartner voor zij die dromen van een nieuwbouwwoning of totaalrenovatie. Wij vertalen jouw bouwdroom in een woning die perfect bij jou past. Van bouwen op maat tot totaalrenovatie, het kan allemaal!
Logo van makelaar: Your Home
1081399
Nieuw te bouwen alleenstaande woning te Deerlijk. foto {{pictureIndex}}

Nieuw te bouwen alleenstaande woning te Deerlijk.

€ 520.944

8540 Deerlijk

Bezoek het pand

Vul jouw contactgegevens hieronder in en de makelaar contacteert je.

Leer meer over vastgoed

Nieuw
01 March 2026
Wanneer heb ik een bouwvergunning of omgevingsvergunning nodig?
17 February 2026
Hoe breng ik een bod uit op een woning?
24 November 2025
Uitgezocht voor jouw gemeente: Hoeveel stijgt de waarde van je woning door een renovatie?
22 October 2025
Hoeveel kan ik lenen om een huis te kopen?