Energiezuinige woning te koop te Anzegem
€ 440.500
Een pand van Maes Concept Immo
Favoriet
Jouw zoektocht
Jouw scoretabel voor dit pand
Aan het laden...
Jouw geplande bezichtigingen
Aan het laden...
Overzicht
- 229 m² bewoonbaar
- 300 m² grond
- 3 Slaapkamer(s)
- 1 Badkamer(s)
- 2 Toilet(ten)
- 1 Tuin
Beschrijving
Maak kennis met uw droomwoning, waar comfort en natuur samenkomen! Deze schitterende halfopen nieuwbouwwoning in Anzegem beschikt over 3 ruime slaapkamers en een afgewerkte badkamer.
Gelegen op "den heirweg" geniet u van de ideale mix van rust en nabijheid van alle nodige voorzieningen.
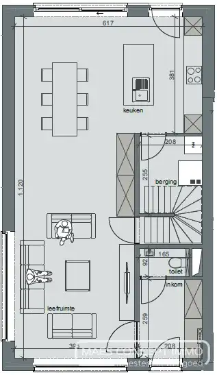
De indeling van de woning is als volgt:
- Gelijkvloers: inkomhal, apart toilet, ruime living met aansluitende open keuken, grote berging
- 1e verdieping: 3 ruime slaapkamers, apart toilet, badkamer met bad, douche en lavabomeubel
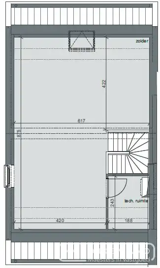
- 2e verdieping: vast trap naar boven, nutsvoorzieningen en chape voorzien
Troeven:
- Ruime woning met een bewoonbare oppervlakte van 191 m²
- BEN-woning met E-peil van 20 of lager! Verwarming met lucht-water warmtepomp, ventilatiesysteem D
- Regenput (7 500l)
- 3 slaapkamers en badkamer
- Zonnepanelen
- Vloerverwarming
- Kies zelf je vloer, keuken, sanitair, ... (inbegrepen in de prijs)
- Tuin wordt ingezaaid, voorzien van terras en afsluiting
- Carport
- Garagebox bij te kopen
- Toegang tot gemeenschappelijke parkzone van leiedal achter het project
- 5 jaar lang 50 % korting op onroerende voorheffing -
Prijs
€ 440 500 + kosten (12% registratierechten op grond - 6% btw op constructie)
Mis deze unieke kans niet en neem vandaag nog contact met ons op voor meer informatie.
Mail: Martijn@maesconceptimmo.be
tel: 0470/62.95.68
Energie
- E-peil: E0
- Beglazing: Onbekend
Op de kaart

Financieel
| Prijs |
|---|
Bijkomende info
Gebouw
| Bouwjaar | 2026 |
|---|---|
| Bewoonbaar (m²) | 229 |
| Badkamers | 1 |
| Slaapkamers | 3 |
| Verdiepingen | 0 |
| Garages | 0 |
| Parkeerplaatsen | 0 |
| Toiletten | 2 |
Faciliteiten
| Septische tank | Nee |
|---|
Perceel
| Overstromingsgevoelig | Geen |
|---|---|
| P-score | A |
| G-score | A |
| Totale oppervlakte (m²) | 300 |
| Bebouwde oppervlakte (m²) | 0 |
| Tuin oppervlakte (m²) | 0 |
Vergunning
| Verkavelingsvergunning | Geen beschikbaar |
|---|
Uitrusting
| Investeringspand | Nee |
|---|---|
| Parking | Nee |
| Garage | Nee |
| Tuin | Ja |
| Lift | Nee |
| Rioolaansluiting | Ja |
| Gasaansluiting | Nee |
| Wateraansluiting | Ja |
| Elektriciteitsaansluiting | Ja |
| Internetaansluiting | Ja |
| Telefoonaansluiting | Nee |
| Zonnepanelen | Ja |
| Zonneboiler | Nee |
| Alarm | Nee |
| Videofoon | Nee |
| Grondwaterput | Ja |
Een pand van
Maes Concept Immo
Maesters in vastgoed
Welkom thuis.
Welkom bij Maes Concept Immo.
Een vastgoedkantoor gespecialiseerd in verkoop, verhuur, rentmeesterschap en projectontwikkeling in regio West- en Oost-Vlaanderen.
Waarden
Wist je dat onze werknemers een gemeenschappelijk stukje DNA hebben?
De klant is koning. Dat is ook hun toekomst.
Wij bouwen mee aan de toekomst van de klant door mee te denken in hun verhaal.
Ondernemen. Innovatief ondernemen.
We nemen initiatief voor onze klanten om nieuwe oplossingen en mogelijkheden te realiseren.
Mensen staan voorop. Bij alles wat we doen.
We hebben respect voor onze klanten en collega’s. We zijn betrouwbaar en enthousiast. Onze onderaannemers zijn erg belangrijk voor ons, net als de planeet die we delen. Samenwerkingen helpen ons vooruit te komen.
Meer info?
Bel ons op 056/722.180 voor een afspraak of mail naar info@maesconceptimmo.be
Anz-vichtsesteenweg lot 1
Leer meer over vastgoed
23 March 2026
Op Spotto zoeken als een pro: 10 slimme tips
21 March 2026
Hoeveel kan ik lenen om een huis te kopen?
01 March 2026
Wanneer heb ik een bouwvergunning of omgevingsvergunning nodig?
17 February 2026