Ruime nieuwbouwwoning met landelijke stijl
€ 427.713
Een pand van Immo Van Parijs
Jouw zoektocht
Overzicht
- 207 m² bewoonbaar
- 488 m² grond
- 3 Slaapkamer(s)
- 1 Badkamer(s)
- 2 Toilet(ten)
- 1 Tuin
Beschrijving
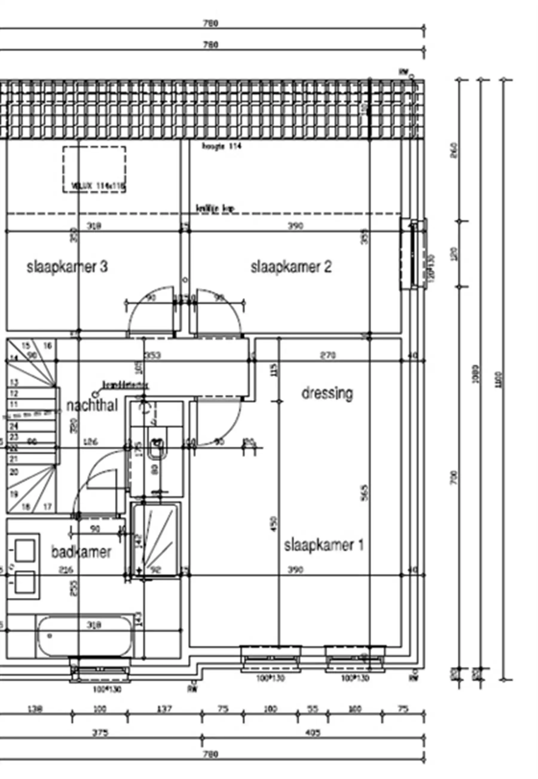
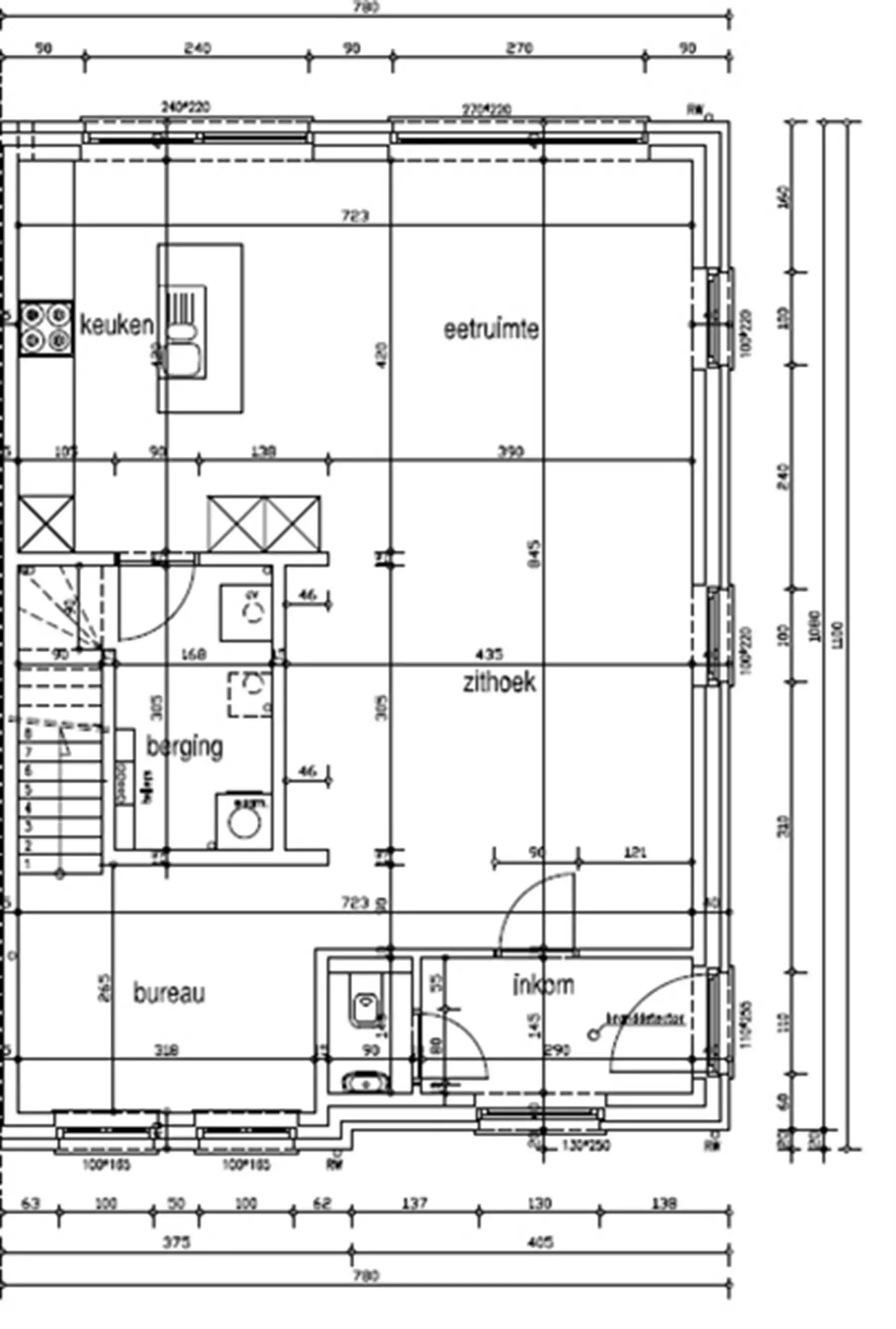
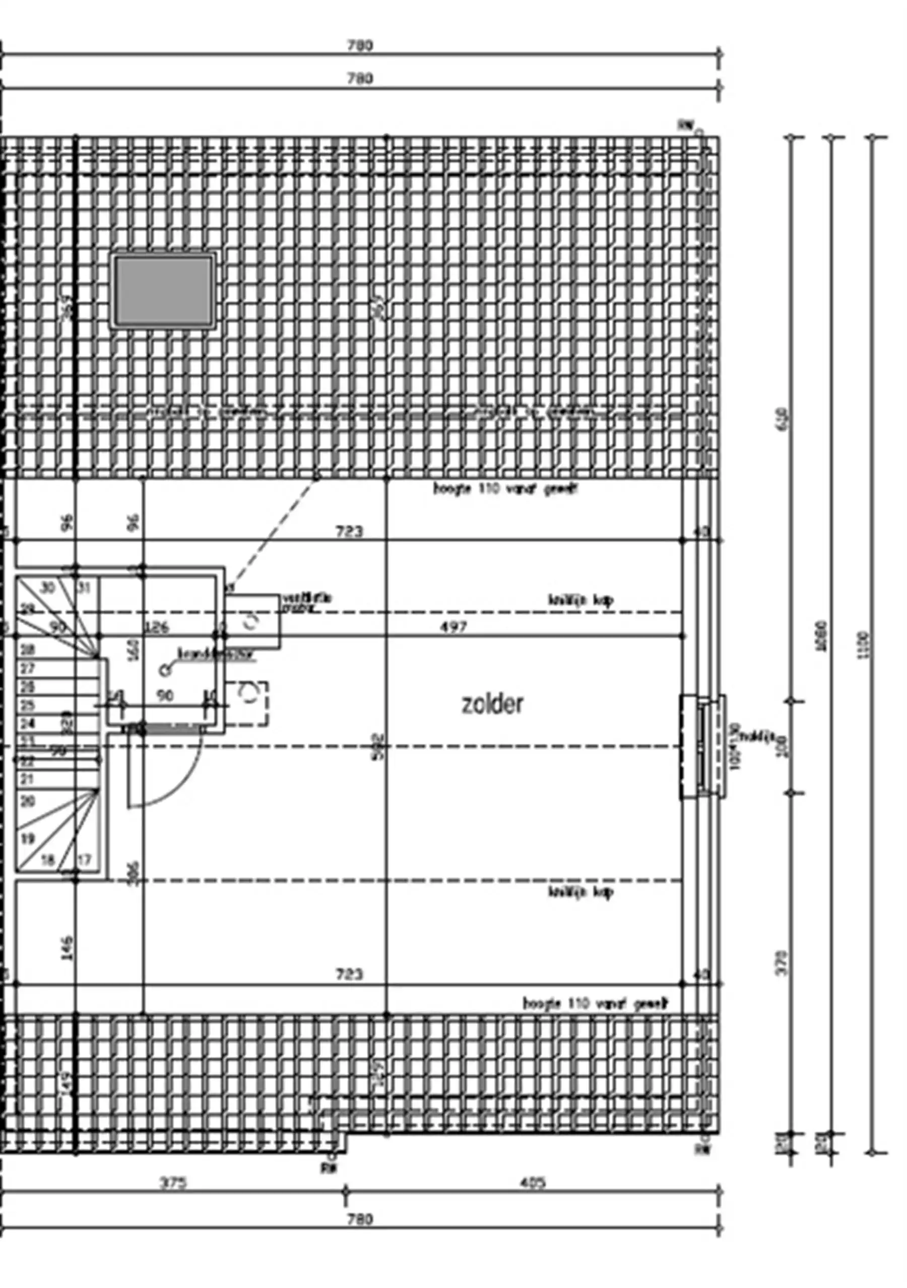
Twee nieuwe koppelwoningen in een recente verkaveling te Ingooigem, een dorp aan de voet van de Vlaamse Ardennen. De woningen hebben op het gelijkvloerse een inkom, toilet, ruime leefruimte met bureau, open keuken en een berging. Op de verdieping geeft de nachthal uit op 3 slaapkamers waarvan 1 met dressing, een badkamer en een afzonderlijk toilet. Op de verdieping is er een vaste trap naar de zolder die toegang geeft naar een mogelijke polyvalente ruimte of een 4de slaapkamer.
De woningen worden heel energiezuinig geplaatst. Op het gelijkvloers werd gekozen voor vloerverwarming. De woningen krijgen een tijdloze landelijke stijl. Bij aankoop van de woning kunnen nog verschillende keuzes voor het interieur gemaakt worden. Zo kan u zelf nog de vloeren, de keuken, de badkamer enzovoort kiezen. Hiervoor werden reeds ruime budgetten voorzien. De ruwbouwwerken zijn reeds gestart. De woningen kunnen zowel sleutel op de deur als ruwbouw wind- en waterdicht aangekocht worden.
Energie
- EPC Certificaat: EPB beschikbaar na oplevering - label A
- E-peil: E0
- Beglazing: Standaard dubbel
Op de kaart

Financieel
| Prijs | |
|---|---|
| Kadastraal inkomen (niet geïndexeerd) | € 0 |
| Kadastraal inkomen (geïndexeerd) | € 0 |
Berekening kosten
Je aankoopkosten? Die heb je snel berekend via de knop hieronder.
Bijkomende info
Gebouw
| Bouwjaar | 2023 |
|---|---|
| Staat | Nieuw |
| Bouwcertificaat | Nee |
| Bewoonbaar (m²) | 207 |
| Verdieping | 3 |
| Gevelbreedte | 7.8 |
| Badkamers | 1 |
| Slaapkamers | 3 |
| Verdiepingen | 0 |
| Garages | 0 |
| Parkeerplaatsen | 0 |
| Doucheruimtes | 0 |
| Toiletten | 2 |
Faciliteiten
| Keuken uitrusting | Goed uitgerust |
|---|---|
| Materiaal ramenomlijstingen | PVC |
| Beglazing | Standaard dubbel |
| Elektrisch keuringsattest | Ja |
Perceel
| Diepte (m) | 35 |
|---|---|
| Breedte (m) | 14 |
| Overstromingsgevoelig | Geen |
| Voorkeurrecht | Nee |
| Totale oppervlakte (m²) | 488 |
| Bebouwde oppervlakte (m²) | 85 |
| Tuin oppervlakte (m²) | 0 |
| Oppervlakte terras (m²) | 0 |
| Oriëntatie tuin | Zuid |
Vergunning
| Vergunning | Vergunning beschikbaar |
|---|---|
| Verkavelingsvergunning | Vergunning beschikbaar |
Uitrusting
| Investeringspand | Nee |
|---|---|
| Geschikt voor praktijk | Nee |
| Parking | Nee |
| Garage | Nee |
| Thuiskantoor | Nee |
| Kelder | Nee |
| Zolder | Ja |
| Tuin | Ja |
| Terras | Nee |
| Lift | Nee |
| Rioolaansluiting | Ja |
| Gasaansluiting | Ja |
| Wateraansluiting | Ja |
| Elektriciteitsaansluiting | Ja |
| TV aansluiting | Ja |
| Internetaansluiting | Ja |
| Telefoonaansluiting | Ja |