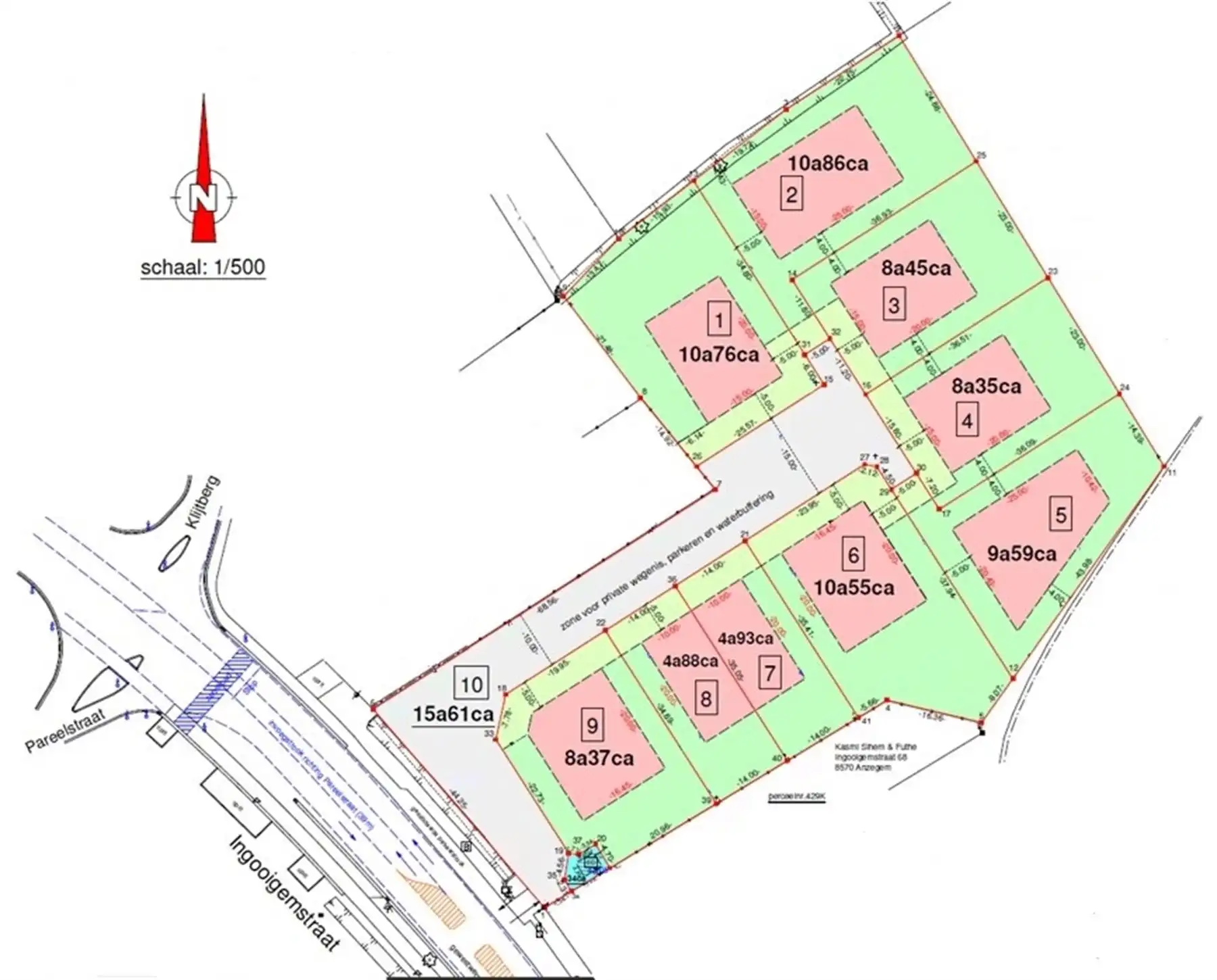
Verschillende bouwgronden 835m²-1086m² op nieuwe verkaveling
€ 200.880
Een pand van Immo Van Parijs
Favoriet
Jouw zoektocht
Jouw scoretabel voor dit pand
Aan het laden...
Jouw geplande bezichtigingen
Aan het laden...
Overzicht
- 835 m² grond
Beschrijving
Verschillende bouwgronden met oppervlaktes tussen 835m² en 1086m². De gronden zijn te vinden in een nieuwe verkaveling in Ingooigem met een vlotte bereikbaarheid.
Prijzen variëren van €200 880 tot €274 300.
Bel Immo Van Parijs voor meer informatie: 056 29 30 30.
Nog verschillende bouwgronden te koop in deze verkaverling. Contacteer ons gerust voor meer info.
Energie
- E-peil: E0
- Beglazing: Onbekend
Op de kaart

Financieel
| Prijs | |
|---|---|
| Kadastraal inkomen (niet geïndexeerd) | € 0 |
| Kadastraal inkomen (geïndexeerd) | € 0 |
Berekening kosten
Je aankoopkosten? Die heb je snel berekend via de knop hieronder.
Bijkomende info
Gebouw
| Bouwcertificaat | Nee |
|---|
Perceel
| Overstromingsgevoelig | Geen |
|---|---|
| Voorkeurrecht | Ja |
| Totale oppervlakte (m²) | 835 |
Vergunning
| Vergunning | Geen beschikbaar |
|---|---|
| Verkavelingsvergunning | Geen beschikbaar |
Uitrusting
| Investeringspand | Nee |
|---|---|
| Rioolaansluiting | Nee |
| Gasaansluiting | Nee |
| Wateraansluiting | Nee |
| Elektriciteitsaansluiting | Nee |
| TV aansluiting | Nee |
| Internetaansluiting | Nee |
| Telefoonaansluiting | Nee |
Een pand van
Immo Van Parijs
Advies en Verkoop
Immo Van Parijs is een familiebedrijf waarbij persoonlijk contact en een uitstekende service centraal staan. Zaakvoerder Vincent Van Parijs is sinds 1996 actief als vastgoedmakelaar. Wij beschikken dan ook over de nodige kennis om zowel juridisch, bouwtechnisch als economisch advies te verlenen.
Een vastgoedtransactie is een belangrijke aangelegenheid in uw leven die enige voorzichtigheid vereist!
Wij besluiten resoluut om klantgericht en niet pandgericht te werken. Wij zijn van mening dat kwaliteit primeert boven massa. Daarom streven we naar een persoonlijke en professionele aanpak.
De combinatie van ons enthousiasme, juridische kennis en onze praktijkervaring maakt dat wij gerust kunnen stellen, de ideale vertrouwenspartner te zijn bij uw vastgoedtransactie.
Immo Van Parijs biedt u een “full service” pakket zodat u kunt verkopen of verhuren zonder zorgen!
INGOOIGEMSTRAAT INGOOIGEM
Leer meer over vastgoed
23 March 2026
Op Spotto zoeken als een pro: 10 slimme tips
21 March 2026
Hoeveel kan ik lenen om een huis te kopen?
01 March 2026
Wanneer heb ik een bouwvergunning of omgevingsvergunning nodig?
17 February 2026