NIEUWBOUWZATERDAG 13/12: 10u - 12u - Prachtige halfopen nieuwbouwwoning met 3 slaapkamers in Houthulst
Een pand van Residentie Vastgoed
Overzicht
- 141 m² bewoonbaar
- 290 m² grond
- 3 Slaapkamer(s)
- 1 Badkamer(s)
- 2 Toilet(ten)
- 1 Tuin
Beschrijving
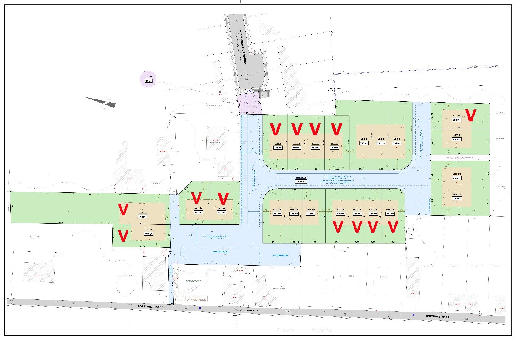
Deze hedendaagse halfopen woning met lotnummer 9 ligt op een perceel van 290 m², waarvan zo'n 84,93 m² bebouwd. Deze woning heeft een bewoonbare oppervlakte van zo'n 139,68 m². Deze woning is op de gelijkvloerse verdieping voorzien van een inkomhal met apart toilet, een ruime leefruimte met open ingerichte keuken en een was -en bergruimte. Op de eerste verdieping bevinden er zich 3 slaapkamers, waarvan 1 met dressing, een badkamer en een mooie nachthal met apart toilet. Bovendien bevat deze woning een mooie tuin. Vraag gerust naar ons lastenboek en plannen op kantoor!
Deze nieuwe woning wordt gebouwd door Residentie Vastgoed in een rustige wijk met landelijk karakter te Houthulst, op een boogscheut van de stad Diksmuide. Houthulst situeert zich in de driehoek Diksmuide, Roeselare en Ieper. In Houthulst is het steeds heerlijk vertoeven met tal van verschillende eetmogelijkheden, winkeltjes en sportmogelijkheden. Deze hedendaagse woningen worden gebouwd volgens de meest recente energienorm en u krijgt nog volledige inspraak in de afwerking!
Voor meer uitleg maken wij graag met u een afspraak voor een persoonlijk gesprek! Tot binnenkort? Residentie Vastgoed
(Vg, Wg, Gmo, Gvkr, Vv) ~ E-peil: max E35 ~ Ref. OU27695
Voor meer uitleg maken wij graag met u een afspraak voor een persoonlijk gesprek! Tot binnenkort? Residentie Vastgoed
Residentie Vastgoed treedt niet op als bemiddelaar maar als verkoper van het onroerend goed
Deze nieuwe woning wordt gebouwd door Residentie Vastgoed in een rustige wijk met landelijk karakter te Houthulst, op een boogscheut van de stad Diksmuide. Houthulst situeert zich in de driehoek Diksmuide, Roeselare en Ieper. In Houthulst is het steeds heerlijk vertoeven met tal van verschillende eetmogelijkheden, winkeltjes en sportmogelijkheden. Deze hedendaagse woningen worden gebouwd volgens de meest recente energienorm en u krijgt nog volledige inspraak in de afwerking!
Voor meer uitleg maken wij graag met u een afspraak voor een persoonlijk gesprek! Tot binnenkort? Residentie Vastgoed
(Vg, Wg, Gmo, Gvkr, Vv) ~ E-peil: max E35 ~ Ref. OU27695
Voor meer uitleg maken wij graag met u een afspraak voor een persoonlijk gesprek! Tot binnenkort? Residentie Vastgoed
Residentie Vastgoed treedt niet op als bemiddelaar maar als verkoper van het onroerend goed
Energie
- E-peil: E35
- Verwarming: Gas
- Beglazing: Onbekend
Op de kaart

Financieel
| Prijs | |
|---|---|
| Kadastraal inkomen (niet geïndexeerd) | € 0 |
| Kadastraal inkomen (geïndexeerd) | € 0 |
Bijkomende info
Gebouw
| Bouwjaar | 2025 |
|---|---|
| Is beschermd | Nee |
| Bewoonbaar (m²) | 141 |
| Gevelbreedte | 7.9 |
| Badkamers | 1 |
| Slaapkamers | 3 |
| Parkeerplaatsen | 1 |
| Toiletten | 2 |
Faciliteiten
| Keuken | Open keuken |
|---|---|
| Keuken uitrusting | Goed uitgerust |
| Materiaal ramenomlijstingen | PVC |
| Luiken | Nee |
| Primair verwarmingstype | Centrale verwarming |
| Primaire verwarmingsbron | Condensatieketel |
| Brandstof primaire verwarming | Gas |
Perceel
| Overstromingsgevoelig | Geen |
|---|---|
| Voorkeurrecht | Nee |
| Totale oppervlakte (m²) | 290 |
| Bebouwde oppervlakte (m²) | 85 |
| Oriëntatie tuin | Zuid |
Vergunning
| Vergunning | Vergunning beschikbaar |
|---|---|
| Verkavelingsvergunning | Vergunning beschikbaar |
| Bouwovertreding dagvaardiging | Geen |
| Type gebied | Stedelijk |
Uitrusting
| Meerdere eigenaars | Nee |
|---|---|
| Geschikt als kangoeroewoning | Nee |
| Geschikt voor rolstoelgebruikers | Nee |
| Geschikt voor praktijk | Nee |
| Volledig onderkelderd | Nee |
| Parking | Ja |
| Garage | Nee |
| Thuiskantoor | Nee |
| Kelder | Nee |
| Zolder | Nee |
| Opslagruimte | Nee |
| Tuin | Ja |
| Terras | Nee |
| Lift | Nee |
| Rioolaansluiting | Nee |
| Gasaansluiting | Ja |
| Wateraansluiting | Ja |
| Elektriciteitsaansluiting | Ja |
| TV aansluiting | Nee |
| Internetaansluiting | Nee |
| Zonnepanelen | Ja |
| Zonneboiler | Nee |
| Alarm | Nee |
| Zwembad | Nee |
| Jacuzzi | Nee |
| Toonzaal | Nee |
| Ventilatie | Nee |
Een pand van
Residentie Vastgoed
Wij stellen jouw woning voorop!
Residentie Vastgoed heeft tot doel u op een deskundige en correcte manier te helpen bij het vinden van een gepaste woning. U, als eigenaar, helpen wij om uw eigendom aan een eerlijke en juiste prijs te verkopen. Binnen onze site ontdekt u een waaier van diensten die Residentie Vastgoed aanbiedt. www.residentievastgoed.be
OU27695 lot 9
Leer meer over vastgoed
24 November 2025
Uitgezocht voor jouw gemeente: Hoeveel stijgt de waarde van je woning door een renovatie?
22 October 2025
Hoeveel kan ik lenen om een huis te kopen?
11 June 2025
Huis kopen met bouwovertreding? Dit moet je weten
11 May 2025