NIEUWBOUWZONDAG: 26 april van 10u-12u of 14u-16u! Prachtige halfopen nieuwbouwwoning in centrum van Houthulst
€ 311.721,88
Een pand van Residentie Vastgoed
Favoriet
Jouw zoektocht
Jouw scoretabel voor dit pand
Aan het laden...
Jouw geplande bezichtigingen
Aan het laden...
Overzicht
- 151.52 m² bewoonbaar
- 246 m² grond
- 3 Slaapkamer(s)
- 1 Badkamer(s)
- 2 Toilet(ten)
- 1 Tuin
- 1 Garage(s)
Beschrijving
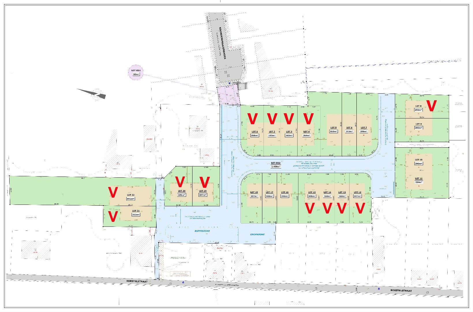
Deze nieuwe verkaveling gebouwd door Residentie Vastgoed bestaat uit 3 loten en is gelegen in een rustige wijk met landelijk karakter te Houthulst, nabij de stad Diksmuide. Houthulst situeert zich in de driehoek Diksmuide, Roeselare en Ieper. In Houthulst is het steeds heerlijk vertoeven met tal van verschillende eetmogelijkheden, winkeltjes en sportmogelijkheden. Deze hedendaagse woningen worden gebouwd volgens de meest recente energienorm en u krijgt nog volledige inspraak in de afwerking! Grondoppervlaktes vanaf 168 m² tot 246 m². Deze woningen beschikken steeds over 3 slaapkamers en een inpandige garage. Bovendien bevatten deze woningen een mooie tuin. Vraag gerust naar ons lastenboek en plannen op kantoor!
Deze hedendaagse halfopen woning met lotnummer 16 ligt op een perceel van 246 m². Deze woning heeft een bewoonbare oppervlakte van zo'n 151,52 m². Deze woning is op de gelijkvloerse verdieping voorzien van een inkomhal met apart toilet, een ruime leefruimte met open ingerichte keuken, een was -en bergruimte en een inpandige garage. Op de eerste verdieping bevinden er zich 3 slaapkamers waarvan 1 met dressing, een badkamer en een mooie nachthal met apart toilet. Bovendien bevat deze woning een mooie tuin. Vraag gerust naar ons lastenboek en plannen op kantoor!
Voor meer uitleg maken wij graag met u een afspraak voor een persoonlijk gesprek! Tot binnenkort? Residentie Vastgoed
(Vg, Wg, Gmo, Gvkr, Vv) ~ E-peil: max E35 ~ Ref. OU27719lot16
Voor meer uitleg maken wij graag met u een afspraak voor een persoonlijk gesprek! Tot binnenkort? Residentie Vastgoed
Residentie Vastgoed treedt niet op als bemiddelaar maar als verkoper van het onroerend goed
Deze hedendaagse halfopen woning met lotnummer 16 ligt op een perceel van 246 m². Deze woning heeft een bewoonbare oppervlakte van zo'n 151,52 m². Deze woning is op de gelijkvloerse verdieping voorzien van een inkomhal met apart toilet, een ruime leefruimte met open ingerichte keuken, een was -en bergruimte en een inpandige garage. Op de eerste verdieping bevinden er zich 3 slaapkamers waarvan 1 met dressing, een badkamer en een mooie nachthal met apart toilet. Bovendien bevat deze woning een mooie tuin. Vraag gerust naar ons lastenboek en plannen op kantoor!
Voor meer uitleg maken wij graag met u een afspraak voor een persoonlijk gesprek! Tot binnenkort? Residentie Vastgoed
(Vg, Wg, Gmo, Gvkr, Vv) ~ E-peil: max E35 ~ Ref. OU27719lot16
Voor meer uitleg maken wij graag met u een afspraak voor een persoonlijk gesprek! Tot binnenkort? Residentie Vastgoed
Residentie Vastgoed treedt niet op als bemiddelaar maar als verkoper van het onroerend goed
Energie
- E-peil: E35
- Verwarming: Gas
- Beglazing: Onbekend
Op de kaart

Financieel
| Prijs | |
|---|---|
| Kadastraal inkomen (niet geïndexeerd) | € 0 |
| Kadastraal inkomen (geïndexeerd) | € 0 |
Bijkomende info
Gebouw
| Bouwjaar | 2026 |
|---|---|
| Is beschermd | Nee |
| Bewoonbaar (m²) | 151.52 |
| Gevelbreedte | 7.25 |
| Badkamers | 1 |
| Slaapkamers | 3 |
| Garages | 1 |
| Parkeerplaatsen | 1 |
| Toiletten | 2 |
Faciliteiten
| Keuken | Open keuken |
|---|---|
| Keuken uitrusting | Goed uitgerust |
| Materiaal ramenomlijstingen | PVC |
| Luiken | Nee |
| Primair verwarmingstype | Centrale verwarming |
| Primaire verwarmingsbron | Condensatieketel |
| Brandstof primaire verwarming | Gas |
Perceel
| Overstromingsgevoelig | Geen |
|---|---|
| Voorkeurrecht | Nee |
| Totale oppervlakte (m²) | 246 |
| Bebouwde oppervlakte (m²) | 79 |
| Oriëntatie tuin | West |
Vergunning
| Vergunning | Vergunning beschikbaar |
|---|---|
| Verkavelingsvergunning | Vergunning beschikbaar |
| Bouwovertreding dagvaardiging | Geen |
| Type gebied | Stedelijk |
Uitrusting
| Meerdere eigenaars | Nee |
|---|---|
| Geschikt als kangoeroewoning | Nee |
| Geschikt voor rolstoelgebruikers | Nee |
| Geschikt voor praktijk | Nee |
| Volledig onderkelderd | Nee |
| Parking | Ja |
| Garage | Ja |
| Thuiskantoor | Nee |
| Kelder | Nee |
| Zolder | Nee |
| Opslagruimte | Nee |
| Tuin | Ja |
| Terras | Nee |
| Lift | Nee |
| Rioolaansluiting | Nee |
| Gasaansluiting | Ja |
| Wateraansluiting | Ja |
| Elektriciteitsaansluiting | Ja |
| TV aansluiting | Nee |
| Internetaansluiting | Nee |
| Zonnepanelen | Nee |
| Zonneboiler | Nee |
| Alarm | Nee |
| Zwembad | Nee |
| Jacuzzi | Nee |
| Toonzaal | Nee |
| Ventilatie | Nee |
Een pand van
Residentie Vastgoed
Wij stellen jouw woning voorop!
Residentie Vastgoed heeft tot doel u op een deskundige en correcte manier te helpen bij het vinden van een gepaste woning. U, als eigenaar, helpen wij om uw eigendom aan een eerlijke en juiste prijs te verkopen. Binnen onze site ontdekt u een waaier van diensten die Residentie Vastgoed aanbiedt. www.residentievastgoed.be
OU27719lot16
Leer meer over vastgoed
23 March 2026
Op Spotto zoeken als een pro: 10 slimme tips
21 March 2026
Hoeveel kan ik lenen om een huis te kopen?
01 March 2026
Wanneer heb ik een bouwvergunning of omgevingsvergunning nodig?
17 February 2026