Schuiferskapelle - Juffrouw Elzastraat - lot 05
Een pand van C-Nest Groep
Favoriet
Jouw zoektocht
Jouw scoretabel voor dit pand
Aan het laden...
Jouw geplande bezichtigingen
Aan het laden...
Overzicht
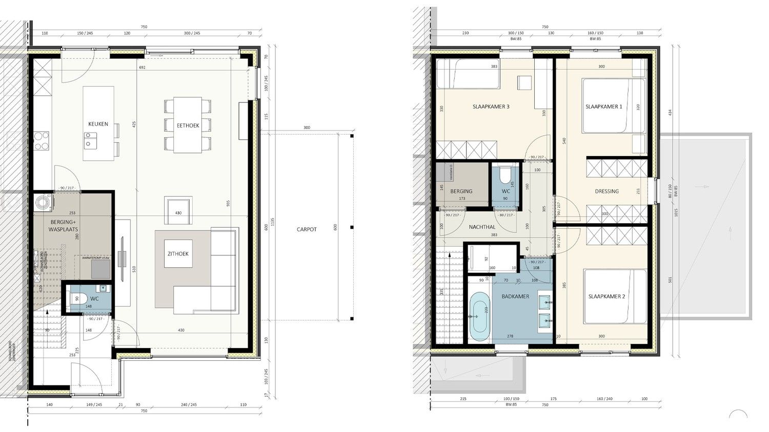
- 156 m² bewoonbaar
- 345 m² grond
- 3 Slaapkamer(s)
Beschrijving
In Schuiferskapelle, nabij Tielt, bouwt C-Nest Groep 10 nieuwe woningen in een kleinschalige nieuwe verkaveling.
De verkaveling is gelegen in de Dosseweg en zal de nieuwe naam Juffrouw Elzastraat krijgen.
De verkaveling is een mix van moderne en landelijke woningen met landelijk verzicht.
De woning op lot 5 is een moderne, halfopen bebouwing met een oppervlakte van 143 m² en beschikt over een ruime leefruimte met open keuken, 3 slaapkamers, badkamer en carport. De grondoppervlakte bedraagt 345 m².
Energiezuinige woningen
De woningen zullen een E-peil van maximaal E30 hebben. Hiervoor worden de woningen voorzien van vloerverwarming met een lucht/water warmtepomp, ventilatie D, zonnepanelen, ...
Centrale, rustige ligging
De nieuwe verkaveling grenst aan landbouwgronden, waardoor de woningen kunnen genieten van een landelijk verzicht.
Op 10 minuten afstand is het centrum van Tielt, Ruiselede of Wingene te vinden, waardoor dit een uiterst centrale ligging is, met een goede bereikbaarheid.
Bovendien kan u als klant de binnen afwerking van je toekomstige woning nog mee kiezen, in samenspraak met onze klantenbegeleiding.
Interesse?
Neem snel contact met ons op voor verdere informatie over deze nieuwe woningen!
De verkaveling is gelegen in de Dosseweg en zal de nieuwe naam Juffrouw Elzastraat krijgen.
De verkaveling is een mix van moderne en landelijke woningen met landelijk verzicht.
De woning op lot 5 is een moderne, halfopen bebouwing met een oppervlakte van 143 m² en beschikt over een ruime leefruimte met open keuken, 3 slaapkamers, badkamer en carport. De grondoppervlakte bedraagt 345 m².
Energiezuinige woningen
De woningen zullen een E-peil van maximaal E30 hebben. Hiervoor worden de woningen voorzien van vloerverwarming met een lucht/water warmtepomp, ventilatie D, zonnepanelen, ...
Centrale, rustige ligging
De nieuwe verkaveling grenst aan landbouwgronden, waardoor de woningen kunnen genieten van een landelijk verzicht.
Op 10 minuten afstand is het centrum van Tielt, Ruiselede of Wingene te vinden, waardoor dit een uiterst centrale ligging is, met een goede bereikbaarheid.
Bovendien kan u als klant de binnen afwerking van je toekomstige woning nog mee kiezen, in samenspraak met onze klantenbegeleiding.
Interesse?
Neem snel contact met ons op voor verdere informatie over deze nieuwe woningen!
Energie
- E-peil: E30
- Beglazing: Onbekend
Op de kaart

Financieel
| Prijs |
|---|
Bijkomende info
Gebouw
| Bouwjaar | 2025 |
|---|---|
| Staat | Nieuw |
| Bewoonbaar (m²) | 156 |
| Badkamers | 0 |
| Slaapkamers | 3 |
| Verdiepingen | 0 |
| Garages | 0 |
| Parkeerplaatsen | 0 |
| Toiletten | 0 |
Faciliteiten
| Septische tank | Nee |
|---|
Perceel
| Overstromingsgevoelig | Geen |
|---|---|
| P-score | A |
| G-score | A |
| Totale oppervlakte (m²) | 345 |
| Bebouwde oppervlakte (m²) | 0 |
Vergunning
| Verkavelingsvergunning | Vergunning beschikbaar |
|---|
Uitrusting
| Investeringspand | Nee |
|---|---|
| Parking | Nee |
| Garage | Nee |
| Lift | Nee |
| Rioolaansluiting | Nee |
| Gasaansluiting | Nee |
| Wateraansluiting | Nee |
| Elektriciteitsaansluiting | Nee |
| Internetaansluiting | Nee |
| Telefoonaansluiting | Nee |
| Zonnepanelen | Nee |
| Zonneboiler | Nee |
| Alarm | Nee |
| Videofoon | Nee |
| Grondwaterput | Nee |
Een pand van
C-Nest Groep
Residentieel vastgoed van C-Nest Groep: Da’s goed wonen!
C-Nest Groep is specialist in residentiële projectontwikkeling van woning- en appartementsbouw actief in de regio Oost- en West-Vlaanderen. De familiale waarden van C-Nest Groep vormen sinds 2007 de leidraad waarbij kwaliteit boven kwantiteit primeert.
We houden van ruimtegevoel, open bebouwing en groen. Dat betekent dat we bewust kiezen voor ruime panden en appartementen, die bijdragen tot een maximale levenskwaliteit.
Ben je op zoek naar een instapklare woning? Wil je bouwen op maat of grond verkopen? C-Nest Groep gaat samen met jou de uitdaging aan!
Schuiferskapelle_Juffrouw Elzastraat_lot 05
Leer meer over vastgoed
23 March 2026
Op Spotto zoeken als een pro: 10 slimme tips
21 March 2026
Hoeveel kan ik lenen om een huis te kopen?
01 March 2026
Wanneer heb ik een bouwvergunning of omgevingsvergunning nodig?
17 February 2026