Nieuwbouwappartement in residentie 'Villa Fortuna' in het hartje van Tielt!
€ 575.000
Een pand van Vastgoed Zebra
Overzicht
- 144 m² bewoonbaar
- 2 Slaapkamer(s)
- 1 Badkamer(s)
- 1 Toilet(ten)
Beschrijving
Villa Fortuna is een exclusief nieuwbouwproject gelegen op het Rameplein.
Hier worden 3 uitzonderlijk ruime appartementen gerealiseerd op een toplocatie in het centrum met winkels, horeca, cultuur, sport en openbaar vervoer op wandelafstand.
De appartementen onderscheiden zich door hun royale en doordachte indeling, grote raampartijen die overvloedig natuurlijk licht binnenlaten, en een verfijnde afwerking met uitsluitend hoogwaardige materialen, in harmonie met het luxueuze en kwalitatieve karakter van het gebouw.
De appartementen beantwoorden aan de meest recente energetische normen en zijn uitgerust met vloerverwarming op basis van een individuele warmtepomp en een ventilatiesysteem voor een gezond binnenklimaat
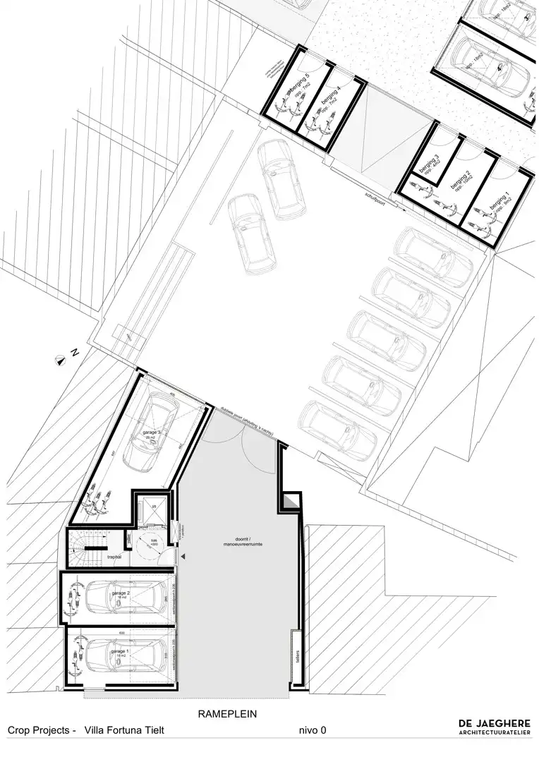
Achteraan het terrein zijn private garages voorzien, bereikbaar via het Rameplein, evenals fietsenbergingen met een toegang langs de Nieuwstraat.
Jouw woonwensen, jouw indeling.
Kopers krijgen de mogelijkheid om de inrichting en afwerking af te stemmen op hun eigen stijl en behoeften, in samenspraak met de bouwheer.
Villa Fortuna bestaat uit volgende entiteiten :
- 1° Verdiep (1.1): 144 m² + 34 m² terrassen – 2 slpk – 1 bdk - berging VERKOCHT
- 2° Verdiep (2.1): 144 m² + 26 m² terrassen – 2 slpk – 1 bdk – berging VERKOCHT
- 3° Verdiep (3.1): 144 m² + 26 m² terrassen – 2 slpk – 1 bdk – berging
- Individuele fietsenbergingen
- 3 garages
Mogelijkheid tot aankoop aan 6% btw (i.p.v. 21%), indien u voldoet aan de voorwaarden.
Meer info hierover op kantoor.
Ook wild geworden van deze thuis?
Twijfel niet langer en leg vandaag nog uw afspraak op kantoor met de makelaar vast!
Hier worden 3 uitzonderlijk ruime appartementen gerealiseerd op een toplocatie in het centrum met winkels, horeca, cultuur, sport en openbaar vervoer op wandelafstand.
De appartementen onderscheiden zich door hun royale en doordachte indeling, grote raampartijen die overvloedig natuurlijk licht binnenlaten, en een verfijnde afwerking met uitsluitend hoogwaardige materialen, in harmonie met het luxueuze en kwalitatieve karakter van het gebouw.
De appartementen beantwoorden aan de meest recente energetische normen en zijn uitgerust met vloerverwarming op basis van een individuele warmtepomp en een ventilatiesysteem voor een gezond binnenklimaat
Achteraan het terrein zijn private garages voorzien, bereikbaar via het Rameplein, evenals fietsenbergingen met een toegang langs de Nieuwstraat.
Jouw woonwensen, jouw indeling.
Kopers krijgen de mogelijkheid om de inrichting en afwerking af te stemmen op hun eigen stijl en behoeften, in samenspraak met de bouwheer.
Villa Fortuna bestaat uit volgende entiteiten :
- 1° Verdiep (1.1): 144 m² + 34 m² terrassen – 2 slpk – 1 bdk - berging VERKOCHT
- 2° Verdiep (2.1): 144 m² + 26 m² terrassen – 2 slpk – 1 bdk – berging VERKOCHT
- 3° Verdiep (3.1): 144 m² + 26 m² terrassen – 2 slpk – 1 bdk – berging
- Individuele fietsenbergingen
- 3 garages
Mogelijkheid tot aankoop aan 6% btw (i.p.v. 21%), indien u voldoet aan de voorwaarden.
Meer info hierover op kantoor.
Ook wild geworden van deze thuis?
Twijfel niet langer en leg vandaag nog uw afspraak op kantoor met de makelaar vast!
Energie
- E-peil: E0
- Beglazing: Onbekend
Op de kaart

Financieel
| Prijs |
|---|
Bijkomende info
Gebouw
| Staat | Nieuw |
|---|---|
| Bewoonbaar (m²) | 144 |
| Verdieping | 3 |
| Badkamers | 1 |
| Slaapkamers | 2 |
| Verdiepingen | 0 |
| Garages | 0 |
| Parkeerplaatsen | 0 |
| Toiletten | 1 |
Faciliteiten
| Septische tank | Nee |
|---|
Perceel
| Overstromingsgevoelig | Geen |
|---|---|
| P-score | A |
| G-score | A |
| Bebouwde oppervlakte (m²) | 0 |
| Oppervlakte terras (m²) | 21 |
| Oriëntatie tuin | ZuidOost |
Vergunning
| Verkavelingsvergunning | Geen beschikbaar |
|---|
Uitrusting
| Investeringspand | Nee |
|---|---|
| Parking | Nee |
| Garage | Nee |
| Opslagruimte | Ja |
| Terras | Ja |
| Lift | Ja |
| Rioolaansluiting | Ja |
| Gasaansluiting | Nee |
| Wateraansluiting | Ja |
| Elektriciteitsaansluiting | Ja |
| Internetaansluiting | Ja |
| Telefoonaansluiting | Nee |
| Zonnepanelen | Nee |
| Zonneboiler | Nee |
| Alarm | Nee |
| Videofoon | Ja |
| Grondwaterput | Nee |
Appartementsblok
| Lift | Ja |
|---|---|
| Intercom | Nee |
Een pand van
Vastgoed Zebra
Jonge maar ervaren makelaars die resoluut kiezen voor een persoonlijke aanpak bij de verkoop/verhuur van jouw vastgoed! Go wild, go Zebra! 🦓🧡
Wens je graag een gratis schatting van jouw woning, appartement, grond, garage of bedrijfsvastgoed?
Of ben je op zoek naar een eigen stek, wij helpen jou met veel passie in de zoektocht naar jouw ideale thuis!
Bij Vastgoed Zebra word je geholpen door een enthousiast team jonge veulens. Onze persoonlijke en eerlijke aanpak in combinatie met onze expertise en ervaring, maken van Vastgoed Zebra jouw ideale partner voor het verkopen, kopen, verhuren en huren van je onroerend goed. Wij bereiken de resultaten die je wenst. Dat beloven we. Zwart op wit.
2025080CCC
Leer meer over vastgoed
Nieuw
24 November 2025
Uitgezocht voor jouw gemeente: Hoeveel stijgt de waarde van je woning door een renovatie?
22 October 2025
Hoeveel kan ik lenen om een huis te kopen?
11 June 2025
Huis kopen met bouwovertreding? Dit moet je weten
11 May 2025