Nieuw
Halfopen bebouwing met praktijk- of kantoorruimte in centrum Tielt
€ 350.000
Een pand van Vastgoed Zebra
Favoriet
Jouw zoektocht
Jouw scoretabel voor dit pand
Aan het laden...
Jouw geplande bezichtigingen
Aan het laden...
Overzicht
- 216 m² bewoonbaar
- 507 m² grond
- 3 Slaapkamer(s)
- 1 Badkamer(s)
- 3 Toilet(ten)
Beschrijving
Deze ruime woning met drie slaapkamers, een grote tuin en tal van mogelijkheden voor thuiswerk of het ontvangen van cliënten is gelegen op een toplocatie in het centrum van Tielt.
Bij het betreden van de woning komt u in de inkomhal met trap naar de eerste verdieping, die tevens toegang biedt tot de ruime woonkamer, keuken en toilet. De lichtrijke leefruimte geniet van een mooi zicht op de tuin.
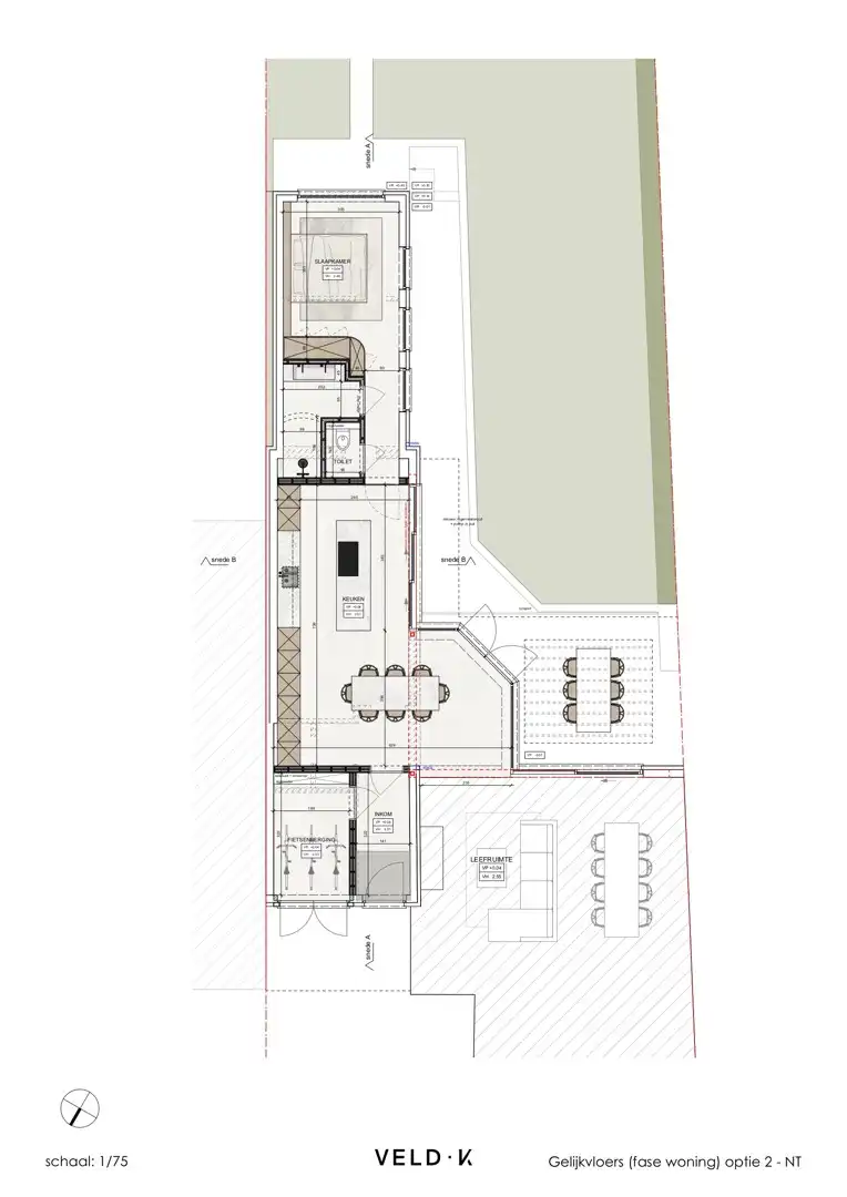
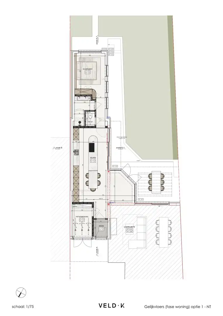
Op het gelijkvloers bevindt zich bovendien een afzonderlijk deel van de woning dat momenteel kan worden ingericht als bureau met extra polyvalente ruimtes. Dankzij de aparte ingang, de volwaardige oprit en de gratis parkeermogelijkheden in de straat is dit gedeelte bijzonder geschikt voor een vrij beroep of andere professionele activiteiten.
Daarnaast zijn er reeds plannen opgemaakt om dit deel van de woning te integreren in de leefruimte, met de mogelijkheid om een nieuwe, ruime keuken en een slaapkamer op het gelijkvloers te creëren. (zie foto's)
Op de eerste verdieping vindt u drie volwaardige slaapkamers, een badkamer met toilet. Verder beschikt de woning nog over een ruime zolder, die extra opslag- of uitbreidingsmogelijkheden biedt.
Buiten kunt u volop genieten van een grote, groene tuin met weinig inkijk.
De woning is momenteel verhuurd.
Bestuursmaatregelen in het maatregelenregister: nee
Ook wild geworden van deze thuis?
Twijfel niet langer en leg vandaag nog uw bezoek vast!
Bij het betreden van de woning komt u in de inkomhal met trap naar de eerste verdieping, die tevens toegang biedt tot de ruime woonkamer, keuken en toilet. De lichtrijke leefruimte geniet van een mooi zicht op de tuin.
Op het gelijkvloers bevindt zich bovendien een afzonderlijk deel van de woning dat momenteel kan worden ingericht als bureau met extra polyvalente ruimtes. Dankzij de aparte ingang, de volwaardige oprit en de gratis parkeermogelijkheden in de straat is dit gedeelte bijzonder geschikt voor een vrij beroep of andere professionele activiteiten.
Daarnaast zijn er reeds plannen opgemaakt om dit deel van de woning te integreren in de leefruimte, met de mogelijkheid om een nieuwe, ruime keuken en een slaapkamer op het gelijkvloers te creëren. (zie foto's)
Op de eerste verdieping vindt u drie volwaardige slaapkamers, een badkamer met toilet. Verder beschikt de woning nog over een ruime zolder, die extra opslag- of uitbreidingsmogelijkheden biedt.
Buiten kunt u volop genieten van een grote, groene tuin met weinig inkijk.
De woning is momenteel verhuurd.
Bestuursmaatregelen in het maatregelenregister: nee
Ook wild geworden van deze thuis?
Twijfel niet langer en leg vandaag nog uw bezoek vast!
Energie
![]() |
- EPC Certificaat: 20240528-0003262099-RES-1
- Energieverbruik: 364 kWh/m²/jaar
- E-peil: E0
- Verwarming: Gas
- Beglazing: Standaard dubbel
Extra budget nodig voor je renovatie?
De overheid helpt je dit pand energetisch te renoveren! Hieronder zie je het premiebedrag dat je mogelijks van de overheid krijgt.
Het huidige EPC-label is:

Op de kaart

Financieel
| Prijs | |
|---|---|
| Kadastraal inkomen (niet geïndexeerd) | € 932 |
Berekening kosten
Je aankoopkosten? Die heb je snel berekend via de knop hieronder.
Bijkomende info
Gebouw
| Bouwjaar | 1962 |
|---|---|
| Staat | Goed onderhouden |
| Bewoonbaar (m²) | 216 |
| Badkamers | 1 |
| Slaapkamers | 3 |
| Verdiepingen | 0 |
| Garages | 0 |
| Parkeerplaatsen | 0 |
| Toiletten | 3 |
Faciliteiten
| Keuken uitrusting | Goed uitgerust |
|---|---|
| Beglazing | Standaard dubbel |
| Brandstof primaire verwarming | Gas |
| Septische tank | Nee |
Perceel
| Overstromingsgevoelig | Geen |
|---|---|
| P-score | A |
| G-score | A |
| Totale oppervlakte (m²) | 507 |
| Bebouwde oppervlakte (m²) | 0 |
| Oriëntatie tuin | ZuidOost |
Vergunning
| Verkavelingsvergunning | Geen beschikbaar |
|---|
Uitrusting
| Investeringspand | Nee |
|---|---|
| Parking | Nee |
| Garage | Nee |
| Thuiskantoor | Ja |
| Kelder | Ja |
| Zolder | Ja |
| Opslagruimte | Ja |
| Lift | Nee |
| Rioolaansluiting | Nee |
| Gasaansluiting | Ja |
| Wateraansluiting | Ja |
| Elektriciteitsaansluiting | Ja |
| Internetaansluiting | Ja |
| Telefoonaansluiting | Nee |
| Zonnepanelen | Nee |
| Zonneboiler | Nee |
| Alarm | Nee |
| Videofoon | Nee |
| Grondwaterput | Nee |
Een pand van
Vastgoed Zebra
Jonge maar ervaren makelaars die resoluut kiezen voor een persoonlijke aanpak bij de verkoop/verhuur van jouw vastgoed! Go wild, go Zebra! 🦓🧡
Wens je graag een gratis schatting van jouw woning, appartement, grond, garage of bedrijfsvastgoed?
Of ben je op zoek naar een eigen stek, wij helpen jou met veel passie in de zoektocht naar jouw ideale thuis!
Bij Vastgoed Zebra word je geholpen door een enthousiast team jonge veulens. Onze persoonlijke en eerlijke aanpak in combinatie met onze expertise en ervaring, maken van Vastgoed Zebra jouw ideale partner voor het verkopen, kopen, verhuren en huren van je onroerend goed. Wij bereiken de resultaten die je wenst. Dat beloven we. Zwart op wit.
2026014CC
Leer meer over vastgoed
23 March 2026
Op Spotto zoeken als een pro: 10 slimme tips
21 March 2026
Hoeveel kan ik lenen om een huis te kopen?
01 March 2026
Wanneer heb ik een bouwvergunning of omgevingsvergunning nodig?
17 February 2026


