Nieuwbouwappartement Tielt 'VILLA ALLEGRO'
€ 405.000
Een pand van De Ark Vastgoed
Jouw zoektocht
Overzicht
- 116 m² bewoonbaar
- 2 Slaapkamer(s)
- 1 Badkamer(s)
Beschrijving
Villa Allegro is een exclusief nieuwbouwproject gelegen aan de Kortrijkstraat. Hier worden vier uitzonderlijk ruime appartementen en een handelspand gerealiseerd op een toplocatie in het centrum met winkels, horeca, cultuur, sport en openbaar vervoer op wandelafstand.
De appartementen onderscheiden zich door hun royale en doordachte indeling, grote raampartijen die overvloedig natuurlijk licht binnenlaten, en een verfijnde afwerking met uitsluitend hoogwaardige materialen, in harmonie met het luxueuze en kwalitatieve karakter van het gebouw.
De appartementen beantwoorden aan de meest recente energetische normen en zijn uitgerust met vloerverwarming op basis van een individuele warmtepomp en een ventilatiesysteem voor een gezond binnenklimaat.
Achteraan het terrein zijn private garages voorzien, bereikbaar via het Rameplein, evenals fietsenbergingen met een toegang langs de Nieuwstraat.
Jouw woonwensen, jouw indeling.
Kopers krijgen de mogelijkheid om de inrichting en afwerking af te stemmen op hun eigen stijl en behoeften, in samenspraak met de bouwheer.
Villa Allegro bestaat uit volgende entiteiten :
- Gelijkvloers: 275 m² handelsruimte - VERKOCHT
- 1° Verdiep (1.1): 160 m² + 34 m² terrassen – 3 slpk – 2bdk - berging - VERKOCHT
- 2° Verdiep (2.1): 160 m² + 28 m² terrassen – 3 slpk – 2 bdk – berging - VERKOCHT
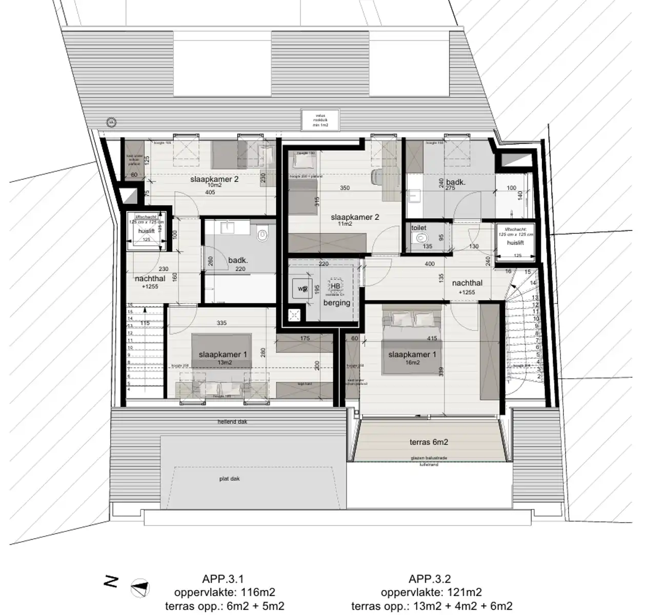
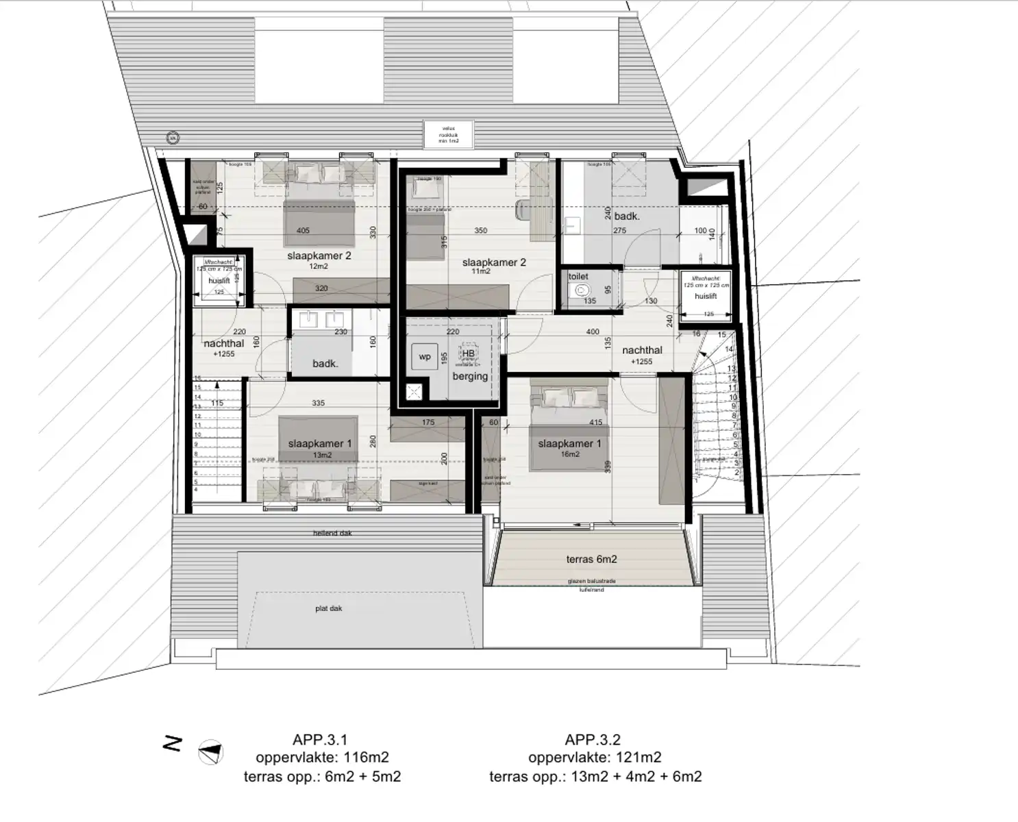
- 3° Verdiep (3.1): duplex 116 m² + 11 m² terrassen – 2 slpk – bdk – berging
- 3° Verdiep (3.2): duplex 121 m² + 23 m² terrassen – 2 slpk – bdk – berging
- 5 privatieve bergingen
- Individuele fietsenbergingen
- 6 garages + 3 autostandplaatsen
Mogelijkheid tot aankoop aan 6% btw (i.p.v. 21%), indien u voldoet aan de voorwaarden.
Meer info hierover op kantoor.
Villa Allegro is een exclusief nieuwbouwproject gelegen aan de Kortrijkstraat. Hier worden vier uitzonderlijk ruime appartementen en een handelspand gerealiseerd op een toplocatie in het centrum met winkels, horeca, cultuur, sport en openbaar vervoer op wandelafstand.
De appartementen onderscheiden zich door hun royale en doordachte indeling, grote raampartijen die overvloedig natuurlijk licht binnenlaten, en een verfijnde afwerking met uitsluitend hoogwaardige materialen, in harmonie met het luxueuze en kwalitatieve karakter van het gebouw.
De appartementen beantwoorden aan de meest recente energetische normen en zijn uitgerust met vloerverwarming op basis van een individuele warmtepomp en een ventilatiesysteem voor een gezond binnenklimaat.
Achteraan het terrein zijn private garages voorzien, bereikbaar via het Rameplein, evenals fietsenbergingen met een toegang langs de Nieuwstraat.
Jouw woonwensen, jouw indeling.
Kopers krijgen de mogelijkheid om de inrichting en afwerking af te stemmen op hun eigen stijl en behoeften, in samenspraak met de bouwheer.
Villa Allegro bestaat uit volgende entiteiten :
- Gelijkvloers: 275 m² handelsruimte - VERKOCHT
- 1° Verdiep (1.1): 160 m² + 34 m² terrassen – 3 slpk – 2bdk - berging - VERKOCHT
- 2° Verdiep (2.1): 160 m² + 28 m² terrassen – 3 slpk – 2 bdk – berging - VERKOCHT
- 3° Verdiep (3.1): duplex 116 m² + 11 m² terrassen – 2 slpk – bdk – berging
- 3° Verdiep (3.2): duplex 121 m² + 23 m² terrassen – 2 slpk – bdk – berging
- 5 privatieve bergingen
- Individuele fietsenbergingen
- 6 garages + 3 autostandplaatsen
Mogelijkheid tot aankoop aan 6% btw (i.p.v. 21%), indien u voldoet aan de voorwaarden.
Meer info hierover op kantoor.
Energie
Op de kaart

Financieel
| Prijs |
|---|
Berekening kosten
Je aankoopkosten? Die heb je snel berekend via de knop hieronder.
Bijkomende info
Gebouw
| Bouwjaar | 2025 |
|---|---|
| Bewoonbaar (m²) | 116 |
| Gevels | 2 |
| Badkamers | 1 |
| Slaapkamers | 2 |
| Parkeerplaatsen | 0 |
Faciliteiten
| Type vloer | |
|---|---|
| Keuken uitrusting | Luxueus uitgerust |
Perceel
| Voorkeurrecht | Nee |
|---|---|
| Tuin oppervlakte (m²) | 0 |
Vergunning
| Vergunning | Vergunning beschikbaar |
|---|---|
| Verkavelingsvergunning | Geen beschikbaar |
| Bouwovertreding | Geen |
| Bouwovertreding dagvaardiging | Geen |
Uitrusting
| Parking | Nee |
|---|---|
| Garage | Nee |
| Tuin | Nee |
| Terras | Ja |
| Videofoon | Ja |