> Te koop > Tielt > Huis > Nieuw te bouwen alleenstaande woning te Tielt.
Nieuw

Nieuw te bouwen alleenstaande woning te Tielt.

€ 545.298

8700 Tielt

Een pand van Your Home

Volledige aanbod

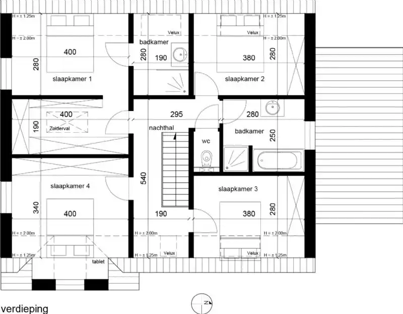
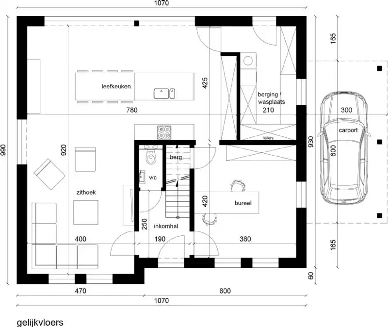
Overzicht


  • 4 Slaapkamer(s)
  • 2 Badkamer(s)
  • 2 Toilet(ten)
  • 1 Living(s)

Beschrijving


Zie je jezelf al staan voor deze voorbeeldwoning? Perfect. Wij luisteren naar jouw behoeftes en budget én ontwerpen zo een woning op maat. Dat klopt, deze woning is volledig te personaliseren volgens eigen stijl. Geen vaststaand ontwerp, wel een eigen thuis die kadert binnen jouw budget. Wij helpen je met onze expertise en kennis zodat jouw wooncomfort niet te kort schiet.

Begint het ook al te kriebelen? Neem dan gerust contact op voor meer informatie.

Mail naar aanvraag@yourhome.be of bel 056 755 788

Referentie: YH_LA_NTB_20251207_lot2

Energie


Financieel


Prijs € 545.298

Bijkomende info


Gebouw
Badkamers 2
Slaapkamers 4
Keukens 1
Leefruimtes 1
Toiletten 2

Een pand van


Your Home
Logo van makelaar: Your Home
Your Home - Samen bouwen
Your Home is een persoonlijke bouwpartner voor zij die dromen van een nieuwbouwwoning of totaalrenovatie. Wij vertalen jouw bouwdroom in een woning die perfect bij jou past. Van bouwen op maat tot totaalrenovatie, het kan allemaal!
Logo van makelaar: Your Home
1103531
Nieuw te bouwen alleenstaande woning te Tielt. foto {{pictureIndex}}

Nieuw te bouwen alleenstaande woning te Tielt.

€ 545.298

8700 Tielt

Bezoek het pand

Vul jouw contactgegevens hieronder in en de makelaar contacteert je.

Leer meer over vastgoed

Nieuw
23 March 2026
Op Spotto zoeken als een pro: 10 slimme tips
01 March 2026
Wanneer heb ik een bouwvergunning of omgevingsvergunning nodig?
17 February 2026
Hoe breng ik een bod uit op een woning?
24 November 2025
Uitgezocht voor jouw gemeente: Hoeveel stijgt de waarde van je woning door een renovatie?