Appartement op het tweede verdiep met groot terras.
 € 255.000  
Een pand van IMMO CASA
Overzicht
- 77 m² bewoonbaar
 - 77 m² grond
 - 1 Slaapkamer(s)
 - 1 Badkamer(s)
 - 1 Toilet(ten)
 
Beschrijving
Mogelijkheid aankoop aan 6% BTW tarief!
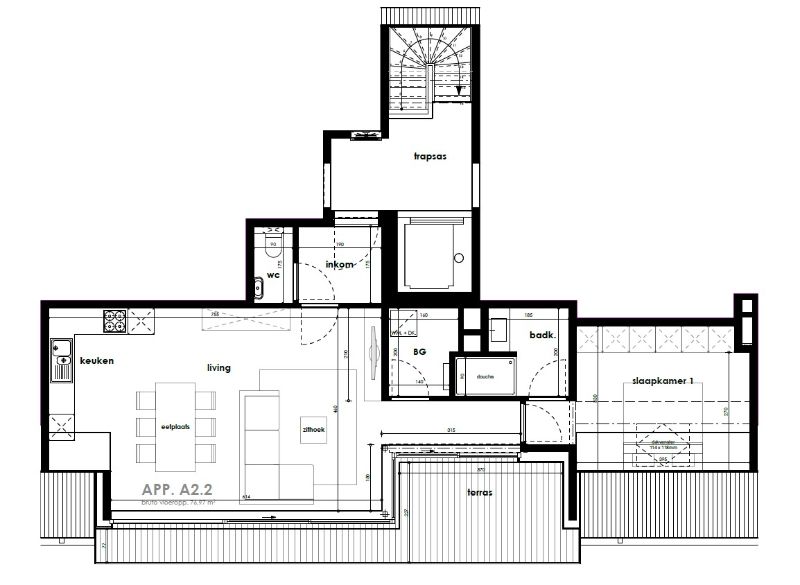
Dit energiezuinig appartement is gelegen in de Kapellestraat op het tweede, bovenste verdiep en geniet van een groot terras met een totale terrasoppervlakte van 15,42m2.
Indeling:
Inkomhal met gastentoilet. Na de inkomhal komt u binnen in de ruime leefruimte met open keuken en aparte berging.
Dankzij de grote raampartijen is er sprake van veel natuurlijk lichtinval. Luxe en wooncomfort staan hierbij op de voorgrond.
Verder is er de slaapkamer met rechtstreeks toegang naar de badkamer.
Op alle appartementen zijn zonnepanelen aangesloten.
Het appartement wordt afgewerkt opgeleverd, waarbij u als koper de materialen nog zelf mag bepalen.
Oppervlakte appartement: 76,97m2.
Dit energiezuinig appartement is gelegen in de Kapellestraat op het tweede, bovenste verdiep en geniet van een groot terras met een totale terrasoppervlakte van 15,42m2.
Indeling:
Inkomhal met gastentoilet. Na de inkomhal komt u binnen in de ruime leefruimte met open keuken en aparte berging.
Dankzij de grote raampartijen is er sprake van veel natuurlijk lichtinval. Luxe en wooncomfort staan hierbij op de voorgrond.
Verder is er de slaapkamer met rechtstreeks toegang naar de badkamer.
Op alle appartementen zijn zonnepanelen aangesloten.
Het appartement wordt afgewerkt opgeleverd, waarbij u als koper de materialen nog zelf mag bepalen.
Oppervlakte appartement: 76,97m2.
Energie
- EPC Certificaat: EPB-regelgeving
 - E-peil: E30
 - Beglazing: Onbekend
 
Op de kaart

Financieel
| Prijs | 
|---|
Bijkomende info
Gebouw
| Bouwjaar | 2023 | 
|---|---|
| Staat | Nieuw | 
| Bewoonbaar (m²) | 77 | 
| Verdieping | 2 | 
| Badkamers | 1 | 
| Slaapkamers | 1 | 
| Verdiepingen | 2 | 
| Garages | 0 | 
| Parkeerplaatsen | 0 | 
| Toiletten | 1 | 
Faciliteiten
| Septische tank | Nee | 
|---|
Perceel
| Totale oppervlakte (m²) | 77 | 
|---|---|
| Bebouwde oppervlakte (m²) | 0 | 
| Oppervlakte terras (m²) | 15 | 
Vergunning
| Verkavelingsvergunning | Geen beschikbaar | 
|---|
Uitrusting
| Investeringspand | Nee | 
|---|---|
| Parking | Nee | 
| Garage | Nee | 
| Opslagruimte | Ja | 
| Terras | Ja | 
| Lift | Ja | 
| Rioolaansluiting | Ja | 
| Gasaansluiting | Ja | 
| Wateraansluiting | Ja | 
| Elektriciteitsaansluiting | Ja | 
| Internetaansluiting | Ja | 
| Telefoonaansluiting | Ja | 
| Zonnepanelen | Ja | 
| Zonneboiler | Nee | 
| Alarm | Nee | 
| Videofoon | Ja | 
| Grondwaterput | Ja | 
Appartementsblok
| Aantal verdiepingen | 2 | 
|---|---|
| Lift | Ja | 
| Intercom | Nee | 
Een pand van
IMMO CASA
 Uw Partner in Vastgoed! 
 3 vestigingen, dezelfde visie!
Doorheen de jaren is Immo Casa verder uitgegroeid. U kan ons zowel vinden in Ingelmunster, Harelbeke en Hooglede.  Voor de klant enkel maar voordelen! Enerzijds genieten wij zo van een ruimer klantenbestand en verloopt de zoektocht  naar een potentiële koper vlotter. Ook naar u toe stellen wij ons flexibel op. Zo spreken we steeds af in het dichtsbijzijnde kantoor. 
Ons team: Veerle, Dylan, Julie en Karen is klein maar fijn met heel wat pit en potentieel. 
Samen 1 team en 1 visie om de klant elke dag het beste van onszelf te geven. Bij ons ben je geen nummer maar een persoon!
 
 MEUL/KAPE25/A2.2C 
Leer meer over vastgoed
 Nieuw 
 22 October 2025 
Hoeveel kan ik lenen om een huis te kopen?
 11 June 2025 
Huis kopen met bouwovertreding? Dit moet je weten
 11 May 2025 
Renoveren? Vraag je Mijn VerbouwPremie aan
 22 April 2025