> Te koop > Meulebeke > Huis > Nieuw te bouwen alleenstaande woning te Meulebeke.

Nieuw te bouwen alleenstaande woning te Meulebeke.

€ 549.475

8760 Meulebeke

Een pand van Your Home

Volledige aanbod

Overzicht


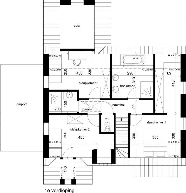
  • 3 Slaapkamer(s)
  • 2 Badkamer(s)
  • 3 Toilet(ten)
  • 1 Living(s)

Beschrijving


Wist je dat wij je richting geven met onze voorbeeldwoningen, maar dat je alles nog kan veranderen naargelang stijl en eigen wens? Naast de esthetische, architecturale kant geven wij je ook kennis mee van het hedendaagse wooncomfort. Want Your Home, dat is samen bouwen.

Wil je graag alles eens persoonlijk overlopen? Neem gerust eens contact op met ons. Wij helpen je graag verder.

Mail naar aanvraag@yourhome.be of bel 056 755 788

Tip: Bezoek onze Kijkwoning na afspraak (zie www.yourhome.be/kijkwoning).

Referentie: YH_LA_NTB_20250607

Energie


Financieel


Prijs € 549.475

Bijkomende info


Gebouw
Badkamers 2
Slaapkamers 3
Keukens 1
Leefruimtes 1
Toiletten 3

Een pand van


Your Home
Logo van makelaar: Your Home
Your Home - Samen bouwen
Your Home is een persoonlijke bouwpartner voor zij die dromen van een nieuwbouwwoning of totaalrenovatie. Wij vertalen jouw bouwdroom in een woning die perfect bij jou past. Van bouwen op maat tot totaalrenovatie, het kan allemaal!
Logo van makelaar: Your Home
1092817
Nieuw te bouwen alleenstaande woning te Meulebeke. foto {{pictureIndex}}

Nieuw te bouwen alleenstaande woning te Meulebeke.

€ 549.475

8760 Meulebeke

Bezoek het pand

Vul jouw contactgegevens hieronder in en de makelaar contacteert je.

Leer meer over vastgoed

11 June 2025
Huis kopen met bouwovertreding? Dit moet je weten
11 May 2025
Renoveren? Vraag je Mijn VerbouwPremie aan
22 April 2025
Je allereerste renovatieproject selecteren én budgetteren: met de praktische hulp van Spotto
17 February 2025
Levenslang wonen: slaapkamer inrichten voor nieuwe invulling