Samengevoegde casco handelsruimte met hoekligging – Residentie ROMÉE
Een pand van HOMIÉS
Favoriet
Jouw zoektocht
Jouw scoretabel voor dit pand
Aan het laden...
Jouw geplande bezichtigingen
Aan het laden...
Overzicht
- 115 m² bewoonbaar
- 115 m² grond
Beschrijving
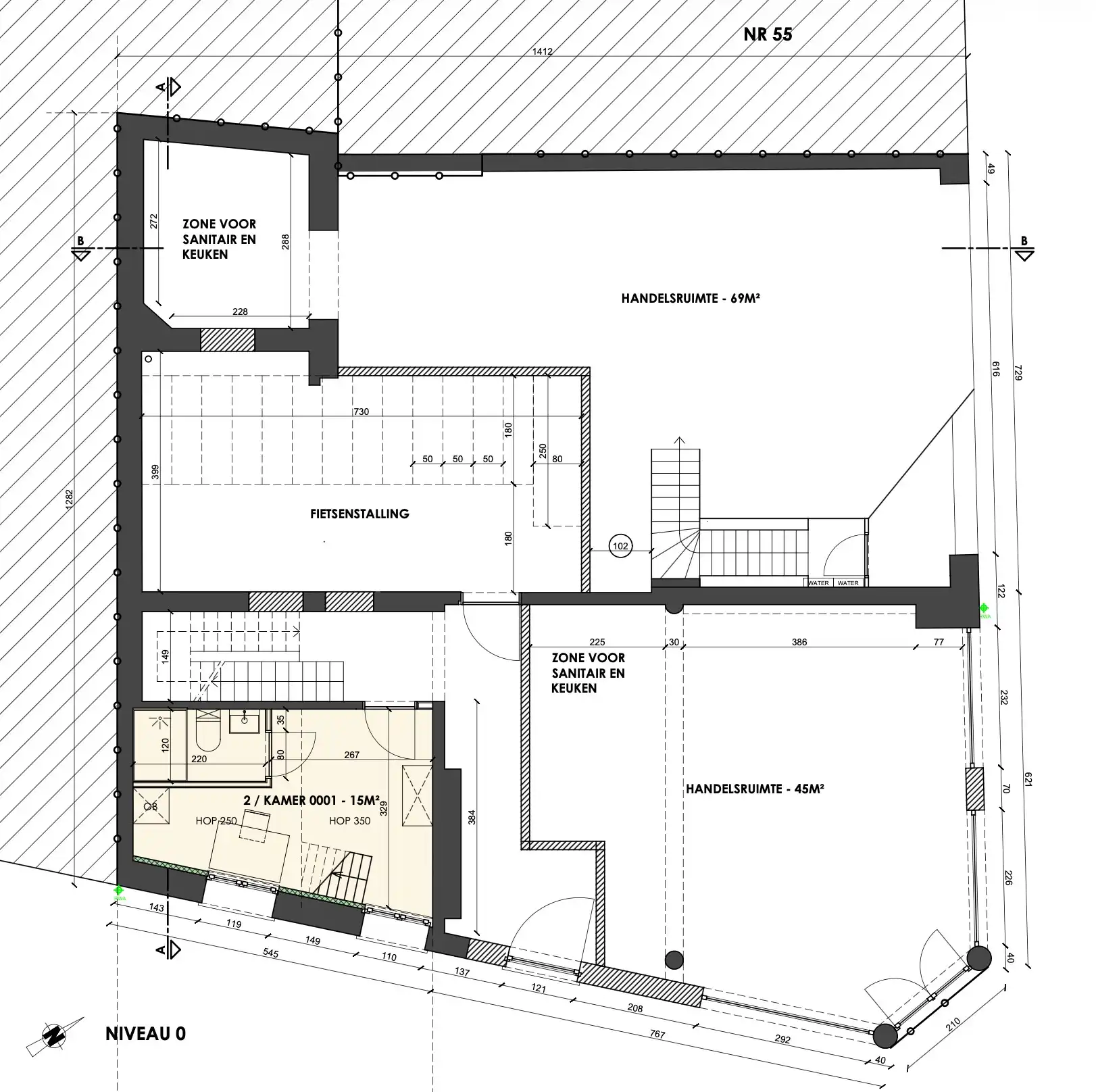
Op een absolute toplocatie, in de kwalitatieve residentie ROMÉE, bevindt zich deze ruime commerciële handelsruimte in het hart van Leuven. Door de combinatie van twee panden (nr. 51 en nr. 53) ontstaat een totale oppervlakte van ca. 115 m², ideaal voor ondernemers die op zoek zijn naar meer ruimte en flexibiliteit. Dankzij de strategische ligging, met onder andere een hoekpositie, geniet het pand van uitstekende visibiliteit en een sterke passage, wat het tot een bijzonder aantrekkelijke uitvalsbasis maakt voor diverse commerciële activiteiten. De ruimte wordt casco aangeboden, waarbij de afwerking en inrichting in overleg kunnen gebeuren. Dit biedt de mogelijkheid om het geheel volledig af te stemmen op uw concept en noden, of het nu gaat om retail, dienstverlening of horeca. Een bijkomende troef is de toekomstige heraanleg van de omgeving tot een aangenaam wandelgebied, wat de commerciële aantrekkingskracht en passage nog verder zal versterken. Gelegen in een modern en verzorgd gebouw biedt residentie ROMÉE een professionele en hedendaagse uitstraling, wat bijdraagt aan een sterke eerste indruk bij klanten. Kortom, een unieke kans om uw zaak te vestigen op een strategische en dynamische locatie in Leuven, met maximale visibiliteit, ruimte en groeipotentieel. Neem gerust contact op voor meer informatie of een bezoek ter plaatse via info@homies.be!
Energie
- E-peil: E0
- Beglazing: Onbekend
Op de kaart

Financieel
| Prijs | |
|---|---|
| Maandelijkse kosten | € 0 |
Bijkomende info
Gebouw
| Renovatie jaar | 2026 |
|---|---|
| Bewoonbaar (m²) | 115 |
| Verdieping | 0 |
| Badkamers | 0 |
| Slaapkamers | 0 |
| Verdiepingen | 2 |
| Garages | 0 |
| Parkeerplaatsen | 0 |
| Toiletten | 0 |
Faciliteiten
| Septische tank | Nee |
|---|
Perceel
| Totale oppervlakte (m²) | 115 |
|---|---|
| Bebouwde oppervlakte (m²) | 0 |
Vergunning
| Verkavelingsvergunning | Geen beschikbaar |
|---|
Uitrusting
| Investeringspand | Nee |
|---|---|
| Parking | Nee |
| Garage | Nee |
| Lift | Nee |
| Rioolaansluiting | Nee |
| Gasaansluiting | Nee |
| Wateraansluiting | Nee |
| Elektriciteitsaansluiting | Nee |
| Internetaansluiting | Nee |
| Telefoonaansluiting | Nee |
| Zonnepanelen | Nee |
| Zonneboiler | Nee |
| Alarm | Nee |
| Videofoon | Nee |
| Grondwaterput | Nee |
Appartementsblok
| Aantal verdiepingen | 2 |
|---|---|
| Lift | Nee |
| Intercom | Nee |
Een pand van
HOMIÉS
An eye for immo
HOMIÉS is een gerenommeerde speler op de Leuvense vastgoedmarkt die zich specialiseert in kwalitatieve residentiële eigendommen, investerings- en studentenvastgoed. Het kantoor is centraal gelegen in het hartje van Leuven, op de hoek van de Brusselsestraat en de Fonteinstraat. Een jong en dynamisch team zorgt voor een professionele, vlotte en vriendelijke service. De kwaliteit van onze expertise, onze persoonlijke aanpak en doorgedreven service zullen u aangenaam verrassen. Open communicatie met ons cliënteel is voor ons uiterst belangrijk. Neem gerust contact op met ons voor vrijblijvend advies of een gratis schatting van uw vastgoed.
Voor ons vast cliënteel zijn wij dringend op zoek naar kwalitatieve eigendommen. Overweegt u uw vastgoed te verkopen, dan is HOMIÉS uw ideale partner!
H_Brusselsestraat 51-53_3000 Leuven
Leer meer over vastgoed
04 January 2026
Zoek je een kantoor, een magazijn of… iets ertussenin? Bedrijfsvastgoed uitgelegd
05 November 2024
Bedrijfsvastgoed in transitie: ontdek de toekomst van werkplekken
16 October 2024
Opbrengsteigendom: een slim pad naar passief inkomen en vermogensgroei
09 September 2024