Casco handelspand te huur – Residentie ROMÉE, Leuven
€ 2.050
Een pand van HOMIÉS
Favoriet
Jouw zoektocht
Jouw scoretabel voor dit pand
Aan het laden...
Jouw geplande bezichtigingen
Aan het laden...
Overzicht
- 70 m² bewoonbaar
- 70 m² grond
Beschrijving
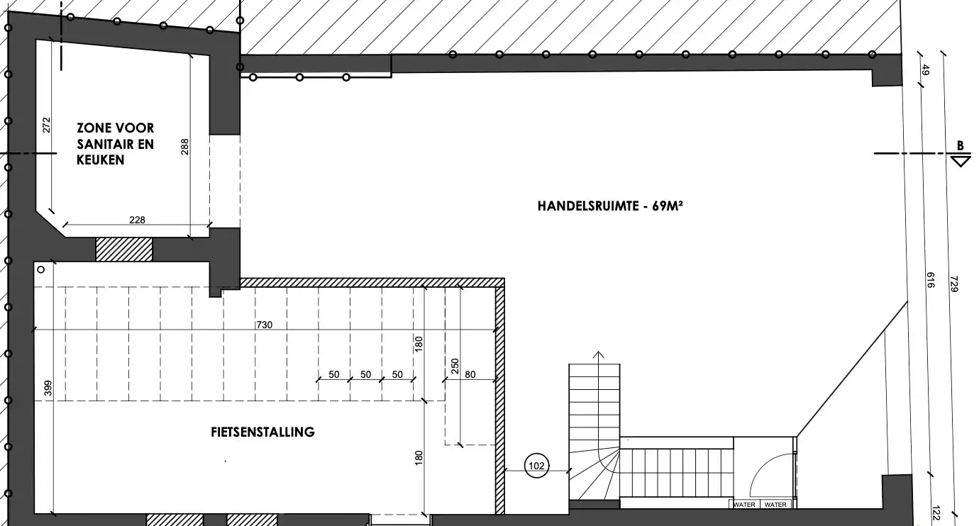
Op een absolute toplocatie, in de kwalitatieve residentie ROMÉE, bevindt zich dit commercieel handelspand in het hart van Leuven. Dankzij de centrale ligging geniet het pand van een mooie passage en visibiliteit, wat het tot een interessante uitvalsbasis maakt voor ondernemers. Het pand heeft een oppervlakte van ca. 70 m² en wordt casco aangeboden, waarbij de afwerking en inrichting in overleg kunnen gebeuren. Dit biedt de mogelijkheid om de ruimte volledig af te stemmen op uw concept en noden. Een bijkomende troef is de toekomstige heraanleg van de omgeving tot een aangenaam wandelgebied, wat de commerciële aantrekkingskracht en passage nog verder zal versterken. Daarnaast bestaat de mogelijkheid om dit pand te combineren met het naastgelegen pand (nr. 51), waardoor een grotere handelsruimte kan worden gecreëerd. Kortom, een interessante opportuniteit om uw zaak te vestigen op een strategische locatie in Leuven, met goede visibiliteit en groeipotentieel. Neem gerust contact op voor meer informatie of een bezoek ter plaatse via info@homies.be!
Energie
![]() |
- Energieverbruik: 200 kWh/m²/jaar
- E-peil: E0
- Beglazing: Onbekend
Op de kaart

Financieel
| Prijs | |
|---|---|
| Maandelijkse kosten | € 0 |
Bijkomende info
Gebouw
| Renovatie jaar | 2026 |
|---|---|
| Bewoonbaar (m²) | 70 |
| Verdieping | 0 |
| Badkamers | 0 |
| Slaapkamers | 0 |
| Verdiepingen | 2 |
| Garages | 0 |
| Parkeerplaatsen | 0 |
| Toiletten | 0 |
Faciliteiten
| Septische tank | Nee |
|---|
Perceel
| Totale oppervlakte (m²) | 70 |
|---|---|
| Bebouwde oppervlakte (m²) | 0 |
Vergunning
| Verkavelingsvergunning | Geen beschikbaar |
|---|
Uitrusting
| Investeringspand | Nee |
|---|---|
| Parking | Nee |
| Garage | Nee |
| Lift | Nee |
| Rioolaansluiting | Nee |
| Gasaansluiting | Nee |
| Wateraansluiting | Nee |
| Elektriciteitsaansluiting | Nee |
| Internetaansluiting | Nee |
| Telefoonaansluiting | Nee |
| Zonnepanelen | Nee |
| Zonneboiler | Nee |
| Alarm | Nee |
| Videofoon | Nee |
| Grondwaterput | Nee |
Appartementsblok
| Aantal verdiepingen | 2 |
|---|---|
| Lift | Nee |
| Intercom | Nee |
Een pand van
HOMIÉS
An eye for immo
HOMIÉS is een gerenommeerde speler op de Leuvense vastgoedmarkt die zich specialiseert in kwalitatieve residentiële eigendommen, investerings- en studentenvastgoed. Het kantoor is centraal gelegen in het hartje van Leuven, op de hoek van de Brusselsestraat en de Fonteinstraat. Een jong en dynamisch team zorgt voor een professionele, vlotte en vriendelijke service. De kwaliteit van onze expertise, onze persoonlijke aanpak en doorgedreven service zullen u aangenaam verrassen. Open communicatie met ons cliënteel is voor ons uiterst belangrijk. Neem gerust contact op met ons voor vrijblijvend advies of een gratis schatting van uw vastgoed.
Voor ons vast cliënteel zijn wij dringend op zoek naar kwalitatieve eigendommen. Overweegt u uw vastgoed te verkopen, dan is HOMIÉS uw ideale partner!
H_Brusselsestraat 53_3000 Leuven
Leer meer over vastgoed
04 January 2026
Zoek je een kantoor, een magazijn of… iets ertussenin? Bedrijfsvastgoed uitgelegd
05 November 2024
Bedrijfsvastgoed in transitie: ontdek de toekomst van werkplekken
16 October 2024
Opbrengsteigendom: een slim pad naar passief inkomen en vermogensgroei
09 September 2024
