Uw zaak uitbaten in dé Diestsestraat te Leuven
Een pand van Century 21 Connect
Overzicht
- 100 m² bewoonbaar
Beschrijving
Op zoek naar een gerenoveerde commerciële ruimte genietende van passage en zichtbaarheid dan kan deze gelijkvloerse handelsruimte in residentie Adéline u vast bekoren. Dit pand is op zoek naar een ondernemer die zijn droom wil waarmaken en een fantastische zaak wil uitbouwen of wieweet zelfs uitbreiden. Je kan dit pand vinden in dé Diestsestraat gekend om zijn centrale ligging en combinatie aan winkelpanden, speciaalzaken en horeca. Het pand zelf heeft een moderne en hedendaagse uitstraling en is wachtende op een uitbater die het pand verder volgens eigen smaak en wens zal afwerken.
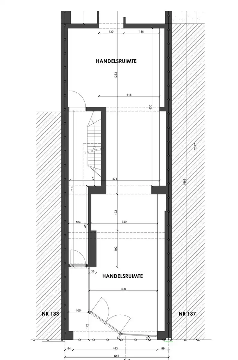
Handelsgelijkvloers ongeveer 70m² + stockage in kelder 30m²
Meer informatie of een bezoek ter plaatse? Met plezier!
Contacteer onze Vastgoedmakelaar Jacky: jacky@connect-immo.be - 0495 53 46 49.
Handelsgelijkvloers ongeveer 70m² + stockage in kelder 30m²
Meer informatie of een bezoek ter plaatse? Met plezier!
Contacteer onze Vastgoedmakelaar Jacky: jacky@connect-immo.be - 0495 53 46 49.
Energie
Op de kaart

Downloads
Financieel
| Prijs |
|---|
Bijkomende info
Gebouw
| Staat | Zo goed als nieuw |
|---|---|
| Bewoonbaar (m²) | 100 |
| Verdieping | 0 |
| Gevels | 2 |
| Badkamers | 0 |
| Slaapkamers | 0 |
| Parkeerplaatsen | 0 |
Faciliteiten
| Type vloer |
|---|
Perceel
| Tuin oppervlakte (m²) | 0 |
|---|
Vergunning
| Vergunning | Geen beschikbaar |
|---|---|
| Verkavelingsvergunning | Geen beschikbaar |
Uitrusting
| Parking | Nee |
|---|---|
| Garage | Nee |
| Tuin | Nee |
| Terras | Nee |
| Wateraansluiting | Ja |
| Elektriciteitsaansluiting | Ja |
| Telefoonaansluiting | Ja |
Een pand van
Century 21 Connect
Uw vastgoedmakelaar gelegen in hartje Leuven
Century 21 CONNECT heeft bijna 20 jaar ervaring in vastgoed en is uw betrouwbaar vastgoedkantoor in het hartje van Leuven. Het kantoor is gelegen op het Herbert Hooverplein en is onder leiding van Ilse Temmerman en Céline De Lathauwer.
Steeds welkom bij ons op kantoor of geef ons een belletje!
Tot binnenkort!
6958476
Leer meer over vastgoed
04 January 2026
Zoek je een kantoor, een magazijn of… iets ertussenin? Bedrijfsvastgoed uitgelegd
05 November 2024
Bedrijfsvastgoed in transitie: ontdek de toekomst van werkplekken
16 October 2024
Opbrengsteigendom: een slim pad naar passief inkomen en vermogensgroei
09 September 2024