Woning met 4 slaapkamers te koop
€ 375.000
Een pand van Multimmo
Overzicht
- 211 m² bewoonbaar
- 178 m² grond
- 4 Slaapkamer(s)
- 1 Badkamer(s)
- 2 Toilet(ten)
- 1 Tuin
Beschrijving
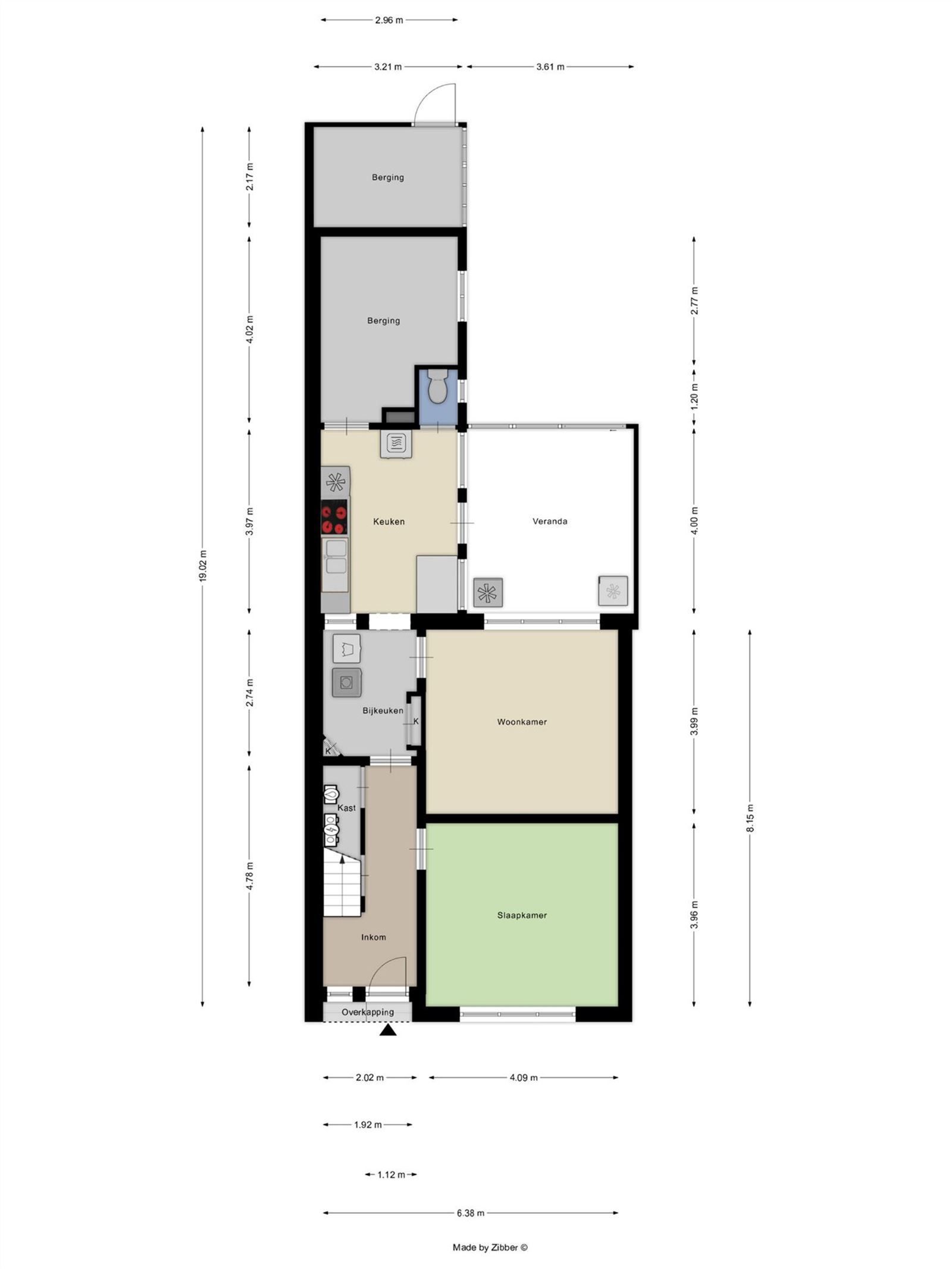
Gelijkvloers
Inkomhal 4,8m x 2,0m = 9,7m²
Living 4,0m x 4,1m = 16,2m²
Eetkamer 4,0m x 4,1m = 16,3m²
Bijkeuken 2,7m x 1,9m = 5,3m²
Keuken 4,0m x 3,2m = 12,7m²
Berging 4,0m x 3,2m = 12,9m²
Berging 2,2m x 3,2m = 7,0m²
Veranda 4,0m x 3,6m = 14,4m²
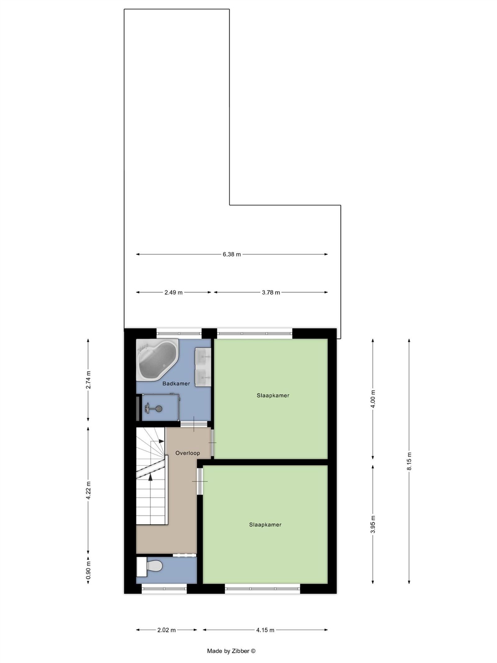
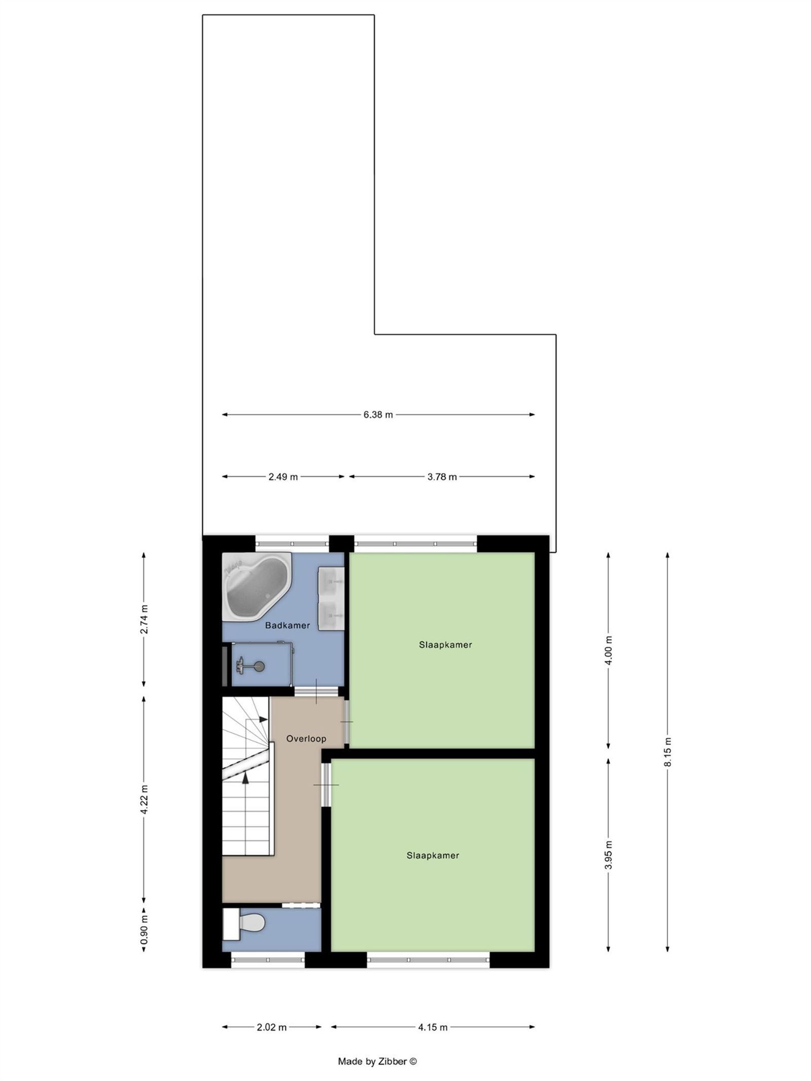
Tweede verdieping
Nachthal 4,2m x 2,0m = 8,5m²
Slaapkamer 4,0m x 4,2m = 16,4m²
Slaapkamer 4,0m x 3,8m = 15,1m²
Badkamer 2,7m x 2,5m = 6,8m²
WC ,9m x 2,0m = 1,8m²
Derde verdieping
Nachthal 5,2m x 2,3m = 12,3m²
Slaapkamer 3,4m x 3,9m = 13,4m²
Slaapkamer 4,0m x 3,5m = 13,9m²
Berging 2,8m x 2,8m = 7,6m²
Energie
![]() |
- EPC Certificaat: 3671367
- Energieverbruik: 293 kWh/m²/jaar
- E-peil: E0
- Verwarming: Gas
- Beglazing: Standaard dubbel
Op de kaart

Financieel
| Prijs | |
|---|---|
| Kadastraal inkomen (niet geïndexeerd) | € 785 |
| Kadastraal inkomen (geïndexeerd) | € 0 |
Berekening kosten
Je aankoopkosten? Die heb je snel berekent via de knop hieronder.
Bijkomende info
Gebouw
| Bouwjaar | 1957 |
|---|---|
| Staat | Zo goed als nieuw |
| Bouwcertificaat | Nee |
| Bewoonbaar (m²) | 211 |
| Verdieping | 0 |
| Gevelbreedte | 7 |
| Badkamers | 1 |
| Slaapkamers | 4 |
| Verdiepingen | 3 |
| Garages | 0 |
| Parkeerplaatsen | 0 |
| Doucheruimtes | 0 |
| Toiletten | 2 |
Faciliteiten
| Keuken uitrusting | Standaard |
|---|---|
| Materiaal ramenomlijstingen | PVC |
| Beglazing | Standaard dubbel |
| Brandstof primaire verwarming | Gas |
| Elektrisch keuringsattest | Nee |
Perceel
| Diepte (m) | 25 |
|---|---|
| Breedte (m) | 7 |
| Overstromingsgevoelig | Geen |
| P-score | A |
| G-score | A |
| Voorkeurrecht | Nee |
| Totale oppervlakte (m²) | 178 |
| Bebouwde oppervlakte (m²) | 113 |
| Tuin oppervlakte (m²) | 57 |
| Oppervlakte terras (m²) | 57 |
| Oriëntatie tuin | Zuid |
Vergunning
| Vergunning | Vergunning beschikbaar |
|---|---|
| Verkavelingsvergunning | Geen beschikbaar |
Uitrusting
| Investeringspand | Nee |
|---|---|
| Geschikt voor praktijk | Nee |
| Parking | Nee |
| Garage | Nee |
| Thuiskantoor | Nee |
| Kelder | Nee |
| Zolder | Ja |
| Tuin | Ja |
| Terras | Ja |
| Lift | Nee |
| Rioolaansluiting | Ja |
| Gasaansluiting | Ja |
| Wateraansluiting | Ja |
| Elektriciteitsaansluiting | Ja |
| TV aansluiting | Ja |
| Internetaansluiting | Ja |
| Telefoonaansluiting | Ja |
Een pand van
Multimmo
Vastgoedkantoor
Multimmo werd in 2000 opgericht door Olivier Degreef en Filip Derkinderen. Een brede ploeg van medewerkers deelt graag zijn ervaring met u. Dankzij onze sterke verbondenheid met en kennis van de regio voelen we goed aan hoe we uw woning het best in de markt zetten.
Ons ruime aanbod trekt sowieso veel kopers en huurders aan. U vindt ons aanbod terug op www.multimmo.be
TERNATSTRAAT 44 TERNAT
Leer meer over vastgoed
Nieuw
24 November 2025
Uitgezocht voor jouw gemeente: Hoeveel stijgt de waarde van je woning door een renovatie?
22 October 2025
Hoeveel kan ik lenen om een huis te kopen?
11 June 2025
Huis kopen met bouwovertreding? Dit moet je weten
11 May 2025
