Luxe studentenkamer met eigen sanitair
€ 245.000
3001 Heverlee
Een pand van Janssen en Janssen
Overzicht
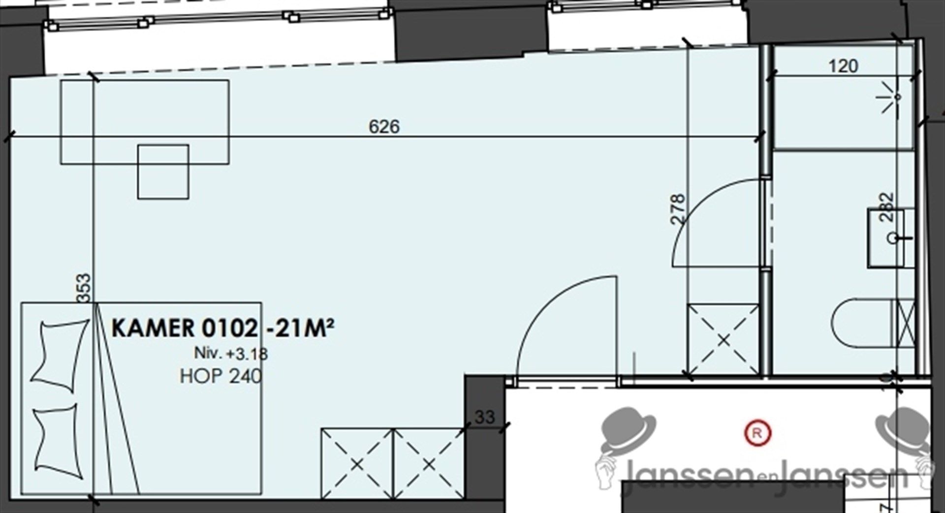
- 21 m² bewoonbaar
- 1 Slaapkamer(s)
- 1 Badkamer(s)
- 1 Toilet(ten)
Beschrijving
Welkom in deze luxe studentenkamer in het hart van Heverlee, ideaal voor wie op zoek is naar een combinatie van rust en studeren. Deze ruime studentenkamer heeft een bewoonbare oppervlakte van 21m² en is hoogwaardig ingericht.
Bij binnenkomst treft u een lichte en uitnodigende ruimte, met strakke moderne afwerkingen die een echt thuisgevoel creëren. Deze luxe kamer heeft ook toegang tot het gemeenschappelijk terras.
De slaapkamer is praktisch ingericht met voldoende opbergruimte en biedt directe toegang tot een stijlvolle badkamer met moderne voorzieningen waarmee u een moment van ontspanning krijgt na een lange dag.
Koken kan je doen in de gemeenschappelijke keuken die uitgerust is van alle comfort. De kamer beschikt ook over een ontbijtblok uitegrust met frigi en microgolfoven.
Een luchtje scheppen kan je in de prive tuin achteraan. De fietsenstalling is bereikbaar vanuit de inkomruimte.
Gelegen in een rustige buurt, maar toch dicht bij alle nodige voorzieningen, biedt deze Luxe studentenkamer het beste van beide werelden. Dichtbij Campus Heverlee, Ku Leueven en Imec.
Het station van Heverlee is op wandelafstand.
Interesse? Stuur dan snel een mail naar Johanjacobs@janssenenjanssen.be of neem contact op via het nummer 0497/44 04 10.
De verkoopprijs is exclusief alle taxen, registratierechten etc.
Energie
![]() |
- E-peil: E0
- Beglazing: Hoog efficient driedubbel
Financieel
| Prijs | |
|---|---|
| Kadastraal inkomen (niet geïndexeerd) | € 0 |
| Kadastraal inkomen (geïndexeerd) | € 0 |
Bijkomende info
Gebouw
| Staat | Nieuw |
|---|---|
| Bouwcertificaat | Nee |
| Bewoonbaar (m²) | 21 |
| Verdieping | 1 |
| Badkamers | 1 |
| Slaapkamers | 1 |
| Verdiepingen | 0 |
| Garages | 0 |
| Parkeerplaatsen | 0 |
| Doucheruimtes | 0 |
| Toiletten | 1 |
Faciliteiten
| Materiaal ramenomlijstingen | Aluminium |
|---|---|
| Beglazing | Hoog efficient driedubbel |
| Elektrisch keuringsattest | Nee |
Perceel
| Overstromingsgevoelig | Geen |
|---|---|
| Voorkeurrecht | Ja |
| Bebouwde oppervlakte (m²) | 0 |
| Tuin oppervlakte (m²) | 0 |
| Oppervlakte terras (m²) | 0 |
Vergunning
| Vergunning | Vergunning beschikbaar |
|---|---|
| Verkavelingsvergunning | Geen beschikbaar |
Uitrusting
| Investeringspand | Nee |
|---|---|
| Geschikt voor praktijk | Nee |
| Parking | Nee |
| Garage | Nee |
| Thuiskantoor | Nee |
| Kelder | Nee |
| Zolder | Nee |
| Tuin | Nee |
| Terras | Nee |
| Lift | Nee |
| Rioolaansluiting | Nee |
| Gasaansluiting | Nee |
| Wateraansluiting | Nee |
| Elektriciteitsaansluiting | Nee |
| TV aansluiting | Nee |
| Internetaansluiting | Nee |
| Telefoonaansluiting | Nee |
Appartementsblok
| Lift | Nee |
|---|
