Nieuw Virtual tour
Woning met 4 slaapkamers in Heverlee! – EPC 405 kWh/m² - bewoonbare opp. 150 m²
€ 345.000
Een pand van Marnix Vastgoed
Overzicht
- 150 m² bewoonbaar
- 4 Slaapkamer(s)
- 1 Badkamer(s)
- 1 Toilet(ten)
- 1 Living(s)
Beschrijving
Deze op te frissen woning is gelegen in Heverlee en biedt tal van mogelijkheden.
Indeling:
We betreden de woning via de inkomhal met plaats voor vestiaire. Links van de inkomhal bevindt zich de woonkamer en eetkamer, aansluitend vinden we de ruime geïnstalleerde keuken. Op deze verdieping vinden we ook nog de badkamer met ligbad, enkel lavabo en toilet alsook een gastentoilet.
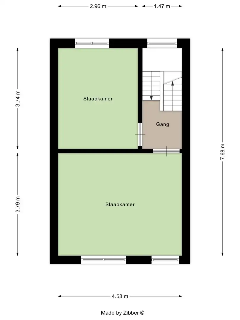
Via de trap bereiken we de eerste verdieping. Hier bevindt zich de 1ste slaapkamer van 17m². Verder vinden we de 2de slaapkamer van 11m².
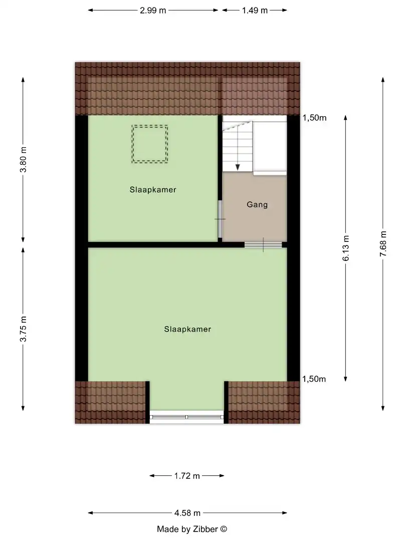
Op de tweede verdieping vinden we de zolder met vaste trap. Hier bevinden zich nog 2 ruime slaapkamers van 17m² en 11m².
Tot slot is er een ruime en droge kelder voor stockage.
Elektriciteit is niet conform. EPC E. Verwarming op aardgas. Niet-asbestveilig.
Voor meer info of een bezoek ter plaatste, mag u ons steeds contacteren!
Indeling:
We betreden de woning via de inkomhal met plaats voor vestiaire. Links van de inkomhal bevindt zich de woonkamer en eetkamer, aansluitend vinden we de ruime geïnstalleerde keuken. Op deze verdieping vinden we ook nog de badkamer met ligbad, enkel lavabo en toilet alsook een gastentoilet.
Via de trap bereiken we de eerste verdieping. Hier bevindt zich de 1ste slaapkamer van 17m². Verder vinden we de 2de slaapkamer van 11m².
Op de tweede verdieping vinden we de zolder met vaste trap. Hier bevinden zich nog 2 ruime slaapkamers van 17m² en 11m².
Tot slot is er een ruime en droge kelder voor stockage.
Elektriciteit is niet conform. EPC E. Verwarming op aardgas. Niet-asbestveilig.
Voor meer info of een bezoek ter plaatste, mag u ons steeds contacteren!
Energie
![]() |
- EPC Certificaat: 20260305-0003817488-RES-1
- Verwarming: Gas
- Beglazing: Standaard dubbel
Let op, de renovatieverplichting in Vlaanderen verplicht de koper om deze woning na aankoop te renoveren tot een betere energieprestatie. Lees er alles over in dit artikel
Extra budget nodig voor je renovatie?
De overheid helpt je dit pand energetisch te renoveren! Hieronder zie je het premiebedrag dat je mogelijks van de overheid krijgt.
Het huidige EPC-label is:

Op de kaart

Financieel
| Prijs | |
|---|---|
| Kadastraal inkomen (niet geïndexeerd) | € 535 |
Berekening kosten
Je aankoopkosten? Die heb je snel berekend via de knop hieronder.
Bijkomende info
Gebouw
| Bouwjaar | 1931 |
|---|---|
| Staat | Op te frissen |
| Is beschermd | Nee |
| Bewoonbaar (m²) | 150 |
| Gevelbreedte | 4.8 |
| Badkamers | 1 |
| Slaapkamers | 4 |
| Keukens | 1 |
| Leefruimtes | 1 |
| Toiletten | 1 |
Ruimtes
| Slaapkamer | 17 m² |
|---|---|
| Slaapkamer | 11 m² |
| Slaapkamer | 17 m² |
| Slaapkamer | 11 m² |
| Keuken | 16 m² |
| Leefruimte | 22 m² |
Faciliteiten
| Keuken | Open keuken |
|---|---|
| Keuken uitrusting | Goed uitgerust |
| Materiaal ramenomlijstingen | PVC |
| Beglazing | Standaard dubbel |
| Luiken | Ja |
| Primair verwarmingstype | Centrale verwarming |
| Brandstof primaire verwarming | Gas |
| Warm water type | Geen verwarming |
Perceel
| Overstromingsgevoelig | Geen |
|---|---|
| P-score | B |
| G-score | B |
| Voorkeurrecht | Nee |
Vergunning
| Vergunning | Geen beschikbaar |
|---|---|
| Verkavelingsvergunning | Geen beschikbaar |
| Bouwovertreding dagvaardiging | Geen |
| Type gebied | Stedelijk |
Uitrusting
| Meerdere eigenaars | Nee |
|---|---|
| Geschikt als kangoeroewoning | Nee |
| Geschikt voor rolstoelgebruikers | Nee |
| Geschikt voor praktijk | Nee |
| Volledig onderkelderd | Nee |
| Parking | Nee |
| Garage | Nee |
| Thuiskantoor | Nee |
| Kelder | Ja |
| Zolder | Nee |
| Opslagruimte | Nee |
| Tuin | Nee |
| Terras | Nee |
| Lift | Nee |
| Rioolaansluiting | Ja |
| Gasaansluiting | Ja |
| Wateraansluiting | Ja |
| Elektriciteitsaansluiting | Ja |
| TV aansluiting | Nee |
| Internetaansluiting | Ja |
| Zonnepanelen | Nee |
| Zonneboiler | Nee |
| Alarm | Nee |
| Zwembad | Nee |
| Jacuzzi | Nee |
| Toonzaal | Nee |
| Ventilatie | Nee |
Een pand van
Marnix Vastgoed
Marnix Vastgoed
Wij zijn een dynamisch vastgoedkantoor, gespecialiseerd in residentieel vastgoed in Leuven en omstreken. Graag staan we je bij met onze expertise, klantgerichtheid en enthousiasme.
Wij ondersteunen je volledig bij het verkopen of verhuren van je pand.
Wij hebben ook aandacht voor het optimaliseren van je vastgoedinvesteringen.
We luisteren graag naar je verhaal en bouwen mee aan je toekomst.
TK/03.2026
Leer meer over vastgoed
01 March 2026
Wanneer heb ik een bouwvergunning of omgevingsvergunning nodig?
17 February 2026
Hoe breng ik een bod uit op een woning?
24 November 2025
Uitgezocht voor jouw gemeente: Hoeveel stijgt de waarde van je woning door een renovatie?
22 October 2025



