Nieuw Virtual tour
HAM - Langgevelhoeve met stallen en piste
€ 595.000
Een pand van Immo De Ras
Overzicht
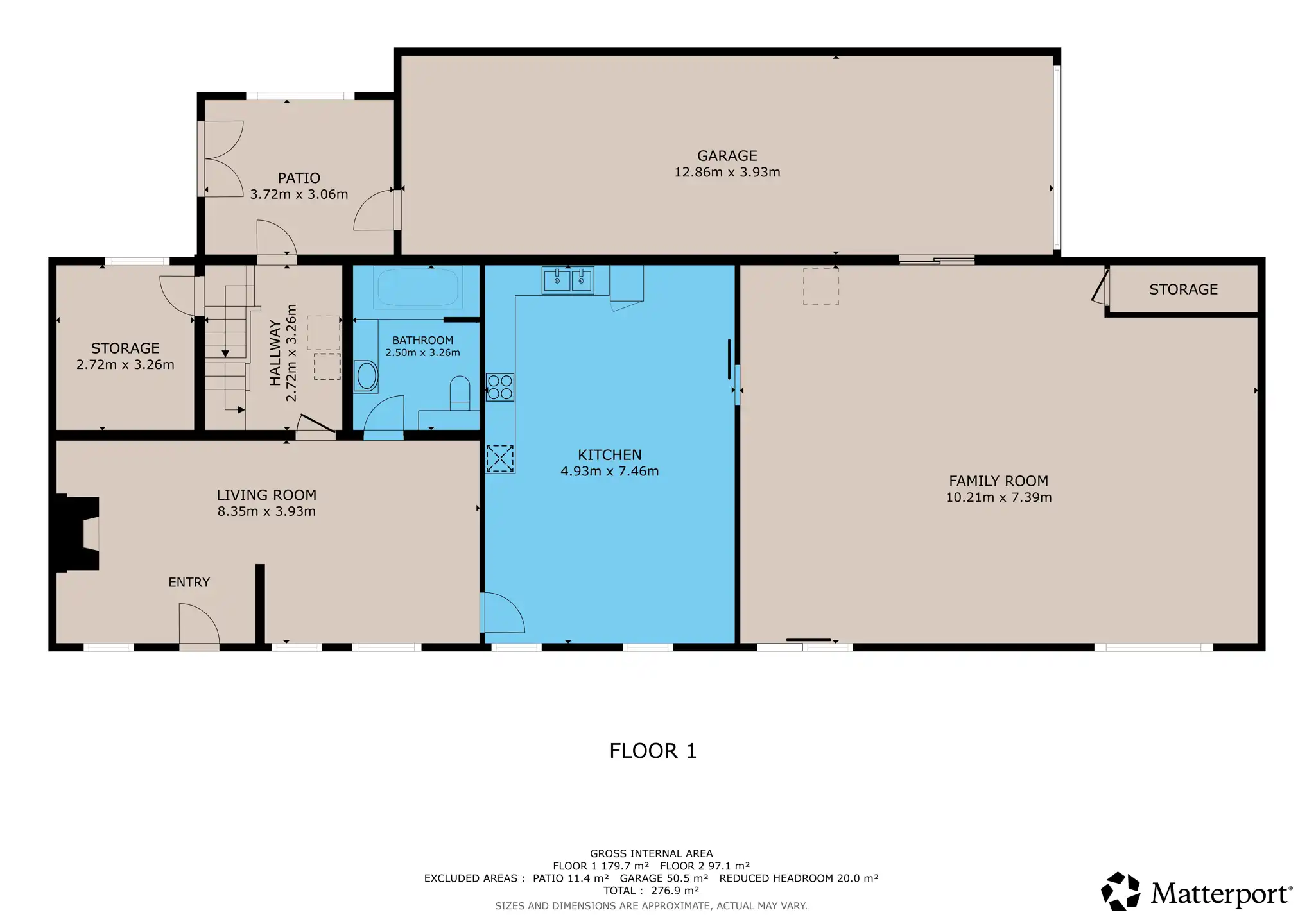
- 315 m² bewoonbaar
- 2709 m² grond
- 3 Slaapkamer(s)
- 1 Badkamer(s)
- 2 Toilet(ten)
- 1 Tuin
- 1 Garage(s)
Beschrijving
TESSENDERLO - HAM - Heel centraal gelegen, doch in een rustige omgeving.
Deze langgevelhoeve (25mx8m) werd deels zeer grondig en degelijk gerenoveerd. Voornamelijk op de eerste verdieping waar een mooie badkamer, een ruime dressing met aansluitend ene grote slaapkamer. Daarachter bevinden zich nog ruimtes in te richten als slaapkamer.
Op het gelijkvloers werd alles gestript en hoewel bewoonbaar dient ze nog ingericht te worden.
De opties hier zijn daardoor zeer uitgebreid naar smaak en inrichting, maar ook naar indeling toe. Want deze zeer ruime langgevelhoeve leent zich ideaal als kangoeroewoning, of voor een groot bureel wil inrichten aan de voorzijde van de woning.
Aan de rechterzijde van de hoeve is tevens een ruime en diepe garage van 44m² met opbergruimte.
Buiten is de aanleg ook zeer netjes gedaan met een mooie oprit naar een zonnige tuin en terras.
Het eiken stalgebouw grenzend aan de tuin is zeer kwalitatief en omvat een opslagruimte -en zadelkamer en 3 luchtige stallen. Aanpalend is er nog een buitenpiste met verlichting met daarachter een kleine weide/paddock.
In de directe omgeving en op wandelafstand van deze hoeve worden er momenteel 2 grote weilanden gehuurd met schuilstal van 1ha5 en 2ha5 dewelke mogelijks kunnen overgenomen worden. Ook kan de weide aan de overzijde (1ha2) gehuurd worden.
Deze zeer ruime hoeve is ideaal voor wie zijn eigen hand nog wil leggen aan de inrichting. Interesse? Contacteer ons vandaag nog op 053/60.65.66.
Deze langgevelhoeve (25mx8m) werd deels zeer grondig en degelijk gerenoveerd. Voornamelijk op de eerste verdieping waar een mooie badkamer, een ruime dressing met aansluitend ene grote slaapkamer. Daarachter bevinden zich nog ruimtes in te richten als slaapkamer.
Op het gelijkvloers werd alles gestript en hoewel bewoonbaar dient ze nog ingericht te worden.
De opties hier zijn daardoor zeer uitgebreid naar smaak en inrichting, maar ook naar indeling toe. Want deze zeer ruime langgevelhoeve leent zich ideaal als kangoeroewoning, of voor een groot bureel wil inrichten aan de voorzijde van de woning.
Aan de rechterzijde van de hoeve is tevens een ruime en diepe garage van 44m² met opbergruimte.
Buiten is de aanleg ook zeer netjes gedaan met een mooie oprit naar een zonnige tuin en terras.
Het eiken stalgebouw grenzend aan de tuin is zeer kwalitatief en omvat een opslagruimte -en zadelkamer en 3 luchtige stallen. Aanpalend is er nog een buitenpiste met verlichting met daarachter een kleine weide/paddock.
In de directe omgeving en op wandelafstand van deze hoeve worden er momenteel 2 grote weilanden gehuurd met schuilstal van 1ha5 en 2ha5 dewelke mogelijks kunnen overgenomen worden. Ook kan de weide aan de overzijde (1ha2) gehuurd worden.
Deze zeer ruime hoeve is ideaal voor wie zijn eigen hand nog wil leggen aan de inrichting. Interesse? Contacteer ons vandaag nog op 053/60.65.66.
Energie
![]() |
- EPC Certificaat: 20250928-000369393-RES-1
- Energieverbruik: 323 kWh/m²/jaar
Let op, de renovatieverplichting in Vlaanderen verplicht de koper om deze woning na aankoop te renoveren tot een betere energieprestatie. Lees er alles over in dit artikel
Extra budget nodig voor je renovatie?
De overheid helpt je dit pand energetisch te renoveren! Hieronder zie je het premiebedrag dat je mogelijks van de overheid krijgt.
Het huidige EPC-label is:

Op de kaart

Downloads
- Gewestinfo.pdf (pdf)
- Kadastraal plan.pdf (pdf)
- OnroerendErfgoed.pdf (pdf)
- Overstromingsgevaar.pdf (pdf)
- RechtVanVoorkoop.pdf (pdf)
- VGI_Uittreksel.pdf (pdf)
- OVAM.pdf (pdf)
- Asbest.pdf (pdf)
- EK zonder persoongegevens.pdf (pdf)
- Asbestattest.pdf (pdf)
- EPC - D.pdf (pdf)
- STED.pdf (pdf)
Financieel
| Prijs | |
|---|---|
| Kadastraal inkomen (niet geïndexeerd) | € 736 |
Berekening kosten
Je aankoopkosten? Die heb je snel berekend via de knop hieronder.
Bijkomende info
Gebouw
| Bouwjaar | 1899 |
|---|---|
| Renovatie jaar | 2020 |
| Staat | Op te frissen |
| Bewoonbaar (m²) | 315 |
| Gevels | 4 |
| Gevelbreedte | 25 |
| Badkamers | 1 |
| Slaapkamers | 3 |
| Verdiepingen | 1 |
| Garages | 1 |
| Parkeerplaatsen | 4 |
| Doucheruimtes | 2 |
| Toiletten | 2 |
Faciliteiten
| Type vloer | |
|---|---|
| Keuken uitrusting | Goed uitgerust |
| Elektrisch keuringsattest | Nee |
Perceel
| Overstromingsgevoelig | Geen |
|---|---|
| P-score | A |
| G-score | A |
| Voorkeurrecht | Nee |
| Totale oppervlakte (m²) | 2709 |
| Tuin oppervlakte (m²) | 0 |
Vergunning
| Vergunning | Geen beschikbaar |
|---|---|
| Verkavelingsvergunning | Geen beschikbaar |
| Bouwovertreding | Geen |
| Bouwovertreding dagvaardiging | Geen |
| Type gebied | Landelijk |
Uitrusting
| Geschikt voor rolstoelgebruikers | Nee |
|---|---|
| Parking | Ja |
| Garage | Ja |
| Tuin | Ja |
| Terras | Ja |
| Lift | Nee |
| Gasaansluiting | Ja |
| Wateraansluiting | Ja |
| Elektriciteitsaansluiting | Ja |
| Zwembad | Nee |
| Zwemvijver | Nee |
| Regenwaterput | Ja |
Een pand van
Immo De Ras
IMMO DE RAS
IMMO DE RAS, jouw vastgoedexpert bij het vinden van een nieuwe bestemming voor uw vastgoed. Verkoop en verhuur van huizen, appartementen en gronden. Wij helpen u graag verder met ons groot aanbod te koop in regio Lede, Erpe-Mere, Sint-Lievens-Houtem, Herzele, Zottegem, Wichelen, Wetteren, ... Services: gratis schatting, kopen en verkopen, projectontwikkeling, certificaten en keuringen.
7183084
Leer meer over vastgoed
01 March 2026
Wanneer heb ik een bouwvergunning of omgevingsvergunning nodig?
17 February 2026
Hoe breng ik een bod uit op een woning?
24 November 2025
Uitgezocht voor jouw gemeente: Hoeveel stijgt de waarde van je woning door een renovatie?
22 October 2025


