OP TE FRISSEN GELIJKVLOERSE WONING MET 3 SLAAPKAMERS OP EEN RUIM PERCEEL IN HET CENTRUM VAN OOSTHAM
Prijs op aanvraag
Een pand van Het Vastgoedkantoor
Jouw zoektocht
Overzicht
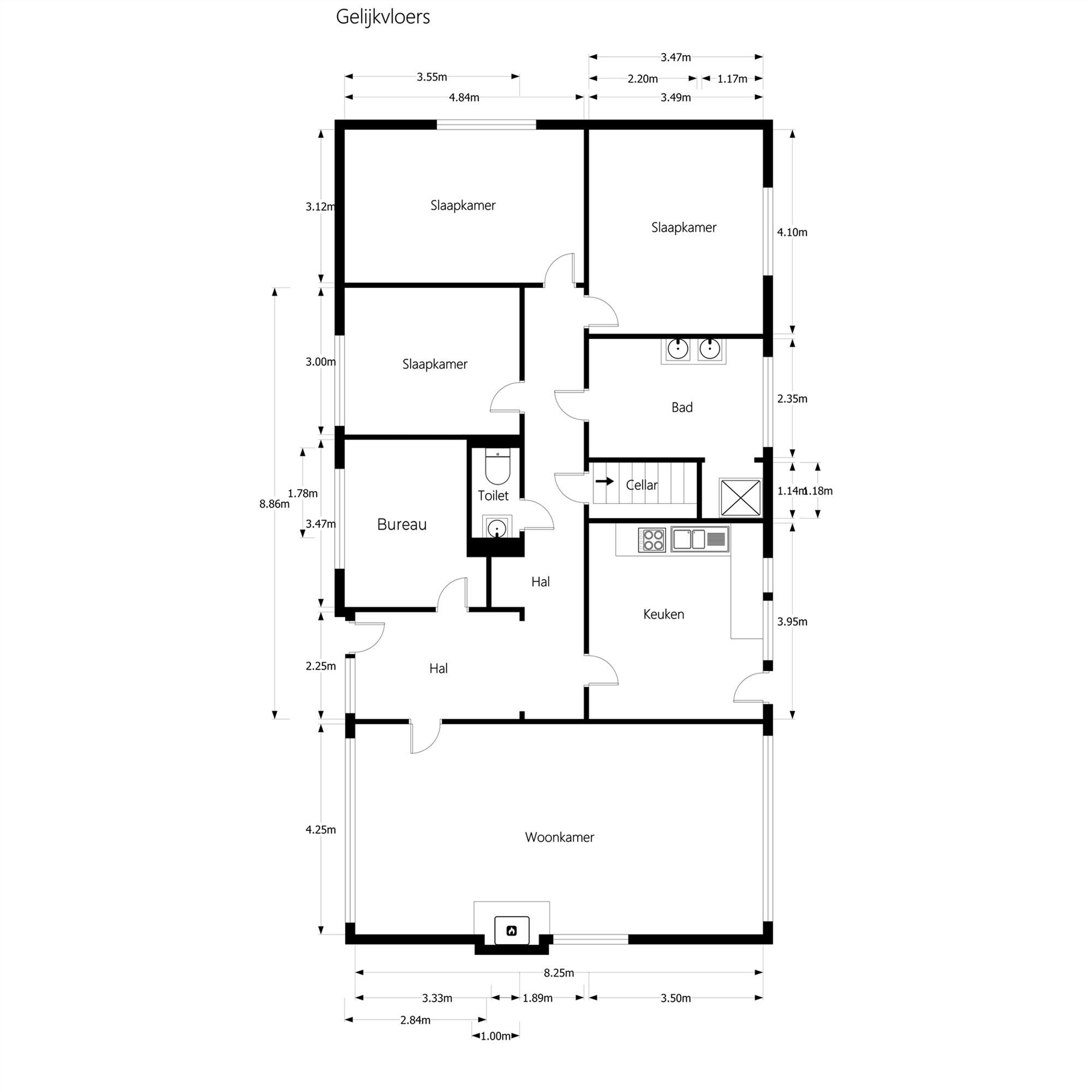
- 164 m² bewoonbaar
- 1299 m² grond
- 3 Slaapkamer(s)
- 1 Badkamer(s)
- 1 Garage(s)
Beschrijving
Op te frissen gelijkvloerse woning met 3 slaapkamers gelegen op een ruim perceel van 12a99ca in het centrum van Oostham.
Belangrijkste troeven:
- Centrale ligging in het centrum van Ham in zo in de nabijheid van winkels, scholen, eetgelegenheden,
- Op te frissen gelijkvloerse woning
- 3 slaapkamers
- Volledig onderkelderd
- ZO georiënteerde tuin
- Alarm
- Dak vernieuwd
- Ondergrondse garage
Bekijk zeker ook de foto's en de grondplannen met de afmetingen. Zo krijgt u van thuis uit al een perfect beeld van wat deze woning te bieden heeft!
Wenst u meer info of een vrijblijvende bezichtiging, contacteer dan ons kantoor op het nummer 011 85 15 15 en wij helpen u graag verder.
Energie
![]() |
- EPC Certificaat: 20250328-0003564180-RES-1
- Energieverbruik: 474 kWh/m²/jaar
- E-peil: E0
- Beglazing: Standaard dubbel
Extra budget nodig voor je renovatie?

Op de kaart

Financieel
| Kadastraal inkomen (niet geïndexeerd) | € 907 |
|---|---|
| Kadastraal inkomen (geïndexeerd) | € 0 |
Berekening kosten
Je aankoopkosten? Die heb je snel berekend via de knop hieronder.
Bijkomende info
Gebouw
| Bouwjaar | 1967 |
|---|---|
| Bouwcertificaat | Nee |
| Bewoonbaar (m²) | 164 |
| Verdieping | 0 |
| Badkamers | 1 |
| Slaapkamers | 3 |
| Verdiepingen | 0 |
| Garages | 1 |
| Parkeerplaatsen | 0 |
| Doucheruimtes | 0 |
| Toiletten | 0 |
Faciliteiten
| Materiaal ramenomlijstingen | Hout |
|---|---|
| Beglazing | Standaard dubbel |
| Elektrisch keuringsattest | Nee |
Perceel
| Overstromingsgevoelig | Geen |
|---|---|
| P-score | A |
| G-score | A |
| Voorkeurrecht | Nee |
| Totale oppervlakte (m²) | 1299 |
| Bebouwde oppervlakte (m²) | 0 |
| Tuin oppervlakte (m²) | 0 |
| Oppervlakte terras (m²) | 0 |
Vergunning
| Vergunning | Vergunning beschikbaar |
|---|
Uitrusting
| Investeringspand | Nee |
|---|---|
| Geschikt voor praktijk | Nee |
| Parking | Nee |
| Garage | Ja |
| Thuiskantoor | Nee |
| Kelder | Ja |
| Zolder | Ja |
| Tuin | Nee |
| Terras | Nee |
| Lift | Nee |
| Rioolaansluiting | Nee |
| Gasaansluiting | Nee |
| Wateraansluiting | Nee |
| Elektriciteitsaansluiting | Nee |
| TV aansluiting | Nee |
| Internetaansluiting | Nee |
| Telefoonaansluiting | Nee |



