Nieuw Virtual tour
Ruime 3 slpk. gezinswoning te Sijsele
€ 424.800
Een pand van Altro Vastgoed Brugge
Overzicht
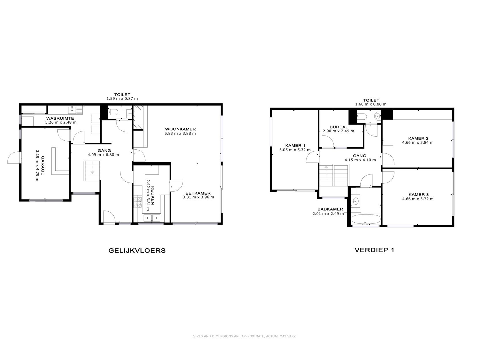
- 230 m² bewoonbaar
- 834 m² grond
- 3 Slaapkamer(s)
- 1 Badkamer(s)
- 2 Toilet(ten)
- 1 Tuin
- 1 Garage(s)
Beschrijving
ALTRO VASTGOED VERKOOPT
Op zoek naar een warme gezinswoning waar elke dag aanvoelt als vakantie?
Aan de Nieuwe Weg 1 in Sijsele vind je een plek die rust uitstraalt, met een zuidwestgerichte tuin die de woning als het ware omarmt. Hier geniet je van zon, ruimte en comfort – binnen én buiten.
De lichtrijke leefruimte met gesloten haard nodigt uit tot knusse avonden. Aansluitend ligt de recent vernieuwde keuken, ideaal om te koken met zicht op de tuin. De ruime inkomhal met gastentoilet maakt meteen indruk bij het binnenkomen.
Boven ontdek je drie volwaardige slaapkamers met elk een klein terrasje, een bureauruimte en een badkamer. De master bedroom heeft bovendien een privéterras en airco – een oase van rust na een drukke dag.
En er is meer… de voormalige garage werd omgetoverd tot een gezellige bar met overdekt terras. Nu perfect voor lange zomeravonden met vrienden of familie of terug om te bouwen tot garage. Achteraan vind je nog een tweede terras aan de tuinberging, zodat je op elk moment van de dag de zon kan volgen.
Met een EPC-label C (288 kWh/m²) is dit een energiezuinige en instapklare woning, klaar om jouw nieuwe thuis te worden.
Interesse? Contacteer vastgoedmakelaar Wim Gevaert via 0473 70 40 71 (7/7) of wim@altro-vastgoed.be en kom ontdekken hoe het voelt om hier te wonen.
Op zoek naar een warme gezinswoning waar elke dag aanvoelt als vakantie?
Aan de Nieuwe Weg 1 in Sijsele vind je een plek die rust uitstraalt, met een zuidwestgerichte tuin die de woning als het ware omarmt. Hier geniet je van zon, ruimte en comfort – binnen én buiten.
De lichtrijke leefruimte met gesloten haard nodigt uit tot knusse avonden. Aansluitend ligt de recent vernieuwde keuken, ideaal om te koken met zicht op de tuin. De ruime inkomhal met gastentoilet maakt meteen indruk bij het binnenkomen.
Boven ontdek je drie volwaardige slaapkamers met elk een klein terrasje, een bureauruimte en een badkamer. De master bedroom heeft bovendien een privéterras en airco – een oase van rust na een drukke dag.
En er is meer… de voormalige garage werd omgetoverd tot een gezellige bar met overdekt terras. Nu perfect voor lange zomeravonden met vrienden of familie of terug om te bouwen tot garage. Achteraan vind je nog een tweede terras aan de tuinberging, zodat je op elk moment van de dag de zon kan volgen.
Met een EPC-label C (288 kWh/m²) is dit een energiezuinige en instapklare woning, klaar om jouw nieuwe thuis te worden.
Interesse? Contacteer vastgoedmakelaar Wim Gevaert via 0473 70 40 71 (7/7) of wim@altro-vastgoed.be en kom ontdekken hoe het voelt om hier te wonen.
Op zoek naar een warme gezinswoning waar elke dag aanvoelt als vakantie?
Aan de Nieuwe Weg 1 in Sijsele vind je een plek die rust uitstraalt, met een zuidwestgerichte tuin die de woning als het ware omarmt. Hier geniet je van zon, ruimte en comfort – binnen én buiten.
De lichtrijke leefruimte met gesloten haard nodigt uit tot knusse avonden. Aansluitend ligt de recent vernieuwde keuken, ideaal om te koken met zicht op de tuin. De ruime inkomhal met gastentoilet maakt meteen indruk bij het binnenkomen.
Boven ontdek je drie volwaardige slaapkamers met elk een klein terrasje, een bureauruimte en een badkamer. De master bedroom heeft bovendien een privéterras en airco – een oase van rust na een drukke dag.
En er is meer… de voormalige garage werd omgetoverd tot een gezellige bar met overdekt terras. Perfect voor lange zomeravonden met vrienden of familie. Achteraan vind je nog een tweede terras aan de tuinberging, zodat je op elk moment van de dag de zon kan volgen.
Met een EPC-label C (288 kWh/m²) is dit een energiezuinige en instapklare woning, klaar om jouw nieuwe thuis te worden.
Interesse?
Aan de Nieuwe Weg 1 in Sijsele vind je een plek die rust uitstraalt, met een zuidwestgerichte tuin die de woning als het ware omarmt. Hier geniet je van zon, ruimte en comfort – binnen én buiten.
De lichtrijke leefruimte met gesloten haard nodigt uit tot knusse avonden. Aansluitend ligt de recent vernieuwde keuken, ideaal om te koken met zicht op de tuin. De ruime inkomhal met gastentoilet maakt meteen indruk bij het binnenkomen.
Boven ontdek je drie volwaardige slaapkamers met elk een klein terrasje, een bureauruimte en een badkamer. De master bedroom heeft bovendien een privéterras en airco – een oase van rust na een drukke dag.
En er is meer… de voormalige garage werd omgetoverd tot een gezellige bar met overdekt terras. Perfect voor lange zomeravonden met vrienden of familie. Achteraan vind je nog een tweede terras aan de tuinberging, zodat je op elk moment van de dag de zon kan volgen.
Met een EPC-label C (288 kWh/m²) is dit een energiezuinige en instapklare woning, klaar om jouw nieuwe thuis te worden.
Interesse?
Energie
![]() |
- EPC Certificaat: 20251009-0003692035-RES-2
- Energieverbruik: 288 kWh/m²/jaar
Op de kaart

Downloads
Financieel
| Prijs | |
|---|---|
| Kadastraal inkomen (niet geïndexeerd) | € 721 |
| Kadastraal inkomen (geïndexeerd) | € 721 |
Berekening kosten
Je aankoopkosten? Die heb je snel berekent via de knop hieronder.
Bijkomende info
Gebouw
| Bouwjaar | 1976 |
|---|---|
| Staat | Goed onderhouden |
| Bewoonbaar (m²) | 230 |
| Gevels | 3 |
| Gevelbreedte | 8 |
| Badkamers | 1 |
| Slaapkamers | 3 |
| Verdiepingen | 3 |
| Garages | 1 |
| Parkeerplaatsen | 1 |
| Doucheruimtes | 1 |
| Toiletten | 2 |
Faciliteiten
| Type vloer | |
|---|---|
| Keuken uitrusting | Goed uitgerust |
| Elektrisch keuringsattest | Nee |
Perceel
| Overstromingsgevoelig | Geen |
|---|---|
| P-score | A |
| G-score | A |
| Voorkeurrecht | Nee |
| Totale oppervlakte (m²) | 834 |
| Bebouwde oppervlakte (m²) | 100 |
| Tuin oppervlakte (m²) | 834 |
| Oriëntatie terras | Zuidwest |
Vergunning
| Vergunning | Vergunning beschikbaar |
|---|---|
| Verkavelingsvergunning | Vergunning beschikbaar |
| Bouwovertreding | Geen |
| Bouwovertreding dagvaardiging | Geen |
Uitrusting
| Geschikt voor rolstoelgebruikers | Nee |
|---|---|
| Geschikt voor praktijk | Ja |
| Parking | Ja |
| Garage | Ja |
| Thuiskantoor | Ja |
| Zolder | Ja |
| Tuin | Ja |
| Terras | Ja |
| Lift | Nee |
| Gasaansluiting | Ja |
| Wateraansluiting | Ja |
| Elektriciteitsaansluiting | Ja |
| TV aansluiting | Ja |
| Telefoonaansluiting | Ja |
| Zwembad | Nee |
| Zwemvijver | Nee |
| Regenwaterput | Ja |
Een pand van
Altro Vastgoed Brugge
Wij verkopen uw vastgoed, anders én beter!
Bij Altro Vastgoed vinden we een persoonlijke aanpak erg belangrijk, hierbij stellen we de klant steeds centraal en staan we hem/haar bij in het complexe proces van verkopen, aankopen, verhuren en huren van vastgoed. We beschikken over een kwalitatief kantorennetwerk in Vlaanderen en Brussel met een sterke, lokale verankering.
7221364
Leer meer over vastgoed
Nieuw
22 October 2025
Hoeveel kan ik lenen om een huis te kopen?
11 June 2025
Huis kopen met bouwovertreding? Dit moet je weten
11 May 2025
Renoveren? Vraag je Mijn VerbouwPremie aan
22 April 2025
