Virtual tour
Handelspand op AAA+ locatie!
Een pand van Altro Vastgoed Brugge
Overzicht
- 228 m² bewoonbaar
- 228 m² grond
Beschrijving
ALTRO VASTGOED VERKOOP
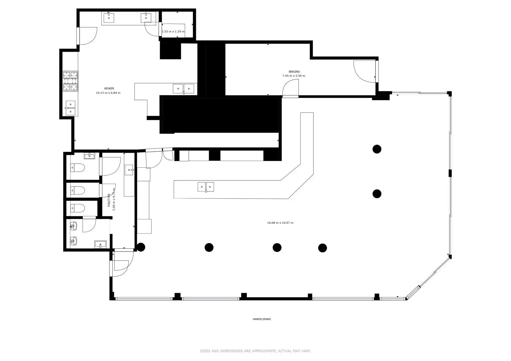
Deze eigendom is vrij van huurovereenkomst - Je kan er niet omheen kijken... het uiterst commercieel gelegen hoekhandelspand (228 m²) doet momenteel dienst als klasse restaurant. Omwille van de constructie met palen van de handelsgelijksvloer kunnen alle binnenmuren worden weggenomen en is elke activiteit hier mogelijk.
Het aanpalende 2 slpk.-appartement (175 m²) kan ook aangekocht worden waardoor u de mogelijkheid heb een handelsruimte bij te creëren tot 403 m².
Optioneel bij te kopen, zeer ruime kelder van 30 m². Extra inbegrepen een grote berging op gelijkvloers met leverancier ingang.
Wenst u te wonen bij het handelspand of wenst u de handelsruimte nog te verruimen? Het aanpalende 2 slpk.-appartement (175 m²) kan ook worden aangekocht (contacteer ons voor de voorwaarden). Overname inboedel bespreekbaar.
EPC appartement: 196 kWh/(m² jaar) - 20220405-0002577847-RES-1
Wenst u graag meer informatie of een bezoek aan deze uiterst commercieel gelegen eigendom? Contacteer vastgoedmakelaar Wim Gevaert - 0473 70 40 71 (7/7) of wim@altro-vastgoed.be
Deze eigendom is vrij van huurovereenkomst - Je kan er niet omheen kijken... het uiterst commercieel gelegen hoekhandelspand (228 m²) doet momenteel dienst als klasse restaurant. Omwille van de constructie met palen van de handelsgelijksvloer kunnen alle binnenmuren worden weggenomen en is elke activiteit hier mogelijk.
Het aanpalende 2 slpk.-appartement (175 m²) kan ook aangekocht worden waardoor u de mogelijkheid heb een handelsruimte bij te creëren tot 403 m².
Optioneel bij te kopen, zeer ruime kelder van 30 m². Extra inbegrepen een grote berging op gelijkvloers met leverancier ingang.
Wenst u te wonen bij het handelspand of wenst u de handelsruimte nog te verruimen? Het aanpalende 2 slpk.-appartement (175 m²) kan ook worden aangekocht (contacteer ons voor de voorwaarden). Overname inboedel bespreekbaar.
EPC appartement: 196 kWh/(m² jaar) - 20220405-0002577847-RES-1
Wenst u graag meer informatie of een bezoek aan deze uiterst commercieel gelegen eigendom? Contacteer vastgoedmakelaar Wim Gevaert - 0473 70 40 71 (7/7) of wim@altro-vastgoed.be
Deze eigendom is vrij van huurovereenkomst - Je kan er niet omheen kijken... het uiterst commercieel gelegen hoekhandelspand (228 m²) doet momenteel dienst als klasse restaurant. Omwille van de constructie met palen van de handelsgelijksvloer kunnen alle binnenmuren worden weggenomen en is elke activiteit hier mogelijk.
Het aanpalende 2 slpk.-appartement (175 m²) kan ook aangekocht worden waardoor u de mogelijkheid heb een handelsruimte bij te creëren tot 403 m².
Optioneel bij te kopen, zeer ruime kelder van 30 m². Extra inbegrepen een grote berging op gelijkvloers met leverancier ingang.
Wenst u te wonen bij het handelspand of wenst u de handelsruimte nog te verruimen? Het aanpalende 2 slpk.-appartement (175 m²) kan ook worden aangekocht (contacteer ons voor de voorwaarden). Overname inboedel bespreekbaar.
EPC appartement: 196 kWh/(m² jaar) - 20220405-0002577847-RES-1
Interesse?
Het aanpalende 2 slpk.-appartement (175 m²) kan ook aangekocht worden waardoor u de mogelijkheid heb een handelsruimte bij te creëren tot 403 m².
Optioneel bij te kopen, zeer ruime kelder van 30 m². Extra inbegrepen een grote berging op gelijkvloers met leverancier ingang.
Wenst u te wonen bij het handelspand of wenst u de handelsruimte nog te verruimen? Het aanpalende 2 slpk.-appartement (175 m²) kan ook worden aangekocht (contacteer ons voor de voorwaarden). Overname inboedel bespreekbaar.
EPC appartement: 196 kWh/(m² jaar) - 20220405-0002577847-RES-1
Interesse?
Energie
![]() |
- EPC Certificaat: 20220405-0002572400-KNR-1
- Energieverbruik: 196 kWh/m²/jaar
Op de kaart

Downloads
Financieel
| Prijs |
|---|
Berekening kosten
Je aankoopkosten? Die heb je snel berekend via de knop hieronder.
Bijkomende info
Gebouw
| Bouwjaar | 2003 |
|---|---|
| Staat | Zo goed als nieuw |
| Bewoonbaar (m²) | 228 |
| Verdieping | 0 |
| Gevels | 3 |
| Gevelbreedte | 23 |
| Badkamers | 0 |
| Slaapkamers | 0 |
| Verdiepingen | 7 |
| Garages | 0 |
| Parkeerplaatsen | 0 |
Faciliteiten
| Type vloer | |
|---|---|
| Elektrisch keuringsattest | Ja |
Perceel
| Overstromingsgevoelig | Geen |
|---|---|
| Voorkeurrecht | Nee |
| Totale oppervlakte (m²) | 228 |
| Bebouwde oppervlakte (m²) | 340 |
| Tuin oppervlakte (m²) | 0 |
| Oriëntatie terras | ZuidOost |
Vergunning
| Vergunning | Vergunning beschikbaar |
|---|---|
| Verkavelingsvergunning | Geen beschikbaar |
| Bouwovertreding | Geen |
| Bouwovertreding dagvaardiging | Geen |
Uitrusting
| Geschikt voor rolstoelgebruikers | Ja |
|---|---|
| Geschikt voor praktijk | Ja |
| Parking | Nee |
| Garage | Nee |
| Thuiskantoor | Ja |
| Kelder | Ja |
| Tuin | Nee |
| Terras | Nee |
| Lift | Nee |
| Gasaansluiting | Ja |
| Wateraansluiting | Ja |
| Elektriciteitsaansluiting | Ja |
| Telefoonaansluiting | Ja |
| Alarm | Ja |
| Zwembad | Nee |
| Zwemvijver | Nee |
Een pand van
Altro Vastgoed Brugge
Wij verkopen uw vastgoed, anders én beter!
Bij Altro Vastgoed vinden we een persoonlijke aanpak erg belangrijk, hierbij stellen we de klant steeds centraal en staan we hem/haar bij in het complexe proces van verkopen, aankopen, verhuren en huren van vastgoed. We beschikken over een kwalitatief kantorennetwerk in Vlaanderen en Brussel met een sterke, lokale verankering.
7236092
Leer meer over vastgoed
04 January 2026
Zoek je een kantoor, een magazijn of… iets ertussenin? Bedrijfsvastgoed uitgelegd
05 November 2024
Bedrijfsvastgoed in transitie: ontdek de toekomst van werkplekken
16 October 2024
Opbrengsteigendom: een slim pad naar passief inkomen en vermogensgroei
09 September 2024
