Te renoveren 3 slaapkamer appartement - Diga Verde 1.11
€ 225.000
Een pand van Agence Driemo
Favoriet
Jouw zoektocht
Jouw scoretabel voor dit pand
Aan het laden...
Jouw geplande bezichtigingen
Aan het laden...
Overzicht
- 40 m² bewoonbaar
- 3 Slaapkamer(s)
- 1 Badkamer(s)
Beschrijving
Te renoveren 3 slaapkamer appartement op een steenworp van zee, natuurreservaat Houtsaegherduinen, zeilclub/bar/restaurant de KYC (Koksijde yachting club) EN het centrum van Sint-Idesbald.
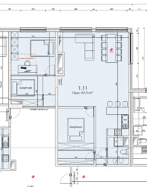
Oppervlakte 87 m²
3 slaapkamers
1 badkamer
Eetplaats
Living
Keuken
Twee gemeenschappelijke fietsbergingen:
Fietsberging 1: Ondergronds voor 38 fietsen
Fietsberging 2: Gelijkvloers voor 34 fietsen
Optie tot aankoop van parkeerplaats buiten
Ideaal voor seizoensverhuring of vehuur op jaarbasis.
Aarzel niet om contact op te nemen met ons kantoor Agence Driemo via 058 41 51 36 voor meer informatie of een bezichtiging.
Oppervlakte 87 m²
3 slaapkamers
1 badkamer
Eetplaats
Living
Keuken
Twee gemeenschappelijke fietsbergingen:
Fietsberging 1: Ondergronds voor 38 fietsen
Fietsberging 2: Gelijkvloers voor 34 fietsen
Optie tot aankoop van parkeerplaats buiten
Ideaal voor seizoensverhuring of vehuur op jaarbasis.
Aarzel niet om contact op te nemen met ons kantoor Agence Driemo via 058 41 51 36 voor meer informatie of een bezichtiging.
Energie
![]() |
- EPC Certificaat: 20230726-0002951860-RES-1
- Energieverbruik: 113 kWh/m²/jaar
- E-peil: E0
- Beglazing: Onbekend
Op de kaart

Financieel
| Prijs | |
|---|---|
| Kadastraal inkomen (niet geïndexeerd) | € 656 |
Berekening kosten
Je aankoopkosten? Die heb je snel berekend via de knop hieronder.
Bijkomende info
Gebouw
| Bouwjaar | 1994 |
|---|---|
| Renovatie jaar | 2025 |
| Staat | Goed onderhouden |
| Bewoonbaar (m²) | 40 |
| Verdieping | 1 |
| Badkamers | 1 |
| Slaapkamers | 3 |
| Verdiepingen | 3 |
| Garages | 0 |
| Parkeerplaatsen | 1 |
| Toiletten | 0 |
Faciliteiten
| Septische tank | Nee |
|---|
Perceel
| Overstromingsgevoelig | Geen |
|---|---|
| Bebouwde oppervlakte (m²) | 0 |
| Oriëntatie tuin | Zuid |
Vergunning
| Verkavelingsvergunning | Vergunning beschikbaar |
|---|
Uitrusting
| Investeringspand | Nee |
|---|---|
| Parking | Ja |
| Garage | Nee |
| Lift | Ja |
| Rioolaansluiting | Nee |
| Gasaansluiting | Nee |
| Wateraansluiting | Nee |
| Elektriciteitsaansluiting | Nee |
| Internetaansluiting | Nee |
| Telefoonaansluiting | Nee |
| Zonnepanelen | Nee |
| Zonneboiler | Nee |
| Alarm | Nee |
| Videofoon | Nee |
| Grondwaterput | Nee |
Appartementsblok
| Aantal verdiepingen | 3 |
|---|---|
| Lift | Ja |
| Intercom | Nee |
Een pand van
Agence Driemo
Agence Driemo
Biedt u het beste in De Panne!
Diga Verde 1.11 - 3 slaapkamer appartement renovatie project
Leer meer over vastgoed
23 March 2026
Op Spotto zoeken als een pro: 10 slimme tips
21 March 2026
Hoeveel kan ik lenen om een huis te kopen?
01 March 2026
Wanneer heb ik een bouwvergunning of omgevingsvergunning nodig?
17 February 2026
