Nieuw
Prachtige centraal gelegen penthouse met lateraal zeezicht
Een pand van Agence Ultimmo
Favoriet
Jouw zoektocht
Jouw scoretabel voor dit pand
Aan het laden...
Jouw geplande bezichtigingen
Aan het laden...
Overzicht
- 50 m² bewoonbaar
- 1 Slaapkamer(s)
- 1 Badkamer(s)
- 1 Toilet(ten)
Beschrijving
Prachtig, modern dakappartement met 1 slaapkamer op 50 meter van de zeedijk. Deze penthouse ligt op de 4de verdieping.
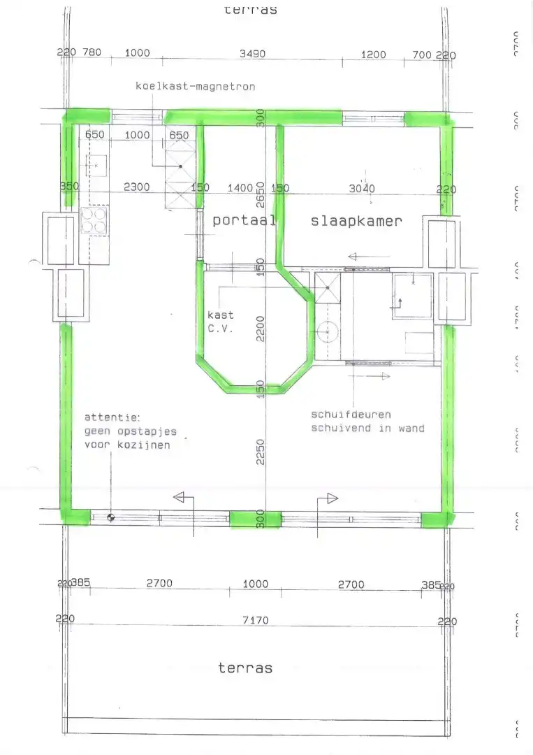
indeling: Twee ruime terrassen, waarvan 1 met mooi zeezicht, living met een open en modern ingerichte keuken, slaapkamer met 2 persoonsbed, badkamer met douche en dubbele wastafel, apart toilet. Mogelijkheid om een overdekte parkeerplaats bij te kopen.
indeling: Twee ruime terrassen, waarvan 1 met mooi zeezicht, living met een open en modern ingerichte keuken, slaapkamer met 2 persoonsbed, badkamer met douche en dubbele wastafel, apart toilet. Mogelijkheid om een overdekte parkeerplaats bij te kopen.
Energie
![]() |
- EPC Certificaat: 20250321-0003549123-RES-1
- Verwarming: Gas
- Beglazing: Standaard dubbel
Op de kaart

Financieel
| Prijs | |
|---|---|
| Kadastraal inkomen (niet geïndexeerd) | € 853 |
| Kadastraal inkomen (geïndexeerd) | € 1.865 |
Berekening kosten
Je aankoopkosten? Die heb je snel berekend via de knop hieronder.
Bijkomende info
Gebouw
| Bouwjaar | 2007 |
|---|---|
| Is beschermd | Nee |
| Bewoonbaar (m²) | 50 |
| Verdieping | 4 |
| Badkamers | 1 |
| Slaapkamers | 1 |
| Verdiepingen | 5 |
| Toiletten | 1 |
Ruimtes
| Terras | 50 m² |
|---|
Faciliteiten
| Materiaal ramenomlijstingen | Hout |
|---|---|
| Beglazing | Standaard dubbel |
| Luiken | Nee |
| Primair verwarmingstype | Centrale verwarming |
| Brandstof primaire verwarming | Gas |
Perceel
| Overstromingsgevoelig | Geen |
|---|---|
| Voorkeurrecht | Nee |
| Oppervlakte terras (m²) | 50 |
Vergunning
| Vergunning | Vergunning beschikbaar |
|---|---|
| Verkavelingsvergunning | Geen beschikbaar |
| Bouwovertreding dagvaardiging | Geen |
| Type gebied | Stedelijk |
Uitrusting
| Meerdere eigenaars | Nee |
|---|---|
| Geschikt als kangoeroewoning | Nee |
| Geschikt voor rolstoelgebruikers | Nee |
| Geschikt voor praktijk | Nee |
| Volledig onderkelderd | Nee |
| Parking | Nee |
| Garage | Nee |
| Thuiskantoor | Nee |
| Kelder | Ja |
| Zolder | Nee |
| Opslagruimte | Nee |
| Tuin | Nee |
| Terras | Ja |
| Lift | Ja |
| Rioolaansluiting | Nee |
| Gasaansluiting | Ja |
| Wateraansluiting | Ja |
| Elektriciteitsaansluiting | Ja |
| TV aansluiting | Ja |
| Internetaansluiting | Ja |
| Zonnepanelen | Nee |
| Zonneboiler | Nee |
| Alarm | Nee |
| Zwembad | Nee |
| Jacuzzi | Nee |
| Toonzaal | Nee |
| Ventilatie | Nee |
Appartementsblok
| Aantal verdiepingen | 5 |
|---|---|
| Lift | Ja |
| Intercom | Nee |
Een pand van
Agence Ultimmo
Agence Ultimmo
Vakantieverhuur/Verkoop/Jaarverhuur/Syndic
LEONETTO 04.02
Leer meer over vastgoed
23 March 2026
Op Spotto zoeken als een pro: 10 slimme tips
21 March 2026
Hoeveel kan ik lenen om een huis te kopen?
01 March 2026
Wanneer heb ik een bouwvergunning of omgevingsvergunning nodig?
17 February 2026
