Ruime laagbouwvilla met 5 slaapkamers en 150 m² kelder/garage in Lede
€ 395.000
Een pand van Berno Vastgoed
Overzicht
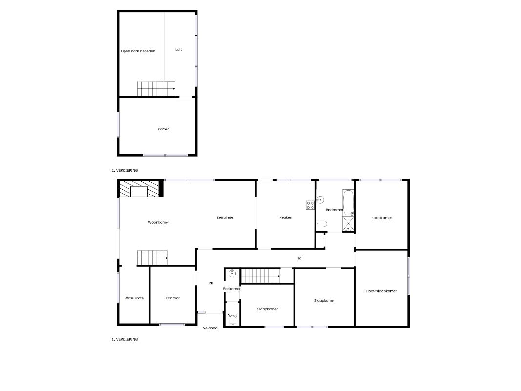
- 220 m² bewoonbaar
- 1215 m² grond
- 5 Slaapkamer(s)
- 1 Badkamer(s)
- 1 Toilet(ten)
Beschrijving
Ruime laagbouwvilla met 5 slaapkamers en 150 m² kelder/garage in Lede
Op zoek naar een grote, solide woning met eindeloze mogelijkheden? Ontdek deze ruime laagbouwvilla op Oud-Smetlede 89 in Lede.
Met een bewoonbare oppervlakte van ca. 220 m² biedt de woning vandaag al 5 slaapkamers, een badkamer en een lichtrijke leefruimte. Onder de woning bevindt zich een indrukwekkende kelder van maar liefst 150 m², ideaal als garage voor 4 wagens, extra opslag of hobbyruimte.
Deze villa is gebouwd in stevige ruwbouw volledig uit beton, waardoor je beschikt over een uiterst duurzame basis voor renovatie. De huidige elektrische vloerverwarming kan perfect vervangen worden door een warmtepomp, waarmee het EPC van F naar C kan worden gebracht (simulatie beschikbaar).
Troeven op een rij:
📍 Gelegen in een rustige buurt van Smetlede, met vlotte verbindingen en veel ruimte rondom.
💡 Dit is de perfecte woning voor wie een ruim en solide huis zoekt om volledig naar eigen smaak te renoveren.
📞 Contacteer Niels voor een bezoek: 0471 27 95 62 – niels@berno.be
Op zoek naar een grote, solide woning met eindeloze mogelijkheden? Ontdek deze ruime laagbouwvilla op Oud-Smetlede 89 in Lede.
Met een bewoonbare oppervlakte van ca. 220 m² biedt de woning vandaag al 5 slaapkamers, een badkamer en een lichtrijke leefruimte. Onder de woning bevindt zich een indrukwekkende kelder van maar liefst 150 m², ideaal als garage voor 4 wagens, extra opslag of hobbyruimte.
Deze villa is gebouwd in stevige ruwbouw volledig uit beton, waardoor je beschikt over een uiterst duurzame basis voor renovatie. De huidige elektrische vloerverwarming kan perfect vervangen worden door een warmtepomp, waarmee het EPC van F naar C kan worden gebracht (simulatie beschikbaar).
Troeven op een rij:
- 220 m² bewoonbare oppervlakte
- 5 slaapkamers
- 150 m² kelder/garage (plaats voor 4 wagens)
- Stevige betonconstructie – ideaal renovatieproject
- EPC F (wordt C met installeren van een warmtepomp)
📍 Gelegen in een rustige buurt van Smetlede, met vlotte verbindingen en veel ruimte rondom.
💡 Dit is de perfecte woning voor wie een ruim en solide huis zoekt om volledig naar eigen smaak te renoveren.
📞 Contacteer Niels voor een bezoek: 0471 27 95 62 – niels@berno.be
Energie
![]() |
- EPC Certificaat: 20250820-0003667411-RES-1
- Energieverbruik: 701 kWh/m²/jaar
- E-peil: E0
- Beglazing: Onbekend
Let op, de renovatieverplichting in Vlaanderen verplicht de koper om deze woning na aankoop te renoveren tot een betere energieprestatie. Lees er alles over in dit artikel
Extra budget nodig voor je renovatie?
De overheid helpt je dit pand energetisch te renoveren! Hieronder zie je het premiebedrag dat je mogelijks van de overheid krijgt.
Het huidige EPC-label is:

Op de kaart

Financieel
| Prijs | |
|---|---|
| Kadastraal inkomen (niet geïndexeerd) | € 1.308 |
Berekening kosten
Je aankoopkosten? Die heb je snel berekent via de knop hieronder.
Bijkomende info
Gebouw
| Bouwjaar | 1976 |
|---|---|
| Staat | Te renoveren |
| Bewoonbaar (m²) | 220 |
| Gevelbreedte | 10 |
| Badkamers | 1 |
| Slaapkamers | 5 |
| Verdiepingen | 0 |
| Garages | 0 |
| Parkeerplaatsen | 0 |
| Toiletten | 1 |
Faciliteiten
| Septische tank | Nee |
|---|
Perceel
| Breedte (m) | 20 |
|---|---|
| Overstromingsgevoelig | Geen |
| P-score | A |
| G-score | A |
| Totale oppervlakte (m²) | 1215 |
| Bebouwde oppervlakte (m²) | 0 |
| Oriëntatie tuin | ZuidOost |
Vergunning
| Verkavelingsvergunning | Vergunning beschikbaar |
|---|
Uitrusting
| Investeringspand | Nee |
|---|---|
| Parking | Nee |
| Garage | Nee |
| Thuiskantoor | Ja |
| Kelder | Ja |
| Lift | Nee |
| Rioolaansluiting | Nee |
| Gasaansluiting | Nee |
| Wateraansluiting | Ja |
| Elektriciteitsaansluiting | Ja |
| Internetaansluiting | Nee |
| Telefoonaansluiting | Nee |
| Zonnepanelen | Nee |
| Zonneboiler | Nee |
| Alarm | Nee |
| Videofoon | Nee |
| Grondwaterput | Nee |
Een pand van
Berno Vastgoed
Berno Vastgoed
Vastgoed in vertrouwen
Oud Smetlede 89C
Leer meer over vastgoed
24 November 2025
Uitgezocht voor jouw gemeente: Hoeveel stijgt de waarde van je woning door een renovatie?
22 October 2025
Hoeveel kan ik lenen om een huis te kopen?
11 June 2025
Huis kopen met bouwovertreding? Dit moet je weten
11 May 2025



