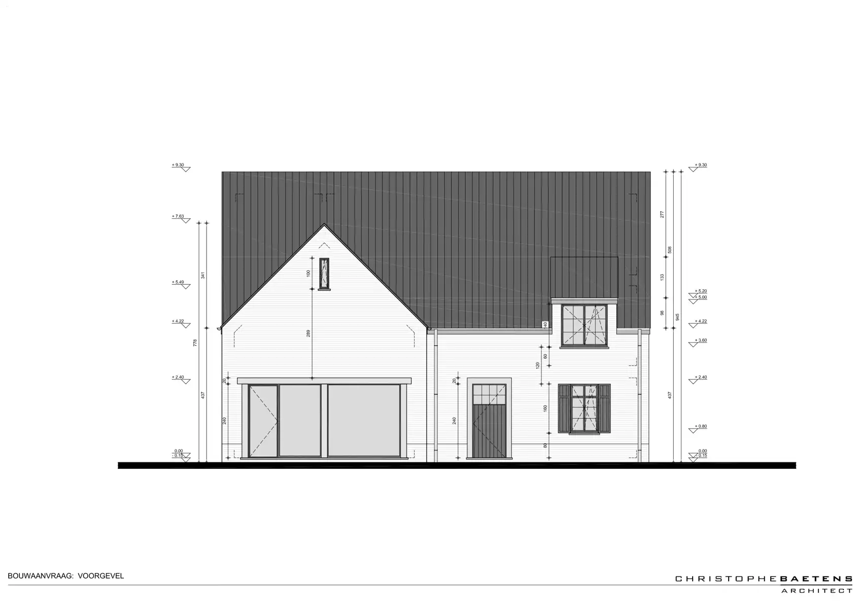
Af te werken ruwbouwwoning met veel mogelijkheden te Lille
€ 549.000
Een pand van Albert Rijkevorsel
Favoriet
Jouw zoektocht
Jouw scoretabel voor dit pand
Aan het laden...
Jouw geplande bezichtigingen
Aan het laden...
Overzicht
- 345 m² bewoonbaar
- 962 m² grond
- 3 Slaapkamer(s)
- 1 Badkamer(s)
- 3 Toilet(ten)
- 1 Tuin
Beschrijving
Op zoek naar een woning die u volledig naar eigen smaak en op korte termijn kan afwerken? Dan is deze houtmassieve woning op een perceel van 962 m² een unieke opportuniteit.
De woning bevindt zich in een rustige doodlopende straat en wordt aangeboden als ruwbouw, waarbij alle nutsvoorzieningen reeds voorzien zijn. Het betreft dus uitsluitend de verdere afwerking, wat toelaat om de woning binnen ongeveer 3 maanden volledig instapklaar te maken.
De woning beschikt over een doordachte structuur waardoor de woning eenvoudig uitgebreid kan worden naar 5 of meer slaapkamers. Bovendien leent de woning zich uitstekend voor uiteenlopende invullingen, zoals het combineren van een handelszaak met woonst, wonen voor twee gezinnen, het creëren van een inpandige garage voor twee wagens en het optimaal benutten van de aanwezige vide.
Indeling:
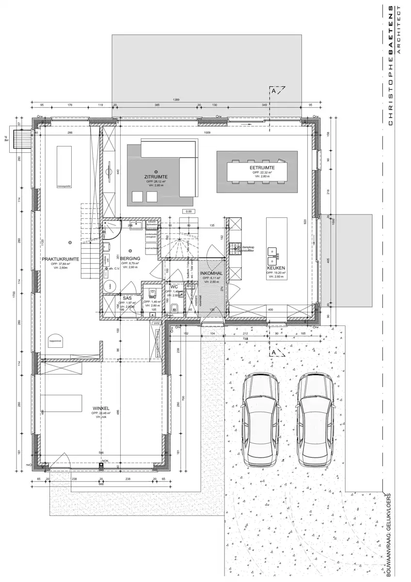
Gelijkvloers:
- Inkomhal met vestiaire
- Leefruimte met open keuken en eetkamer
- Gastentoilet
- Berging/wasplaats
- Twee polyvalente ruimtes die gebruikt kunnen worden als deel van een kangoeroewoning, als praktijkruimte of deze kan ingericht worden als dubbele garage
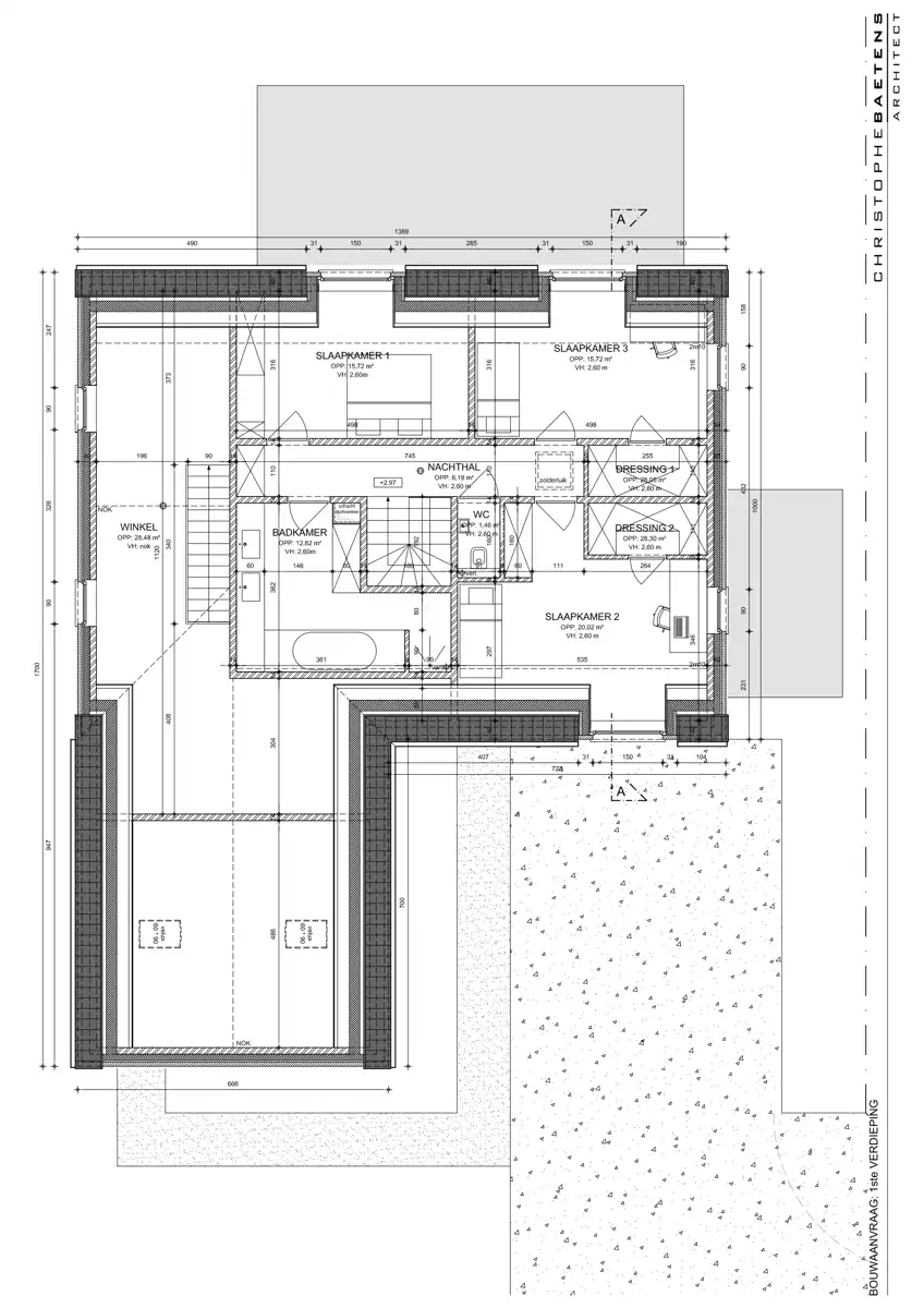
Verdieping:
- Slaapkamer 1
- Slaapkamer 2 met aansluitende dressing
- Slaapkamer 3 met aansluitende dressing
- Badkamer
- Apart toilet
- Polyvalente ruimte die ingedeeld kan worden als 2 slaapkamers
Achteraan geniet u van een ruime tuin, ideaal voor wie houdt van rust, privacy en buitenleven. De ligging nabij de E34 zorgt voor een vlotte verbinding naar Antwerpen en Turnhout.
Mis deze kans niet en plan een bezoek!
0497 27 14 64
camilla@albert.immo
www.albert.immo
De woning bevindt zich in een rustige doodlopende straat en wordt aangeboden als ruwbouw, waarbij alle nutsvoorzieningen reeds voorzien zijn. Het betreft dus uitsluitend de verdere afwerking, wat toelaat om de woning binnen ongeveer 3 maanden volledig instapklaar te maken.
De woning beschikt over een doordachte structuur waardoor de woning eenvoudig uitgebreid kan worden naar 5 of meer slaapkamers. Bovendien leent de woning zich uitstekend voor uiteenlopende invullingen, zoals het combineren van een handelszaak met woonst, wonen voor twee gezinnen, het creëren van een inpandige garage voor twee wagens en het optimaal benutten van de aanwezige vide.
Indeling:
Gelijkvloers:
- Inkomhal met vestiaire
- Leefruimte met open keuken en eetkamer
- Gastentoilet
- Berging/wasplaats
- Twee polyvalente ruimtes die gebruikt kunnen worden als deel van een kangoeroewoning, als praktijkruimte of deze kan ingericht worden als dubbele garage
Verdieping:
- Slaapkamer 1
- Slaapkamer 2 met aansluitende dressing
- Slaapkamer 3 met aansluitende dressing
- Badkamer
- Apart toilet
- Polyvalente ruimte die ingedeeld kan worden als 2 slaapkamers
Achteraan geniet u van een ruime tuin, ideaal voor wie houdt van rust, privacy en buitenleven. De ligging nabij de E34 zorgt voor een vlotte verbinding naar Antwerpen en Turnhout.
Mis deze kans niet en plan een bezoek!
0497 27 14 64
camilla@albert.immo
www.albert.immo
Op zoek naar een woning die u volledig naar eigen smaak en op korte termijn kan afwerken? Dan is deze houtmassieve woning op een perceel van 962 m² een unieke opportuniteit.
De woning bevindt zich in een rustige doodlopende straat en wordt aangeboden als ruwbouw, waarbij alle nutsvoorzieningen reeds voorzien zijn. Het betreft dus uitsluitend de verdere afwerking, wat toelaat om de woning binnen ongeveer 3 maanden volledig instapklaar te maken.
De woning beschikt over een doordachte structuur waardoor de woning eenvoudig uitgebreid kan worden naar 5 of meer slaapkamers. Bovendien leent de woning zich uitstekend voor uiteenlopende invullingen, zoals het combineren van een handelszaak met woonst, wonen voor twee gezinnen, het creëren van een inpandige garage voor twee wagens en het optimaal benutten van de aanwezige vide.
Indeling:
Gelijkvloers:
- Inkomhal met vestiaire
- Leefruimte met open keuken en eetkamer
- Gastentoilet
- Berging/wasplaats
- Twee polyvalente ruimtes die gebruikt kunnen worden als deel van een kangoeroewoning, als praktijkruimte of deze kan ingericht worden als dubbele garage
Verdieping:
- Slaapkamer 1
- Slaapkamer 2 met aansluitende dressing
- Slaapkamer 3 met aansluitende dressing
- Badkamer
- Apart toilet
- Polyvalente ruimte die ingedeeld kan worden als 2 slaapkamers
Achteraan geniet u van een ruime tuin, ideaal voor wie houdt van rust, privacy en buitenleven. De ligging nabij de E34 zorgt voor een vlotte verbinding naar Antwerpen en Turnhout.
Mis deze kans niet en plan een bezoek!
0497 27 14 64
camilla@albert.immo
www.albert.immo
De woning bevindt zich in een rustige doodlopende straat en wordt aangeboden als ruwbouw, waarbij alle nutsvoorzieningen reeds voorzien zijn. Het betreft dus uitsluitend de verdere afwerking, wat toelaat om de woning binnen ongeveer 3 maanden volledig instapklaar te maken.
De woning beschikt over een doordachte structuur waardoor de woning eenvoudig uitgebreid kan worden naar 5 of meer slaapkamers. Bovendien leent de woning zich uitstekend voor uiteenlopende invullingen, zoals het combineren van een handelszaak met woonst, wonen voor twee gezinnen, het creëren van een inpandige garage voor twee wagens en het optimaal benutten van de aanwezige vide.
Indeling:
Gelijkvloers:
- Inkomhal met vestiaire
- Leefruimte met open keuken en eetkamer
- Gastentoilet
- Berging/wasplaats
- Twee polyvalente ruimtes die gebruikt kunnen worden als deel van een kangoeroewoning, als praktijkruimte of deze kan ingericht worden als dubbele garage
Verdieping:
- Slaapkamer 1
- Slaapkamer 2 met aansluitende dressing
- Slaapkamer 3 met aansluitende dressing
- Badkamer
- Apart toilet
- Polyvalente ruimte die ingedeeld kan worden als 2 slaapkamers
Achteraan geniet u van een ruime tuin, ideaal voor wie houdt van rust, privacy en buitenleven. De ligging nabij de E34 zorgt voor een vlotte verbinding naar Antwerpen en Turnhout.
Mis deze kans niet en plan een bezoek!
0497 27 14 64
camilla@albert.immo
www.albert.immo
Energie
![]() |
- EPC Certificaat: 20260115-0003776518-RES-1
- Energieverbruik: 376 kWh/m²/jaar
Extra budget nodig voor je renovatie?
De overheid helpt je dit pand energetisch te renoveren! Hieronder zie je het premiebedrag dat je mogelijks van de overheid krijgt.
Het huidige EPC-label is:

Op de kaart

Downloads
Financieel
| Prijs |
|---|
Berekening kosten
Je aankoopkosten? Die heb je snel berekend via de knop hieronder.
Bijkomende info
Gebouw
| Bouwjaar | 2020 |
|---|---|
| Bewoonbaar (m²) | 345 |
| Gevels | 4 |
| Badkamers | 1 |
| Slaapkamers | 3 |
| Parkeerplaatsen | 0 |
| Doucheruimtes | 1 |
| Toiletten | 3 |
Faciliteiten
| Type vloer | |
|---|---|
| Elektrisch keuringsattest | Nee |
Perceel
| P-score | B |
|---|---|
| G-score | B |
| Voorkeurrecht | Nee |
| Totale oppervlakte (m²) | 962 |
| Tuin oppervlakte (m²) | 0 |
| Oriëntatie voorgevel | West |
| Oriëntatie terras | Oost |
Vergunning
| Vergunning | Vergunning beschikbaar |
|---|---|
| Verkavelingsvergunning | Vergunning beschikbaar |
| Bouwovertreding | Geen |
| Bouwovertreding dagvaardiging | Geen |
Uitrusting
| Parking | Ja |
|---|---|
| Garage | Nee |
| Tuin | Ja |
| Terras | Nee |
| Gasaansluiting | Ja |
| Wateraansluiting | Ja |
| Elektriciteitsaansluiting | Ja |
| TV aansluiting | Ja |
| Telefoonaansluiting | Ja |
Een pand van
Albert Rijkevorsel
Albert is jouw no-nonsense partner in residentieel vastgoed en dit vanuit onze 10 lokaal verankerde kantoren in Vlaanderen!
Bij ons kom je thuis!
Albert is jouw no-nonsense partner in residentieel vastgoed en dit vanuit onze 10 lokaal verankerde kantoren in Vlaanderen!
Of het nu aankoop, verkoop, huur, verhuur of andere vastgoed gerelateerde vragen betreft, ons ervaren en gepassioneerd team van experten staat voor je klaar!
Bij Albert geen overhaaste aanpak maar een oprechte investering in elke klant, elk dossier, elke keer opnieuw. We always go the extra mile zodat we een kwalitatief resultaat en persoonlijke service kunnen bieden en garanderen.
Benieuwd wat jouw eigendom waard is? Bij Albert kan je terecht voor een gratis en vrijblijvende schatting in één van onze kantoren.
Aarzel niet en contacteer ons vandaag nog geheel vrijblijvend via familie@albert.immo of 0800 252 37. Wij ondersteunen en ontzorgen jou graag op een transparante, authentieke en persoonlijke wijze!
7308081
Leer meer over vastgoed
24 April 2026
Duurzaam gelegen woning? Check je Mobiscore
23 March 2026
Op Spotto zoeken als een pro: 10 slimme tips
21 March 2026
Hoeveel kan ik lenen om een huis te kopen?
01 March 2026


