Huis te koop
€ 198.000
Een pand van Imfiro
Favoriet
Jouw zoektocht
Jouw scoretabel voor dit pand
Aan het laden...
Jouw geplande bezichtigingen
Aan het laden...
Overzicht
- 136 m² bewoonbaar
- 172 m² grond
- 3 Slaapkamer(s)
- 1 Badkamer(s)
- 2 Toilet(ten)
Beschrijving
Te Koop: Moderne Woning in Roeselare
Bent u op zoek naar een prachtige woning die u volledig naar eigen smaak kunt afwerken?
Zoek niet verder!
Deze woning biedt u de perfecte basis om uw droomhuis te creëren.
Kenmerken van de woning:
Indeling:
Gelijkvloers :
Verdieping :
Uw nieuwe thuis:
Deze woning is wind- en waterdicht afgewerkt, wat betekent dat de ruwbouw, dakverdichting en PVC ramen al geïnstalleerd zijn.
(verdere afwerking niet inbegrepen in de prijs).
Dit biedt u de perfecte gelegenheid om de binnenafwerking geheel naar eigen wens te realiseren.
Locatie:
Gelegen in de rustige en charmante Kalverstraat, geniet u van een uitstekende woonomgeving met alle nodige voorzieningen binnen handbereik.
Mis deze unieke kans niet om uw droomhuis te creëren in het hart van Roeselare.
Voor meer informatie of een bezichtiging, neem vandaag nog contact met ons op via 051 21 11 11 of matias@imfiro.be
Wacht niet langer en zet de eerste stap naar uw nieuwe thuis!
Bent u op zoek naar een prachtige woning die u volledig naar eigen smaak kunt afwerken?
Zoek niet verder!
Deze woning biedt u de perfecte basis om uw droomhuis te creëren.
Kenmerken van de woning:
- Grondoppervlakte: 172 m²
- Woonoppervlakte: 136 m²
- Afwerking: Wind- en waterdicht (ruwbouw, dakverdichting, PVC ramen)
- E-peil volgens vergunning
Indeling:
Gelijkvloers :
- Inkomhal: Ruime en uitnodigende entree
- Toilet: Handige gastentoilet
- Lichtrijke leefruimte: Gezellige woonkamer met veel natuurlijk licht
- Open keuken: Moderne open keuken, klaar voor uw persoonlijke touch
- Wasplaats: Praktische ruimte voor wasmachine en droger
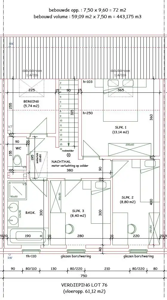
Verdieping :
- 3 Slaapkamers: Ruime kamers die volop mogelijkheden bieden
- Badkamer: Volledig naar uw eigen smaak af te werken
- Bergruimte boven + Zolder : Handige opbergruimte voor al uw spullen
Uw nieuwe thuis:
Deze woning is wind- en waterdicht afgewerkt, wat betekent dat de ruwbouw, dakverdichting en PVC ramen al geïnstalleerd zijn.
(verdere afwerking niet inbegrepen in de prijs).
Dit biedt u de perfecte gelegenheid om de binnenafwerking geheel naar eigen wens te realiseren.
Locatie:
Gelegen in de rustige en charmante Kalverstraat, geniet u van een uitstekende woonomgeving met alle nodige voorzieningen binnen handbereik.
Mis deze unieke kans niet om uw droomhuis te creëren in het hart van Roeselare.
Voor meer informatie of een bezichtiging, neem vandaag nog contact met ons op via 051 21 11 11 of matias@imfiro.be
Wacht niet langer en zet de eerste stap naar uw nieuwe thuis!
Energie
- E-peil: E0
- Beglazing: Onbekend
Op de kaart

Financieel
| Prijs |
|---|
Berekening kosten
Je aankoopkosten? Die heb je snel berekend via de knop hieronder.
Bijkomende info
Gebouw
| Staat | Nieuw |
|---|---|
| Bewoonbaar (m²) | 136 |
| Badkamers | 1 |
| Slaapkamers | 3 |
| Verdiepingen | 0 |
| Garages | 0 |
| Parkeerplaatsen | 0 |
| Toiletten | 2 |
Faciliteiten
| Septische tank | Nee |
|---|
Perceel
| Overstromingsgevoelig | Geen |
|---|---|
| P-score | A |
| G-score | A |
| Totale oppervlakte (m²) | 172 |
| Bebouwde oppervlakte (m²) | 0 |
Vergunning
| Verkavelingsvergunning | Geen beschikbaar |
|---|
Uitrusting
| Investeringspand | Nee |
|---|---|
| Parking | Nee |
| Garage | Nee |
| Zolder | Ja |
| Opslagruimte | Ja |
| Lift | Nee |
| Rioolaansluiting | Nee |
| Gasaansluiting | Nee |
| Wateraansluiting | Nee |
| Elektriciteitsaansluiting | Nee |
| Internetaansluiting | Nee |
| Telefoonaansluiting | Nee |
| Zonnepanelen | Nee |
| Zonneboiler | Nee |
| Alarm | Nee |
| Videofoon | Nee |
| Grondwaterput | Nee |
Een pand van
Imfiro
Imfiro
Uw makelaar voor nieuwbouw en bestaand vastgoed
TK 430 - 31
Leer meer over vastgoed
Nieuw
23 March 2026
Op Spotto zoeken als een pro: 10 slimme tips
Nieuw
21 March 2026
Hoeveel kan ik lenen om een huis te kopen?
01 March 2026
Wanneer heb ik een bouwvergunning of omgevingsvergunning nodig?
17 February 2026